**Standout Features:**
- Five spacious bedrooms, ideal for large families or remote work
- Elegant Georgian architecture with high ceilings and modern finishes
- Beautifully landscaped garden with a personalized patio
- Garage parking offering extra storage or vehicle space
- Convenient location with quick access to amenities, schools, and transport links
**Potential Concerns:**
- Sizeable garden may require regular upkeep
- Area classification indicates potential socio-economic challenges
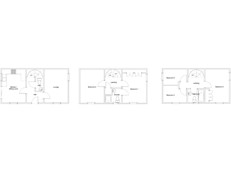
Discover this exquisite semi-detached Georgian townhouse that artfully combines elegance with modern living, perfect for a bustling family life. With 848 sq. ft. of thoughtfully designed space over three floors, this property boasts five generous bedrooms, including a master suite with en suite bathroom. The open-plan kitchen/diner is both functional and stylish, while the expansive lounge invites comfort and relaxation.
Nestled in a friendly suburban community, this home offers a beautifully manicured garden—ideal for outdoor entertaining and minimal maintenance—along with a garage for secure parking or storage. The property is strategically located, providing easy access to local amenities, schools, and major transport links, enhancing both convenience and quality of life.
However, keep in mind that the backyard’s upkeep may demand attention, and the surrounding area has socio-economic challenges to consider. Nevertheless, with its unique blend of classic charm and family-friendly layout, this residence is a rare find that promises substantial future potential in a desirable neighborhood. Don’t miss out on this fantastic opportunity—schedule your viewing today!
5 bedroom detached house for sale in The Boundary, Blackwood, NP12 — £450,000 • 5 bed • 3 bath • 1500 ft²
3 bedroom semi-detached house for sale in Maes Bengi, Oakdale, NP12 — £253,500 • 3 bed • 3 bath • 787 ft²
4 bedroom house for sale in Penrhiw Terrace, Oakdale, NP12 — £285,000 • 4 bed • 2 bath • 1184 ft²
4 bedroom semi-detached house for sale in Beaufort Rise, Beaufort, Ebbw Vale, NP23 — £270,000 • 4 bed • 2 bath • 1335 ft²
4 bedroom detached house for sale in The Elms, Oakdale, NP12 — £475,000 • 4 bed • 3 bath • 1733 ft²
3 bedroom semi-detached house for sale in Gelli Lane, Pontllanfraith, NP12 — £199,950 • 3 bed • 1 bath • 826 ft²






























































































































