Two-bedroom dormer property with garage, large plot and loft rooms near Sutton-on-Sea beach.
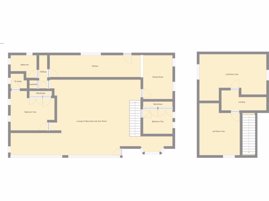
Two double bedrooms plus two loft rooms (one en suite)
Large, private rear garden with patio and summer house
Detached garage and wide driveway with double gates
Double glazing and Hive-controlled mains gas heating
Mid-sized footprint (circa 614 sq ft) — compact overall
Medium flood risk — consider insurance and flood advice
Built 1983–1990; scope for modernisation and extension
Located near beach and local amenities; very deprived area
Set on a generous plot close to Sutton-on-Sea’s shoreline, this two-bedroom dormer bungalow offers practical single-level living with valuable extra loft accommodation. The layout includes a lounge, sun room, separate dining room, modern kitchen, ground-floor bathroom and two loft rooms (one with en suite), giving flexible space for guests, hobbies or a home office.
The garden and driveway are stand-out features: a large, well-kept rear garden with paved patio, lawn and summer house, plus a wide front driveway and detached garage. Double glazing and Hive heating controls are fitted, and mains gas central heating serves the property, making it comfortable year-round.
There is scope to modernise or extend subject to planning, so buyers seeking to add value will find opportunity here. Note the property is mid-sized overall (approximately 614 sq ft) and built in the 1980s; loft rooms may have limited headroom and are best suited to occasional use or storage.
Important practical considerations: the location sits in a medium flood-risk area and the local neighbourhood scores as very deprived, which may affect insurance and long-term resale. Broadband speeds are average; mobile signal is excellent. The home is freehold with affordable council tax, and the plot offers rare outside space close to local amenities and beaches.
4 bedroom bungalow for sale in Trusthorpe Road, Sutton-on-Sea, Mablethorpe, Lincolnshire, LN12 — £475,000 • 4 bed • 3 bath • 1206 ft²
2 bedroom bungalow for sale in Camelot Gardens, Sutton-on-Sea, Mablethorpe, Lincolnshire, LN12 — £200,000 • 2 bed • 1 bath
2 bedroom detached bungalow for sale in Moreland Avenue, Sutton-On-Sea, LN12 — £220,000 • 2 bed • 1 bath • 757 ft²
3 bedroom detached house for sale in Station Road, Sutton-on-Sea, Mablethorpe, Lincolnshire, LN12 — £280,000 • 3 bed • 2 bath • 1486 ft²
2 bedroom bungalow for sale in Harding Close, Sutton-on-Sea, Mablethorpe, Lincolnshire, LN12 — £250,000 • 2 bed • 1 bath • 948 ft²
2 bedroom bungalow for sale in Marine Avenue West, Sutton-on-Sea, Mablethorpe, Lincolnshire, LN12 — £240,000 • 2 bed • 1 bath • 765 ft²


















































































































































