BA2 7LA - 3 bedroom house for sale in Monmouth Paddock, Norton St Phi…

View on Property Piper

3 bedroom house for sale in Monmouth Paddock, Norton St Philip, BA2

Summary - 2 MONMOUTH PADDOCK NORTON ST PHILIP BATH BA2 7LA

3 bed 2 bath House

Newly renovated village home with panoramic views, garden studio and garage—ideal for family life..
Outstanding panoramic valley views from garden room and rear terraces
High-quality garden studio with power, lighting and heating
Newly renovated throughout; modern kitchen and refurbished en suite
Garage plus driveway offering off-road parking for at least one car
Double glazing fitted during/after 2002 and mains gas central heating
Large, tiered landscaped garden with multiple seating areas
Freehold in an affluent, low-crime village with fast broadband
Some listings describe property as linked/semi-detached; build era 1976–82
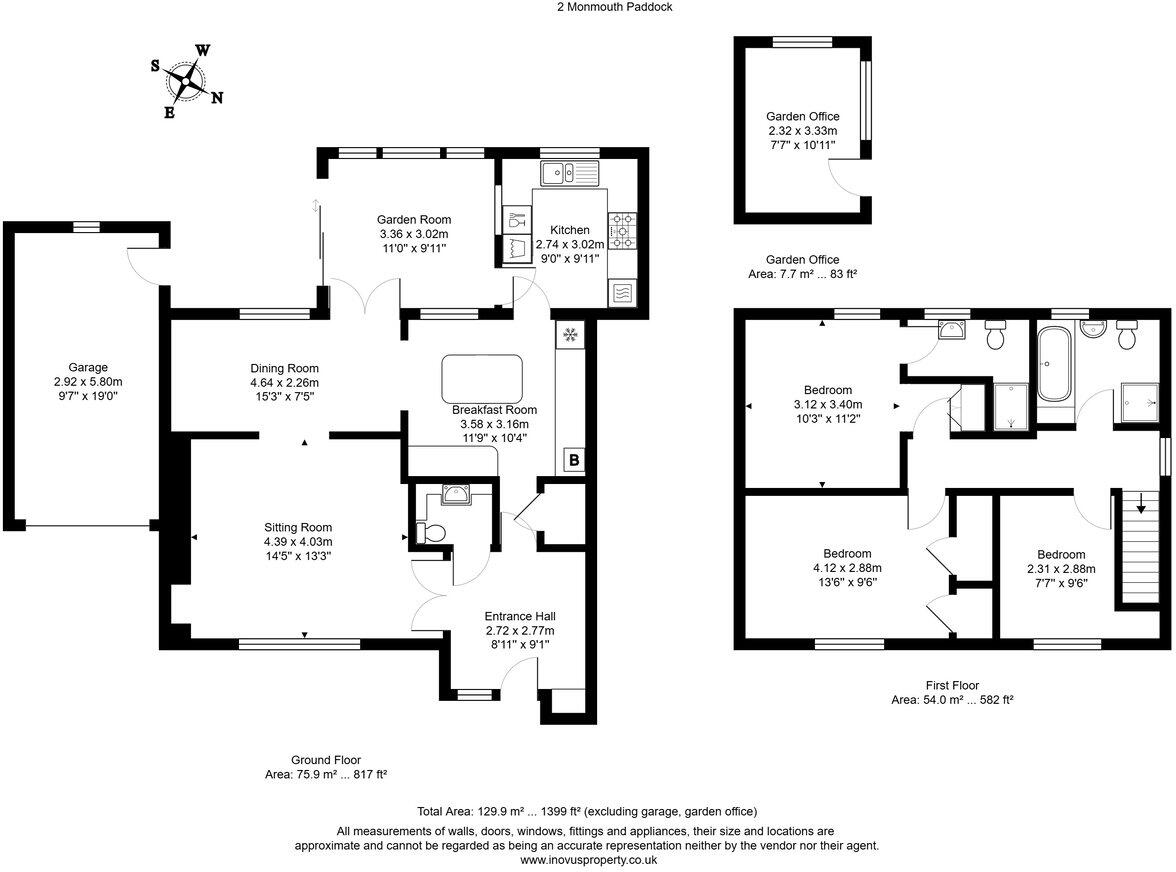
Set on the edge of Norton St Philip, this newly renovated three-bedroom house makes the most of outstanding valley views and a generous, terraced garden. The living spaces are bright and well laid out: a welcoming entrance hall with cloakroom, a living room and separate dining room that flow to a garden room with underfloor heating and large windows framing the outlook. The kitchen/breakfast room has integrated appliances and overlooks the rear garden.

Upstairs are three bedrooms, including a principal bedroom with built-in storage and a refurbished en suite, plus a modern family bathroom. Practical features include double glazing (installed 2002 or later), mains gas central heating with boiler and radiators, and a useful garage with driveway parking. The property is freehold and sits in a quiet, low-crime village with fast broadband and excellent mobile signal.

Outside, the landscaped, tiered garden is designed for multiple seating areas to capture sun and views; it also includes a high-quality garden studio with power, lighting and heating—well suited to a home office, studio or occasional guest space. Local amenities include a primary school, two pubs, a Co-op, and community sports facilities, with Bath, Bradford on Avon and Frome within easy driving distance.

Buyers should note that descriptions vary between detached, link-detached and semi-detached in different sources; local records list the build era as 1976–1982. Although the house has been newly renovated, the age of some building elements (roofing, services) is consistent with its original construction period and may require routine maintenance over time.

Property Details

Brochure Descriptions

Image Descriptions

Floorplan Description

Rooms

Textual Property Features

Target Audience

AI Tags

Detected Visual Features

EPC Details

Nearby Schools

Nearest Bars And Restaurants

,,,,}

Nearest General Shops

,,}

Nearest Grocery shops

,,}

Nearest Supermarkets

,,}

Nearest Religious buildings

,,}

Nearest Medical buildings

,,,}

Nearest Airports

}

Nearest Leisure Facilities

,,,,}

Nearest Tourist attractions

,,}

Nearest Train stations

,,,,}

Nearest Bus stations and stops

,,,,}

Nearest Hotels

,,}

Tags

Local Market Stats

AirBnB Data

Similar Properties

Meta

High Res Images

Compatible Images

Low res Images

Thumbnails

Raw Images

High Res Floorplan Images

Compatible Floorplan Images

Low res Floorplan Images

FloorplanImages Thumbnail

Raw Floorplan Images