**Standout Features:**
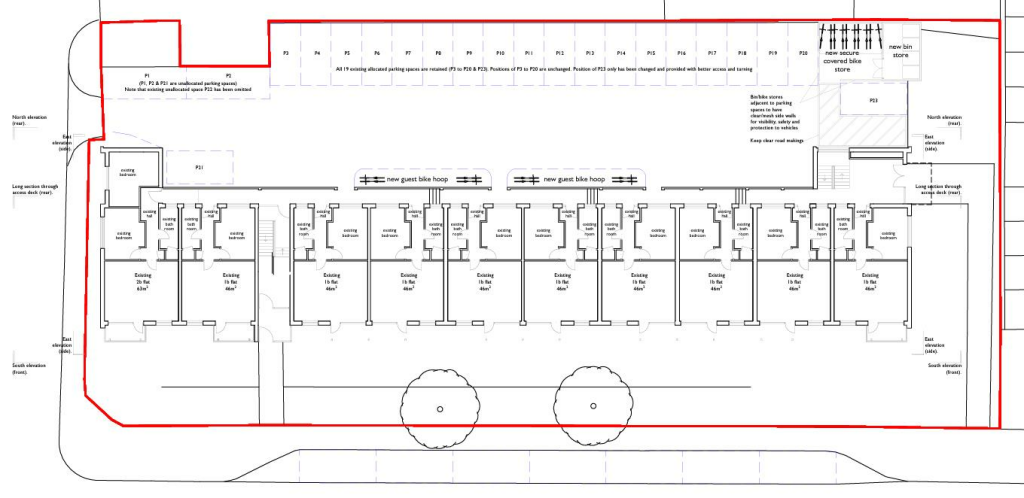
- Freehold land with approved planning for a third floor.
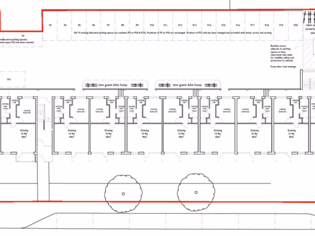
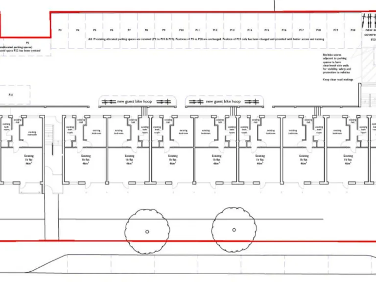
- Plans include 9 new apartments: 1 Two-Bedroom, 4 One-Bedroom, and 4 Studio apartments.
- Currently 30 residential flats with long leases.
- Central location in Saltdean, near schools and amenities.
- Low local crime rate and access to public transport.
- Scenic views of the sea and the surrounding area.
**Potential Concerns:**
- Current maintenance of the building may require attention due to its 1968 structure.
- High combined ground rent of £1,642 annually.
**Summary:**
Discover a rare investment opportunity in Lustrells Vale, Saltdean, Brighton. This freehold property, currently comprising 30 residential flats all with long leases, offers immense growth potential through approved planning permission for an additional third floor, featuring 9 new apartments. Nestled in a central location amidst a vibrant community, it’s ideally situated close to schools, local shops, and convenient bus routes to Brighton and Saltdean beach. While the building showcases classic mid-century architecture and panoramic sea views, there may be some renovation needs due to its age. Priced competitively at £250,000, this property represents a unique chance to enhance rental income and resale values in an affluent area with low crime rates—don’t miss out!
Plot for sale in Sutton Drove, Seaford, BN25 — £595,000 • 1 bed • 1 bath
Plot for sale in South Coast Road, Telscombe Cliffs, BN10 — £1,150,000 • 1 bed • 1 bath • 6458 ft²
1 bedroom apartment for sale in Freehold Terrace, Brighton, BN2 — £1,650,000 • 1 bed • 1 bath • 4580 ft²
Land for sale in 186-187 Lewes Road, Brighton, BN2 3LD, BN2 — £500,000 • 1 bed • 1 bath
1 bedroom apartment for sale in St. James's Street, Brighton, BN2 — £300,000 • 1 bed • 1 bath • 1606 ft²
4 bedroom terraced house for sale in Fantastic Investment!! Byron Street, Hove, BN3 — £450,000 • 4 bed • 3 bath • 1509 ft²














































