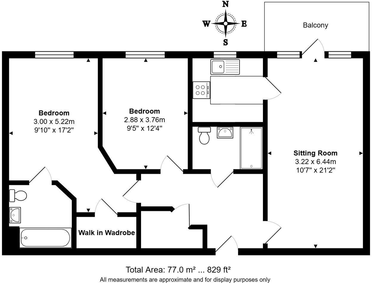
**Standout Features:**
- Modern first-floor retirement apartment with canal views
- Private balcony perfect for relaxation
- Bright and spacious layout with 2 double bedrooms
- Wet room and additional en-suite with walk-in bath
- Secure gated development with intercom system
- Residents have access to communal lounge, library, and landscaped gardens
- 24-hour emergency support for peace of mind
**Key Details:**
- Total area: 829 sq. ft.
- Leasehold: 108 years remaining
- Service charge: £4,359.96/year
- Ground rent: £495/year
- High crime rate and area deprivation concerns
Experience comfortable, independent living in this sought-after two-bedroom retirement apartment in Anstie Court. With a rare balcony overlooking the tranquil canal, this residence offers an ideal blend of privacy and convenience, located just steps from the vibrant town center. The spacious interior is filled with natural light and includes a modern kitchen with integrated appliances, a bright living room that connects to the balcony, and two generous bedrooms—one boasting an en-suite and walk-in wardrobe.
This secure, gated development enhances your peace of mind with 24-hour emergency support and a dedicated House Manager. Enjoy community-oriented living with excellent facilities such as a residents' lounge and beautifully landscaped gardens. While the property faces some area challenges like high crime rates and a constrained rental market, it remains a valuable find in today's competitive market. Don't miss this opportunity to secure a comfortable sanctuary with future renovation potential—schedule your viewing today!
2 bedroom retirement property for sale in Anstie Close, Devizes, SN10 — £265,000 • 2 bed • 2 bath • 814 ft²
2 bedroom apartment for sale in Anstie Court, Wharf Street, Devizes, SN10 1GA, SN10 — £350,000 • 2 bed • 2 bath • 1098 ft²
2 bedroom retirement property for sale in Anstie Court, Devizes, Wiltshire, SN10 1GA, SN10 — £330,000 • 2 bed • 2 bath • 849 ft²
2 bedroom apartment for sale in Bath Road, Devizes, Wiltshire, SN10 — £290,000 • 2 bed • 1 bath • 940 ft²
2 bedroom apartment for sale in Lower Wharf, Devizes, SN10 — £200,000 • 2 bed • 2 bath • 641 ft²
2 bedroom apartment for sale in Bath Road, Devizes, Wiltshire, SN10 — £300,000 • 2 bed • 1 bath • 790 ft²






























































