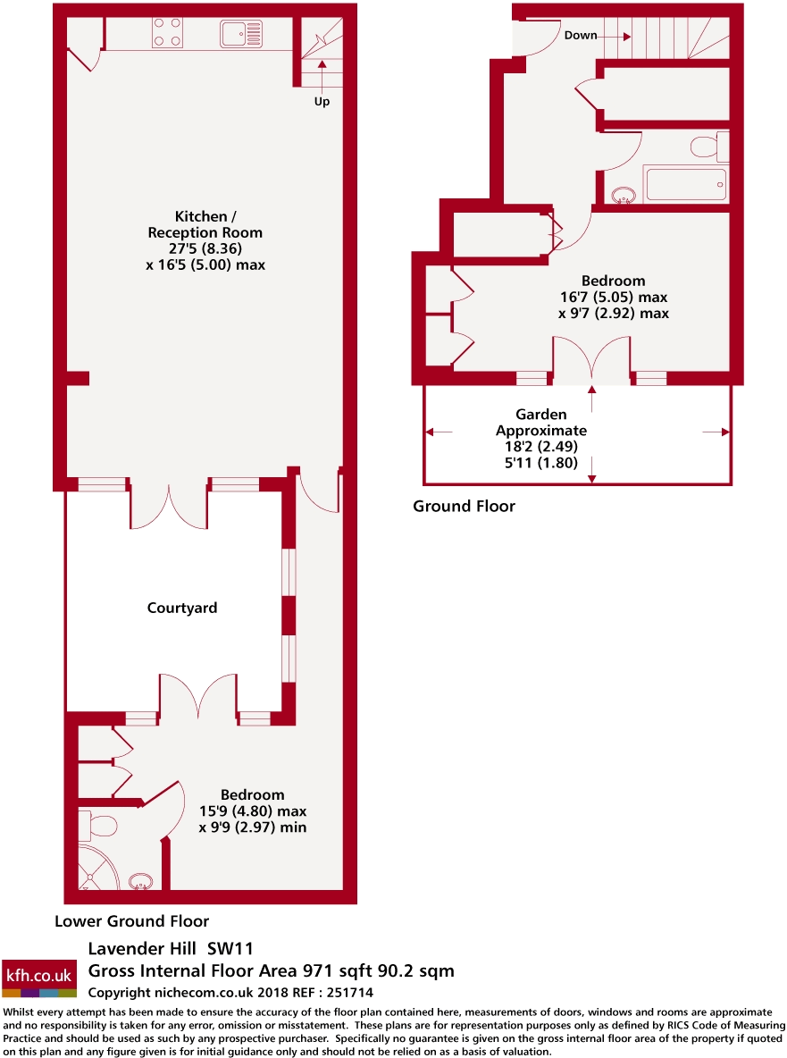
Bright two-bedroom home with terrace close to Clapham Junction transport.
Two double bedrooms and two bathrooms, generous 971 sq.ft.
Split-level layout with private terrace and courtyard
Open-plan living and modern kitchen, good natural light
Solid brick building (pre-1900); assumed no wall insulation
EPC rating D — further energy improvements likely needed
Tenure unknown — confirm before commitment
Excellent mobile signal and fast broadband; near Clapham Junction
Local crime levels higher than average
Light-filled and spacious, this split-level two-bedroom flat offers nearly 971 sq.ft. of well-laid-out living space a short walk from Clapham Junction. The open-plan reception and modern kitchen create a social heart for cooking and entertaining, while two double bedrooms and two bathrooms suit sharers or a small family. A private terrace and small courtyard extend the living space outdoors.
The building dates from before 1900 and is of solid brick construction. The interior has been finished to a contemporary standard, but the property has an EPC rating of D and assumed uninsulated solid walls, so further energy improvements are possible. Tenure is unknown and should be confirmed by buyers.
Location is a major asset: excellent mobile signal, fast broadband, and immediate access to shops, cafes and transport links make daily life convenient. Nearby schools include several rated Good and one Outstanding secondary, appealing to buyers planning for schooling.
Buyers should note the local area records higher crime levels than average and council tax is moderate. Overall this is a roomy, characterful period flat with contemporary fittings and strong transport links, suited to first-time buyers or couples seeking space close to central transport hubs.
2 bedroom flat for sale in Beauchamp Road, London, SW11 — £600,000 • 2 bed • 1 bath • 668 ft²
2 bedroom apartment for sale in Lavender Hill, SW11 — £550,000 • 2 bed • 2 bath • 801 ft²
2 bedroom flat for sale in Plough Road, London, SW11 — £525,000 • 2 bed • 2 bath • 789 ft²
2 bedroom flat for sale in Chillington Drive, SW11 — £425,000 • 2 bed • 1 bath • 651 ft²
2 bedroom flat for sale in Comyn Road, London, SW11 — £700,000 • 2 bed • 2 bath • 997 ft²
2 bedroom flat for sale in Ilminster Gardens, London, SW11 — £800,000 • 2 bed • 2 bath • 1032 ft²






















































