Freehold home with garage, rear views over playing fields and renovation potential.
Freehold, chain-free 3-bed semi in a quiet cul-de-sac
Rear outlook over playing fields; enclosed lawned garden
Shared driveway and rear garage with twin opening doors
Gas central heating and PVC double glazing installed
Non-standard system-built construction; insulation status unknown
Visible damp patches in living room; cosmetic refurbishment required
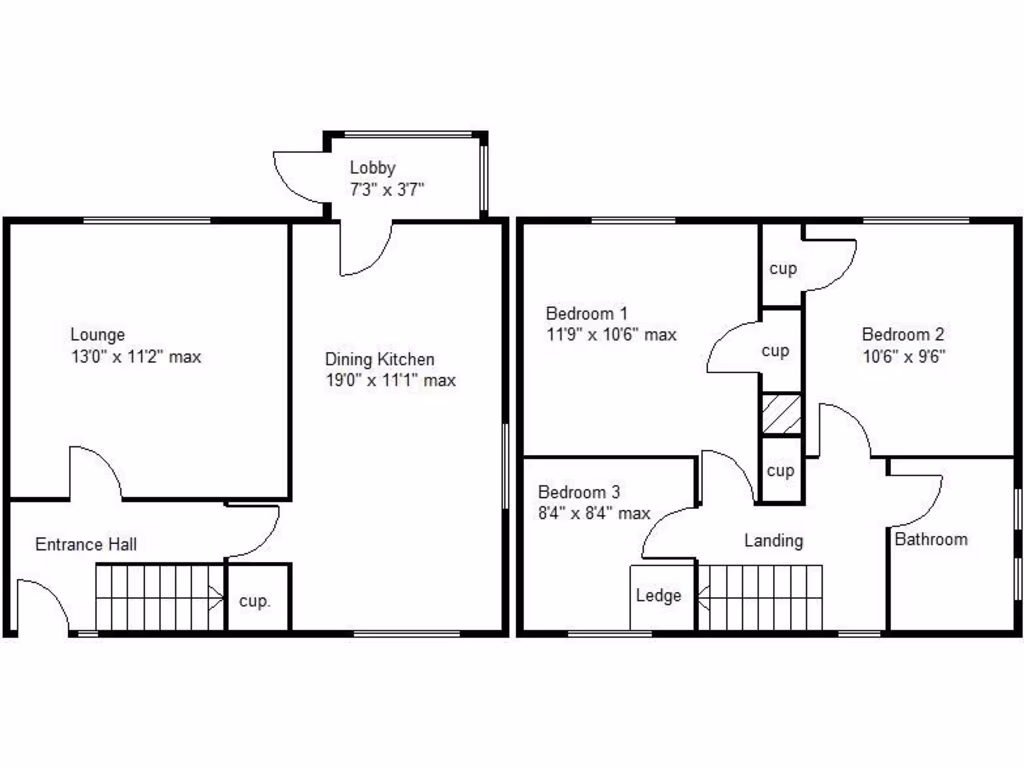
Small overall size (approx 674 sq ft); decent plot size
Council Tax very low; broadband speeds are fast
This semi-detached home in a quiet cul-de-sac offers a straightforward entry onto the property ladder. Ground floor provides a generous dining kitchen and lounge, with a lawned rear garden that opens onto playing fields — useful outdoor space for children and pets. The property is freehold, chain-free and includes a shared driveway plus a rear garage, making parking simple for busy households.
The house benefits from gas central heating, PVC double glazing and built-in bedroom cupboards. Broadband speeds are fast and local schools have good Ofsted ratings, which will appeal to families. Council Tax sits in a very low band, helping keep ongoing costs down.
Buyers should note this is a non-standard system-built property with some visible issues: damp patches in the living room, evidence of wear and areas that need cosmetic refurbishment. The insulation status is unknown and the boiler age is to be confirmed, so budget for surveys and possible upgrades. Overall, this is a realistic purchase for a first-time buyer prepared to modernise gradually or an investor seeking a value renovation project.
3 bedroom semi-detached house for sale in Amersall Crescent, Scawthorpe, Doncaster, DN5 — £160,000 • 3 bed • 1 bath • 1012 ft²
3 bedroom semi-detached house for sale in Danesway, Scawthorpe, Doncaster, DN5 — £140,000 • 3 bed • 1 bath • 900 ft²
3 bedroom semi-detached house for sale in Nottingham Close, Scawsby, Doncaster, DN5 — £186,000 • 3 bed • 1 bath • 969 ft²
2 bedroom semi-detached house for sale in Bowland Close, Bentley, Doncaster, South Yorkshire, DN5 — £150,000 • 2 bed • 1 bath • 731 ft²
3 bedroom semi-detached house for sale in Chiltern Road, Scawthorpe, Doncaster, DN5 — £155,000 • 3 bed • 1 bath • 715 ft²
3 bedroom semi-detached house for sale in Town View Avenue, Scawsby, Doncaster, DN5 — £255,000 • 3 bed • 1 bath • 1098 ft²






















































