Quiet riverside village location with parking and refurbishment potential.
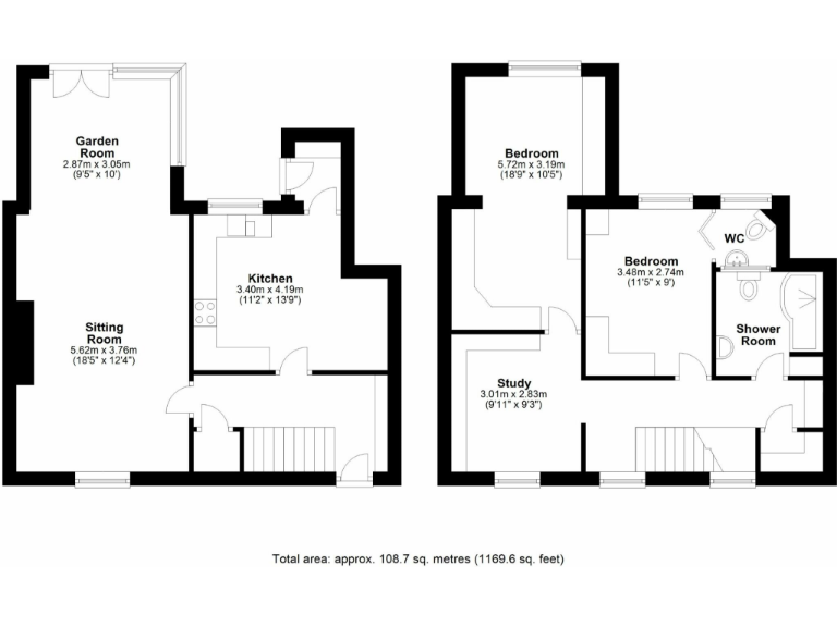
- Two double bedrooms, one with en suite WC
- Spacious lounge with adjoining dining area
- Large landing with study space
- Small gravelled rear garden and off-street parking
- Oil-fired central heating; double glazing (unknown install date)
- Partial cavity wall insulation (assumed)
- EPC rating D; may benefit from modernisation
- Broadband and mobile signal average locally
Set in Horncliffe — England’s most northerly village — this two-bedroom mid-terrace offers roomy accommodation over two floors and genuine village character. The ground floor has a traditional kitchen and a large lounge with dining area, while upstairs a substantial landing provides a study nook alongside two double bedrooms, one with an en suite WC.
Practical strengths include a small gravelled garden, an off-street parking space, oil central heating and double glazing (installation date unknown). The house sits in a very low-crime, rural community with good walking access to the River Tweed, local pub and village hall, and easy reach of Berwick-upon-Tweed for rail and wider services.
Known limitations are factual: the property sits on a small plot, uses oil-fired heating, and wall insulation is partial (assumed). Broadband and mobile signal are average for the area, and the local area scores as relatively deprived. Energy performance is D and some updating or refurbishment may be desirable to improve efficiency and modernise finishes.
This home will suit buyers seeking a peaceful village lifestyle with scope to add value through targeted improvements. It’s well placed for countryside walks, coastal day trips and commuters using the A1 or Berwick rail links, and offers a manageable two-bedroom layout for couples, small families or downsizers.
2 bedroom end of terrace house for sale in West Loan End, Horncliffe, Berwick-Upon-Tweed, TD15 — £250,000 • 2 bed • 1 bath • 920 ft²
2 bedroom terraced house for sale in Wheatriggs Avenue, Milfield, NE71 — £99,950 • 2 bed • 1 bath • 863 ft²
2 bedroom semi-detached house for sale in Sea View, Berwick-upon-Tweed, TD15 — £130,000 • 2 bed • 1 bath • 626 ft²
3 bedroom detached house for sale in Riverdene, Tweedmouth, Berwick-Upon-Tweed, TD15 — £180,000 • 3 bed • 1 bath • 809 ft²
4 bedroom detached house for sale in Turret House, 2 Coopers Field, Horncliffe, Northumberland, TD15 — £475,000 • 4 bed • 2 bath • 1905 ft²
3 bedroom terraced house for sale in Sandstell Road, Spittal, Berwick-Upon-Tweed, TD15 — £310,000 • 3 bed • 2 bath • 1647 ft²






















































