TQ7 4SB - 3 bedroom terraced house for sale in Stile Orchard, Loddisw…

View on Property Piper

3 bedroom terraced house for sale in Stile Orchard, Loddiswell, TQ7

Summary - 3 STILE ORCHARD LODDISWELL KINGSBRIDGE TQ7 4SB

3 bed 1 bath Terraced

Three-bedroom village house with garage and garden ideal for first-time buyers to update.
Three bedrooms including two doubles
Wood-burning stove in front reception room
Enclosed, tiered rear garden with paved seating
Single garage plus two allocated parking spaces
EPC D; scope for energy improvements
Requires internal modernisation and external refreshing
Modest internal footprint and small plot size
Shared parking maintenance costs among residents
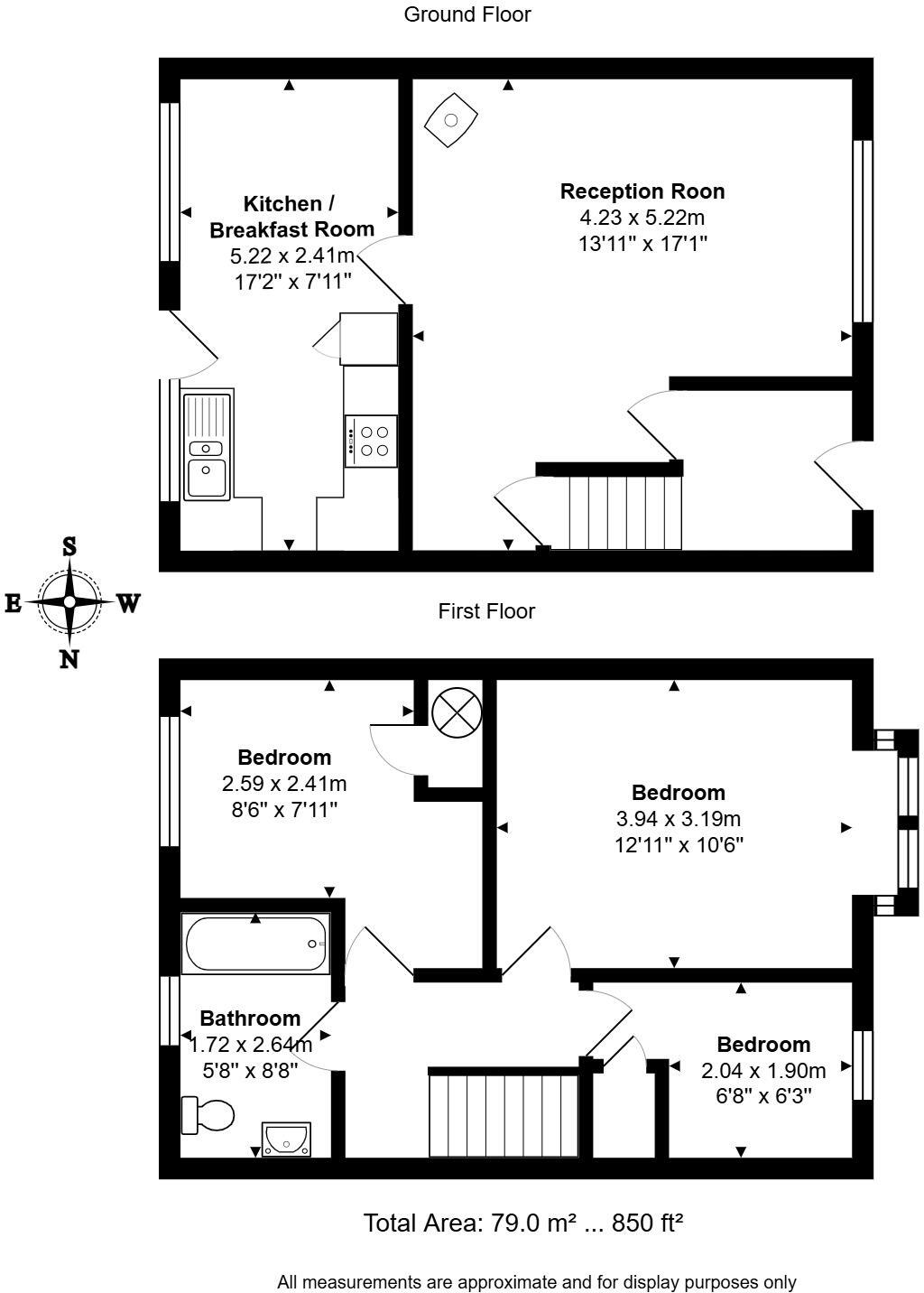
This mid-terrace three-bedroom house sits in quiet Stile Orchard, Loddiswell, offering practical village living across two storeys. The reception room has a wood-burning stove and the kitchen/breakfast room opens to an enclosed, tiered rear garden. A single garage plus two allocated parking spaces sit in a nearby block. The property totals about 850 ft² and is typical in size for a first home or small family.

The house is offered with double glazing and an LPG-fired boiler with radiators but currently has an EPC rating of D. Accommodation is well laid out with two double bedrooms and one single, and a family bathroom upstairs. There is clear scope for modernisation inside and an external refresh to bring the property up to contemporary standards and improve energy performance.

Set in a popular village with a primary school, shop and local amenities close by, this home will suit first-time buyers, downsizers seeking village life, or landlords targeting a steady rental market. Buyers should note the modest plot size, the need for updating, and that parking maintenance costs are shared among Stile Orchard residents. Overall, the house offers straightforward potential to add value through cosmetic and energy-efficiency improvements.

Property Details

Brochure Descriptions

Image Descriptions

Floorplan Description

Rooms

Textual Property Features

Target Audience

AI Tags

Detected Visual Features

EPC Details

Nearby Schools

Nearest Bars And Restaurants

,,,,}

Nearest General Shops

,,}

Nearest Grocery shops

,,}

Nearest Supermarkets

,,}

Nearest Religious buildings

,,}

Nearest Medical buildings

,,,}

Nearest Leisure Facilities

,,,,}

Nearest Tourist attractions

,,}

Nearest Train stations

,,,,}

Nearest Bus stations and stops

,,,,}

Nearest Hotels

,,}

Tags

Local Market Stats

AirBnB Data

Similar Properties

Meta

High Res Images

Compatible Images

Low res Images

Thumbnails

Raw Images

High Res Floorplan Images

Compatible Floorplan Images

Low res Floorplan Images

FloorplanImages Thumbnail

Raw Floorplan Images