RH10 3GW - 3 bedroom semidetached house for sale in Foxglove Drive, Fo…

View on Property Piper

3 bedroom semi-detached house for sale in Foxglove Drive, Forgewood, RH10

Summary - 4, FOXGLOVE DRIVE RH10 3GW

3 bed 2 bath Semi-Detached

Contemporary three-bed townhouse with EV charging and parking for up to three cars.
Three bedrooms, two bathrooms including top-floor en-suite
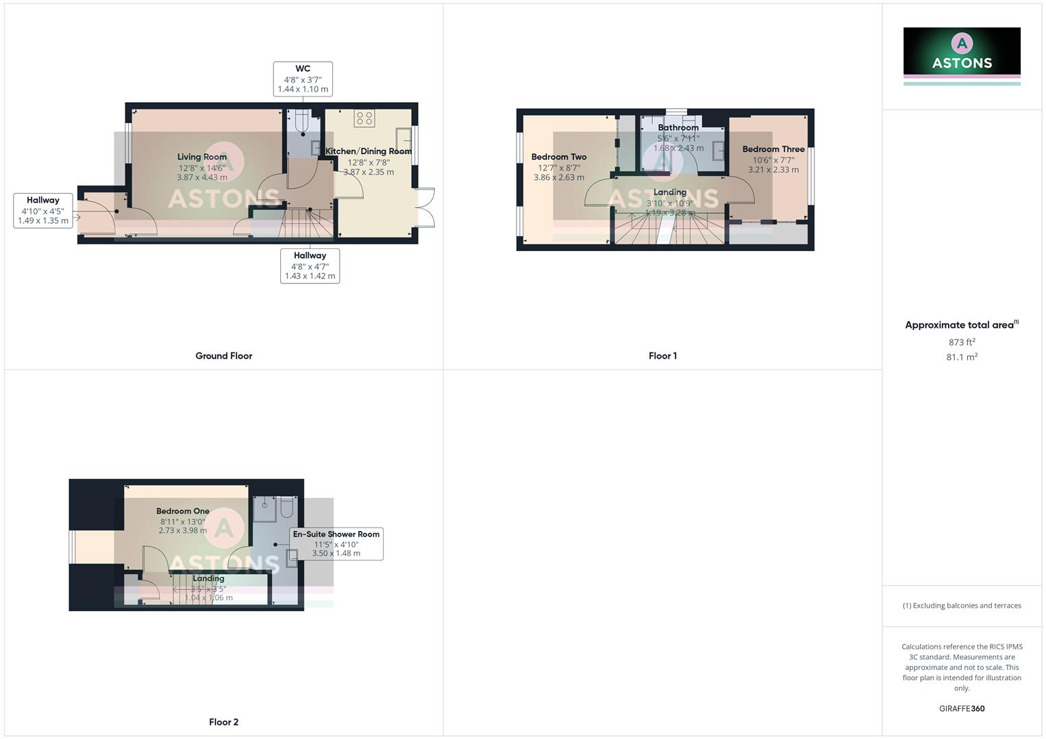
A modern three-bedroom semi-detached townhouse built in 2018, this freehold home provides efficient family living across three floors. The principal bedroom with en-suite occupies the top floor, while two further bedrooms and a family bathroom sit on the first floor. The ground floor offers a separate living room and a fitted kitchen/dining area that opens to a southerly, low‑maintenance garden.

Practical everyday benefits include off-street parking for two to three cars with an EV charging point, fast broadband and excellent mobile signal — useful for commuters and home workers. The property sits in an affluent, well-connected town-fringe location with several highly rated nearby schools and local amenities within walking distance.

Be aware this is a vertically arranged, relatively compact home (approx. 873 ft²) with a small plot and modest room sizes typical of modern townhouses. The internal layout relies on stairs between floors, so it may not suit limited-mobility buyers. There is an estate charge of £376 per annum and a moderate council tax band to factor into ongoing costs.

Overall, the house is well presented and move-in ready, appealing to small families, professionals and investors seeking a modern, low-maintenance property with good local schools and transport links.

Property Details

Brochure Descriptions

Image Descriptions

Floorplan Description

Rooms

Textual Property Features

Target Audience

AI Tags

Detected Visual Features

Nearby Schools

Nearest Bars And Restaurants

,,,,}

Nearest General Shops

,,}

Nearest Grocery shops

,,}

Nearest Supermarkets

,,}

Nearest Religious buildings

,,}

Nearest Medical buildings

,,,}

Nearest Airports

}

Nearest Leisure Facilities

,,,,}

Nearest Tourist attractions

,,}

Nearest Train stations

,,,,}

Nearest Bus stations and stops

,,,,}

Nearest Hotels

,,}

Tags

Local Market Stats

AirBnB Data

Similar Properties

Meta

High Res Images

Compatible Images

Low res Images

Thumbnails

Raw Images

High Res Floorplan Images

Compatible Floorplan Images

Low res Floorplan Images

FloorplanImages Thumbnail

Raw Floorplan Images