### Standout Features:
- Modern one-bedroom apartment in a cosmopolitan student neighborhood
- Convenient first-floor location with secure communal entrance and lift access
- Close proximity to Newcastle City Centre, restaurants, bars, and transport links
- Double glazing and electric heating for comfort
- Undercover off-street parking
### Summary:
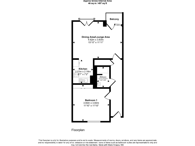
Discover urban living at its finest with this contemporary one-bedroom apartment, ideally situated close to the vibrant heart of Newcastle City Centre. This well-maintained, modern space boasts UPVC double glazing and electric heating, ensuring a warm and inviting atmosphere. The layout encompasses an entrance hall, a bright lounge/diner, a compact kitchen, a neat bathroom, and a bedroom equipped with fitted wardrobes.
Enjoy the peace of mind that comes with a secure communal entrance and undercover parking, ideal for busy professionals or students seeking convenience. With a low council tax band and affordable ground rent, this property presents an excellent opportunity for first-time buyers or investors looking for rental potential in a multicultural area.
While the area does have a higher crime rate and some deprivation, its proximity to essential amenities, including schools and public transport, adds significant value. Don't miss out on this opportunity to own a stylish apartment in a highly sought-after location — it won't be on the market for long!
2 bedroom apartment for sale in Ochre Mews, Raven Road, Ochre Yards, Gateshead, NE8 — £179,950 • 2 bed • 2 bath • 958 ft²
2 bedroom apartment for sale in Marmion Court, Worsdell Drive, Gateshead Quays, NE8 — £145,000 • 2 bed • 2 bath
1 bedroom apartment for sale in Willbrook House, Ochre Yards, Gateshead Quays, NE8 — £84,995 • 1 bed • 1 bath • 528 ft²
2 bedroom apartment for sale in Willbrook House, Worsdell Drive, Ochre Yards, Gateshead, NE8 — £145,000 • 2 bed • 2 bath • 1002 ft²
2 bedroom apartment for sale in Colombo Square, Worsdell Drive, Gateshead Quays, NE8 — £150,000 • 2 bed • 1 bath • 636 ft²
1 bedroom apartment for sale in Colombo Square, Worsdell Drive, Ochre Yards, Gateshead Quays, NE8 — £120,000 • 1 bed • 1 bath • 391 ft²














































