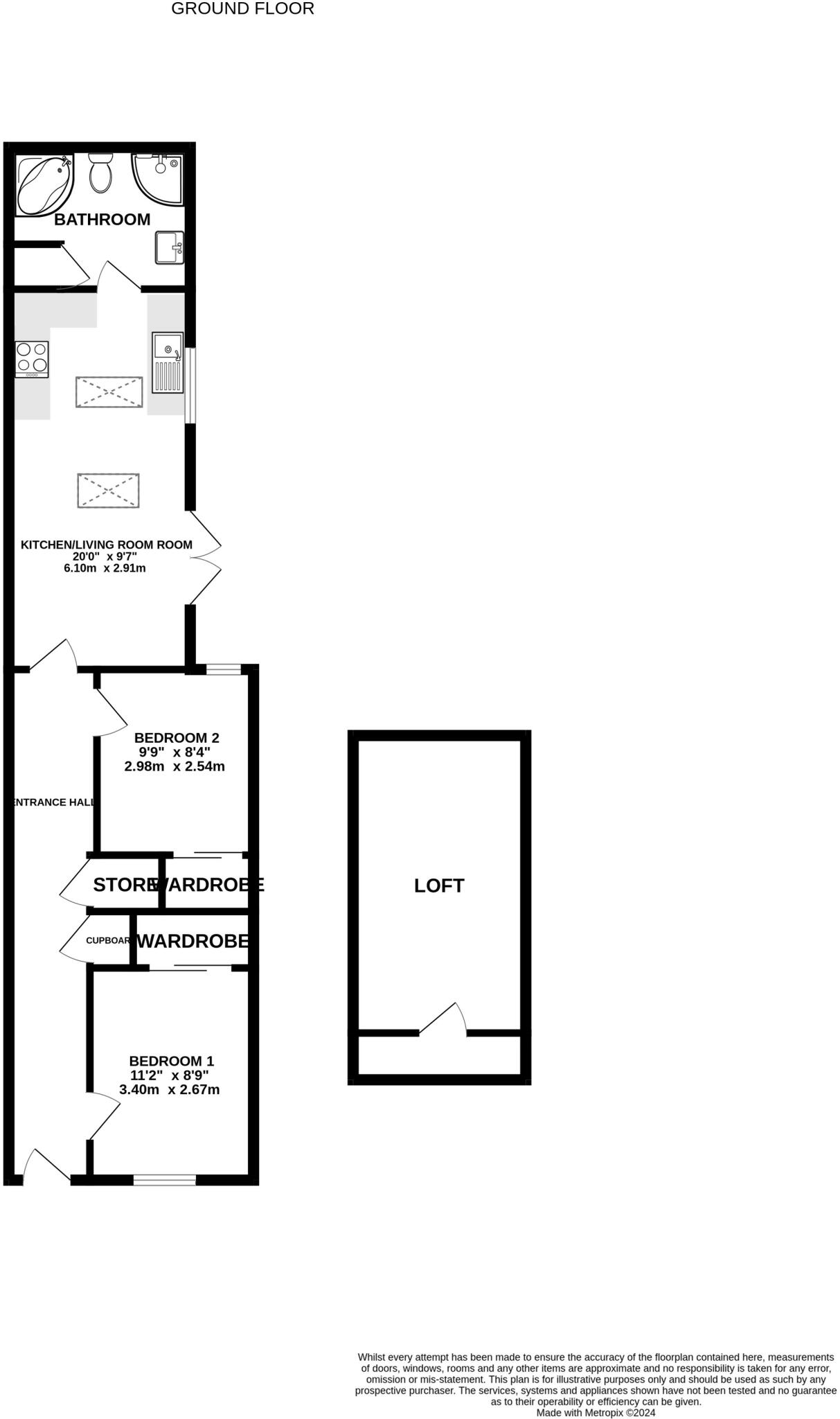
**Standout Features:**
- Two double bedrooms with built-in wardrobes
- Modern, open-plan kitchen and living area with vaulted ceiling and Velux windows
- Newly renovated with high-quality finishes
- Underfloor heating and gas central heating
- Cabin in the garden with home office potential
- Off-street parking and low-maintenance garden
- Quiet, family-friendly neighborhood with excellent schools nearby
**Summary:**
Discover this beautifully refurbished two-bedroom detached bungalow nestled in the charming North Camp village. Designed for modern living, this home features an airy open-plan kitchen and living space, highlighted by a stunning vaulted ceiling and Velux windows that create an inviting atmosphere. Each bedroom offers spacious comfort with built-in wardrobes, perfect for accommodating a small family or savvy couple.
Enjoy the convenience of underfloor heating which adds warmth and efficiency throughout. The well-appointed bathroom is a true oasis, showcasing a free-standing bath and separate shower cubicle. Outside, the property boasts a manageable garden, complete with a versatile cabin currently utilized as a gym, which could easily be transformed into a peaceful home office. With a brick-paved driveway providing off-street parking, this property combines practicality with a cozy charm, all set within a serene community known for its family-friendly atmosphere and top-rated schools nearby.
Whether you're seeking a comfortable family home or considering investment potential, this bungalow offers both modern elegance and scope for future enhancements—don’t miss the opportunity to make it your own!
2 bedroom detached house for sale in Peabody Road, Farnborough , GU14 — £385,000 • 2 bed • 1 bath • 786 ft²
2 bedroom bungalow for sale in Southwood Road, Farnborough, Hampshire, GU14 — £400,000 • 2 bed • 2 bath • 478 ft²
2 bedroom bungalow for sale in Cross Street, Farnborough, Hampshire, GU14 — £325,000 • 2 bed • 1 bath • 738 ft²
3 bedroom detached house for sale in Hazel Avenue, Farnborough, Hampshire, GU14 — £650,000 • 3 bed • 3 bath • 2118 ft²
2 bedroom bungalow for sale in Alexandra Road, Farnborough, Hampshire, GU14 — £325,000 • 2 bed • 1 bath • 438 ft²
2 bedroom bungalow for sale in Park Road, Farnborough, Hampshire, GU14 — £440,000 • 2 bed • 1 bath • 818 ft²


























































