Large garden, garage and single-storey living on Whitland’s peaceful fringe.
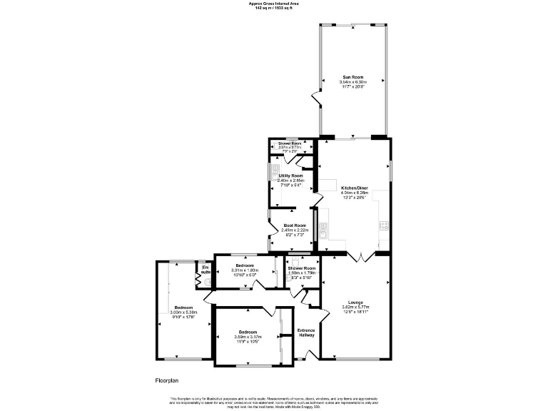
Detached three-bedroom bungalow with master en-suite
Quiet, single-storey living on a generous plot makes this detached three-bedroom bungalow well suited to downsizers seeking space without stairs. The layout includes a welcoming lounge, kitchen/diner/snug, sun room, utility and a master with en-suite, plus an additional shower room and wet room — practical for adaptable ground-floor living.
Externally the plot is a major asset: very large gardens, country-style landscaping, greenhouse, detached garage and ample driveway parking. The house is presented neatly throughout with gas central heating, double glazing and an EPC rating of C, so it is comfortable from day one and ready to enjoy.
Practical considerations: broadband speeds are slow in the area, and the property sits within a very deprived local area classification, which may affect services and resale in some markets. Some details (age of glazing, services and appliances) have not been tested and should be checked by a buyer. The construction date (1983–1990) means some elements may be approaching mid-life maintenance.
Chain free and freehold, this bungalow offers low-maintenance, single-level living with room to personalise. Early viewing is recommended to appreciate the plot size, quiet position on the town fringe and convenient access to Whitland’s amenities and rail links.
3 bedroom detached bungalow for sale in Llys Y Crofft, Whitland, SA34 — £230,000 • 3 bed • 1 bath • 1271 ft²
3 bedroom bungalow for sale in Blaenwaun, Whitland, Carmarthenshire, SA34 — £267,500 • 3 bed • 2 bath • 1217 ft²
3 bedroom detached bungalow for sale in Parsonage Court, Begelly, Kilgetty, SA68 — £290,000 • 3 bed • 2 bath • 911 ft²
2 bedroom bungalow for sale in Trevaughan, Whitland, Carmarthenshire, SA34 — £250,000 • 2 bed • 2 bath
3 bedroom detached bungalow for sale in Llangynog, Carmarthen, SA33 — £600,000 • 3 bed • 1 bath • 1751 ft²
3 bedroom bungalow for sale in Tair Ffynnon, Tavernspite, Whitland, Pembrokeshire, SA34 — £330,000 • 3 bed • 2 bath • 1034 ft²






















































































