Spacious Edwardian five-bedroom family home with balcony sea views, minutes from the seafront..
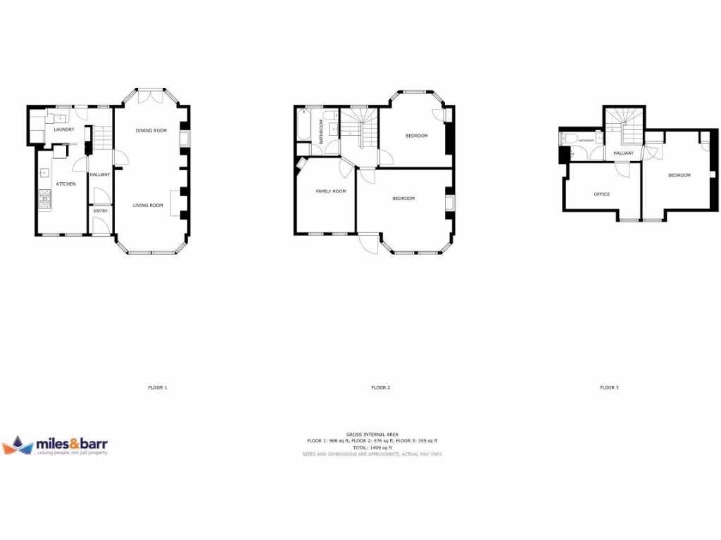
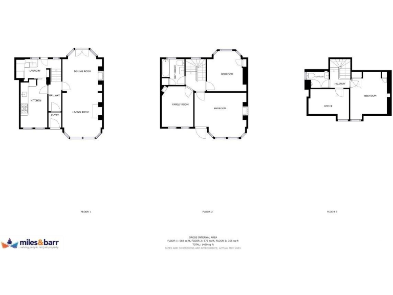
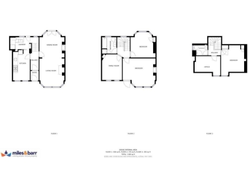
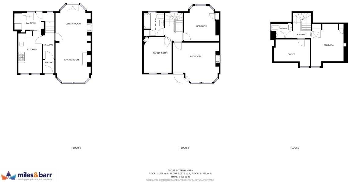
Five bedrooms and two bathrooms across three floors
Front balcony with sea views from master bedroom
Bespoke kitchen, utility room and restored period features
Sunny, secluded low-maintenance walled garden
Freehold; within catchment for several good schools
Solid brick walls likely uninsulated; energy upgrades advised
Small plot in a very deprived area with above-average crime
Two bathrooms only for five bedrooms; may need modernising
Set on Ramsgate’s desirable East Cliff, this double-fronted, five-bedroom Edwardian end-of-terrace offers generous, characterful living across three floors. Tall ceilings, bay windows, original fireplaces, sash and stained-glass features create an authentic period interior, while a bespoke, modernised kitchen and utility room provide contemporary convenience. The master bedroom benefits from a front balcony with sea views, and upper floors will suit bedrooms, home office, or flexible family use.
Outside, a sunny, secluded walled garden provides a low-maintenance retreat with patios and raised beds — rare in this tight urban setting close to Victoria Parade and the seafront. The house is freehold, within catchment for well-regarded local schools, and enjoys fast broadband and excellent mobile signal, making it practical for family life and commuting.
Buyers should factor in the house’s age and location. Built in the 1890s with solid brick walls (likely uninsulated), some sympathetic upgrading and ongoing maintenance may be needed to improve energy efficiency. The property sits in a very deprived area with above-average crime statistics and occupies a relatively small plot; there are two bathrooms to serve five bedrooms. Overall this is a spacious, character-rich family home close to the sea, best suited to buyers who value period charm and are prepared to manage typical Victorian-era upkeep.
4 bedroom terraced house for sale in Queens Road, Ramsgate, Kent, CT11 — £425,000 • 4 bed • 2 bath • 1895 ft²
6 bedroom semi-detached house for sale in Albert Road, Ramsgate, CT11 — £550,000 • 6 bed • 2 bath • 2069 ft²
5 bedroom terraced house for sale in Cannonbury Road, Ramsgate, CT11 — £400,000 • 5 bed • 3 bath • 1872 ft²
5 bedroom semi-detached house for sale in Avenue Road, Ramsgate, Kent, CT11 — £450,000 • 5 bed • 2 bath • 1434 ft²
5 bedroom terraced house for sale in Crescent Road, Ramsgate, CT11 — £425,000 • 5 bed • 2 bath • 1717 ft²
5 bedroom terraced house for sale in Crescent Road, Ramsgate, CT11 9QU, CT11 — £725,000 • 5 bed • 1 bath • 2112 ft²






















































































































