Central Lichfield site with ready-to-restart planning for rental or sale units.
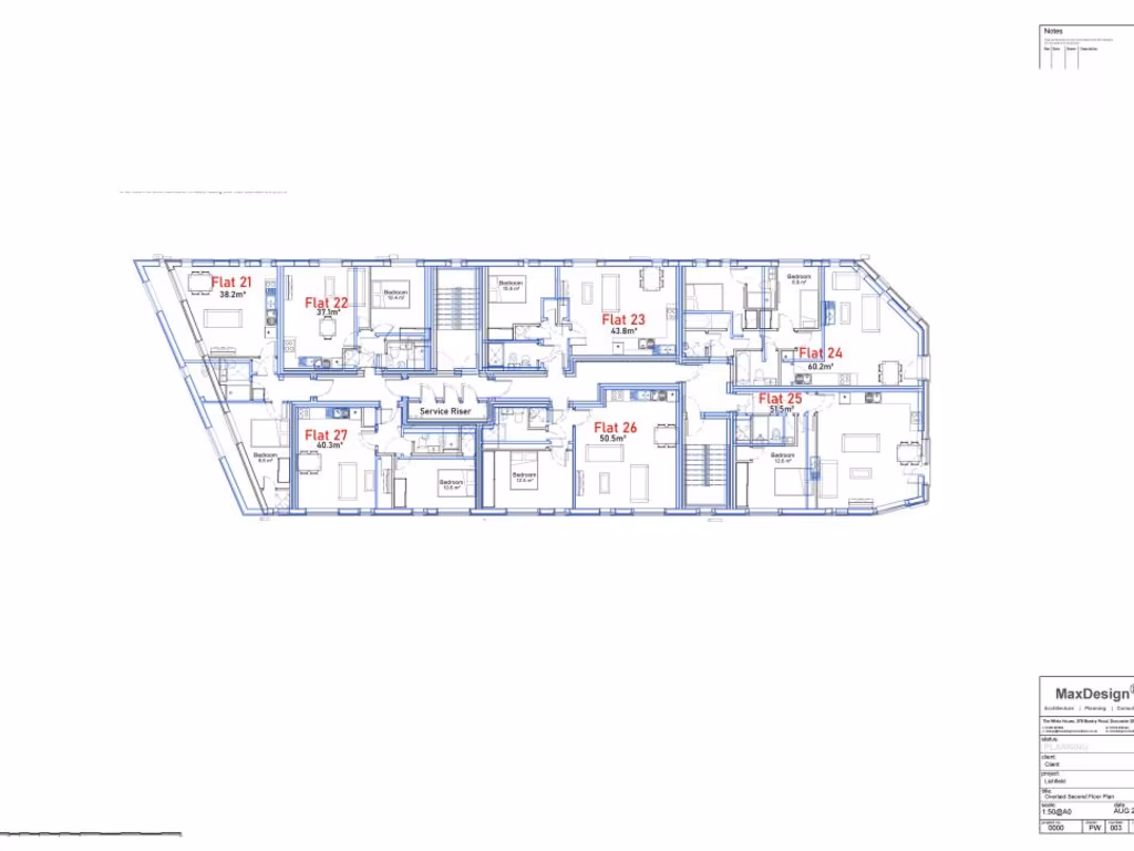
- Full implemented planning for 22 apartments (20x1-bed, 2x2-bed)
- Approximately 10,000 sq.ft development site, freehold
- Located adjacent to Lichfield City railway station and city centre
- Nine dedicated parking spaces plus cycle storage proposed
- Existing part-built structure requires demolition and completion works
- Site vacant since 2021 after contractor administration
- Local crime rate recorded as very high; factor security costs
- Sale at auction: 10% deposit and £1,500 buyer’s fee applies
An extensive freehold development plot in central Lichfield with full, implemented planning permission for 22 apartments. The approved scheme (applications 22/01149/FULM and 20/01610/FULM) covers about 10,000 sq.ft and proposes 20 one-bedroom and 2 two-bedroom units with nine parking spaces and cycle storage—planning has been implemented and can be restarted after demolition of the existing partial structure.
The site sits immediately next to Lichfield City railway station and within easy walking distance of the city centre, offering strong rental and sales demand for entry-level homes. Initial construction progressed to first-floor level before works stopped in 2021; earlier interest and pre-sales indicate market appetite for the scheme once completed.
Buyers should factor in the cost of demolishing the remaining structure and completing the build; the previous contractor entered administration and the site has been vacant since early 2021. There is limited on-site parking (nine spaces) and the local crime statistic is very high, which may affect management, specification and lettings strategy.
The lot will be sold at auction under unconditional terms. Successful bidders exchange contracts immediately and must provide a 10% deposit (minimum £5,000) plus a non-refundable buyer’s fee of £1,500 inc. VAT. Prospective purchasers must review the Legal Pack, confirm planning details, and carry out their own inspections and due diligence before bidding.
2 bedroom mixed use property for sale in 50/50A Wheel Lane, Lichfield, Staffordshire WS13 7EA, WS13 — £195,000 • 2 bed • 1 bath • 689 ft²
Land for sale in Land on Giles Road, Lichfield, WS13 7JU, WS13 — POA • 1 bed • 1 bath
3 bedroom semi-detached house for sale in 32 Beech Gardens, Lichfield, WS14 9EB, WS14 — £105,000 • 3 bed • 1 bath • 948 ft²
Mixed use property for sale in Land lying to the South East of High Street, Wednesfield, Wolverhampton WV11 1SZ, WV11 — £95,000 • 1 bed • 1 bath
Land for sale in High Street, Woodville, Swadlincote, Derbyshire, DE11 — £600,000 • 1 bed • 1 bath
Detached house for sale in Building Plot at Pipehill, Walsall Road, Lichfield, WS13 — £450,000 • 1 bed • 1 bath • 4112 ft²










































