Freehold two-bedroom ground-floor flat, newly renovated
Private fully enclosed patio; recently re-slabbed
Private residents off-street parking included
New boiler and double glazing throughout
743 sq ft (average-sized) with hardwood flooring
One bathroom only; compact layout for some buyers
Located minutes from Glasgow Green and Merchant City
Area classed as very deprived — affects long-term demand
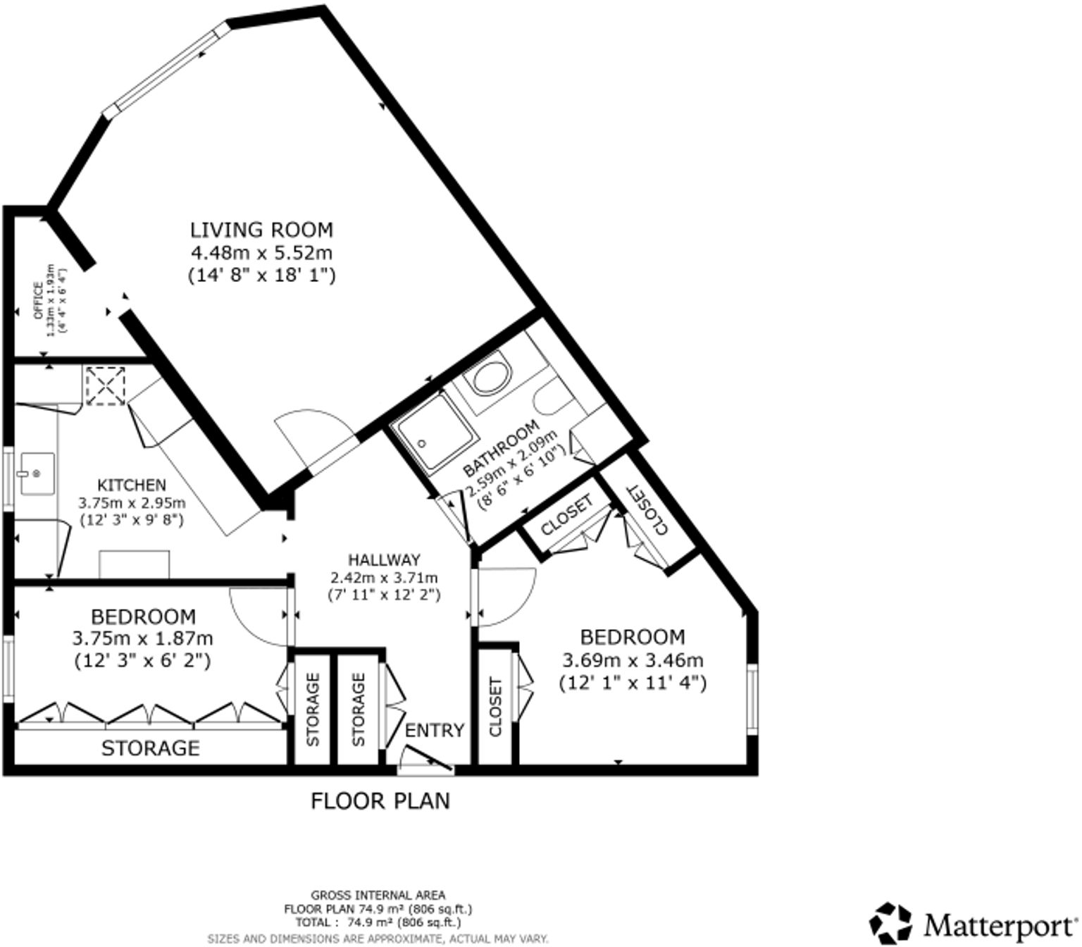
Set on the ground floor of a modern, well-maintained development in New Gorbals, this newly renovated two-bedroom flat offers a ready-to-move-in home with private outdoor space and residents' parking. The owners have upgraded the property throughout, including a new boiler, double glazing, fitted kitchen and bathroom, hardwood floors and built-in wardrobes — ideal for buyers seeking low-maintenance city living.
At about 743 sq ft, the layout includes an entrance hall with storage, two double bedrooms, a lounge with a home-office nook, and a contemporary kitchen with integrated appliances. The private, fully enclosed patio at the rear has been recently re-slabbed and provides a secure outdoor area for dining or pot plants. Council tax is described as affordable and the flat is Freehold, which simplifies ownership compared with leasehold flats.
Location is a key strength: the River Clyde, Glasgow Green and the Merchant City are within easy walking distance, and Bridge Street underground plus multiple bus routes nearby make commuting straightforward. The surrounding neighbourhood is cosmopolitan and close to student areas and local amenities, which may appeal to first-time buyers and buy-to-let investors.
Considerations: the property sits in a very deprived area statistically, which may affect long-term resale and rental demand in some buyer segments. Accommodation is compact by suburban standards; buyers seeking larger family space should note there is a single bathroom and the flat is ground-floor level. Overall, the apartment suits buyers wanting a modern, low-upkeep home near the city centre or an investment purchaser targeting city-centre rental demand.
2 bedroom apartment for sale in McNeil Street, New Gorbals, Glasgow City, G5 — £169,000 • 2 bed • 1 bath • 743 ft²
2 bedroom flat for sale in Investment Way, Glasgow, Glasgow City, G43 — £155,000 • 2 bed • 2 bath • 608 ft²
2 bedroom flat for sale in Kidston Place, Glasgow, G5 — £150,000 • 2 bed • 1 bath • 603 ft²
1 bedroom flat for sale in 102 Old Castle Road, Flat 0/1, Cathcart, Glasgow, G44 5TF, G44 — £119,000 • 1 bed • 1 bath • 495 ft²
2 bedroom flat for sale in 3/2, 20 St. Ninian Terrace, Glasgow, Glasgow City, G5 — £172,000 • 2 bed • 1 bath • 753 ft²
2 bedroom apartment for sale in Cumberland Street, New Gorbals, Glasgow, G5 — £159,000 • 2 bed • 1 bath • 850 ft²


































































