Chain-free one-bedroom flat with garage, parks nearby and commuter links..
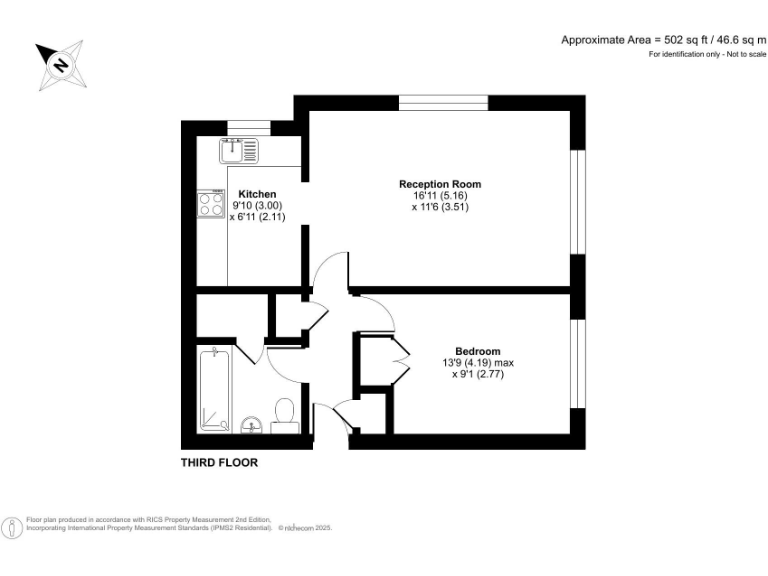
- Top-floor one-bedroom flat, bright with large windows
- Share of freehold and offered chain free
- Garage en-bloc provides private parking or storage
- 495 sqft — comfortable for single/couple or rental
- Communal gardens and close to Crystal Palace Park
- Cavity walls as built; no confirmed insulation
- Double glazing present; install date unknown
- Area recorded as above-average crime; some deprivation
A bright top-floor one-bedroom flat in Carole House, offered chain free with a share of freehold. The apartment feels airy thanks to large windows and an open living space; laminated floors and ample storage keep upkeep straightforward. At 495 sq ft the layout suits a single buyer or couple, and a garage en-bloc provides useful private parking or storage.
Location is a practical selling point: short walk to Anerley Station, quick access to local shops and cafes, and close to green spaces including Crystal Palace Park and Betts Park. Fast broadband and excellent mobile signal support home-working, while cheap council tax helps running costs.
Be aware of some practical drawbacks. The building dates from the late 1960s/early 1970s; walls are cavity as built with no confirmed insulation, and the double glazing install date is unknown — both could mean further energy improvements are needed. The local area records above-average crime and is relatively deprived, which may affect resale or rental expectations.
This flat suits first-time buyers or investors seeking a low-maintenance city base with commuter convenience and park access. It offers immediate, chain-free occupation and clear scope for modest energy upgrades to improve comfort and efficiency.
2 bedroom flat for sale in Anerley Road, London, SE20 — £350,000 • 2 bed • 1 bath • 756 ft²
1 bedroom flat for sale in Church Road, Crystal Palace, London, SE19 — £250,000 • 1 bed • 1 bath • 487 ft²
1 bedroom flat for sale in Sylvan Road, London, SE19 — £280,000 • 1 bed • 1 bath • 527 ft²
1 bedroom flat for sale in Anerley Road, London, SE20 — £225,000 • 1 bed • 3 bath • 516 ft²
1 bedroom apartment for sale in Anerley Park Road, London, SE20 — £300,000 • 1 bed • 1 bath • 453 ft²
1 bedroom flat for sale in Anerley Park, Anerley, London, SE20 — £275,000 • 1 bed • 1 bath • 435 ft²






















































































