South-facing garden and large driveway close to excellent schools and amenities.
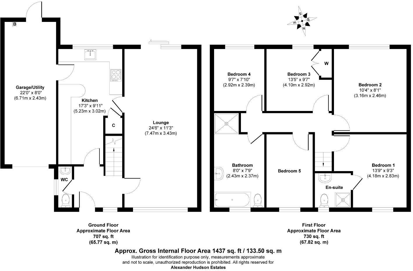
Five bedrooms with master ensuite and three bathrooms
This well-presented five-bedroom detached house offers flexible family living across multiple floors, with three bathrooms and a master ensuite. Bright, open-plan living and French doors open to a large south-facing garden, ideal for summer entertaining. A wide driveway and integral garage provide generous off-street parking.
Set in a comfortable, well-served neighbourhood within walking distance of supermarkets, leisure facilities and several highly rated primary and secondary schools, the location suits growing families who need easy access to amenities and commuting routes.
Practical details include mains gas central heating with a boiler and radiators, double glazing (installed post-2002), cavity-filled walls and freehold tenure. Council tax is moderate and broadband and mobile signals are strong.
Notable points to consider: the listing records the overall size as small, and local crime is rated average. Buyers who need very large internal living space or lower running costs should confirm measurements and running expenses at viewing. The house was built in the 1980s, so buyers may wish to review mechanical and cosmetic elements over time despite the current good presentation.
3 bedroom detached house for sale in Edgemount, Killingworth, NE12 — £290,000 • 3 bed • 2 bath • 1260 ft²
5 bedroom semi-detached house for sale in Crumstone Court, Killingworth, NE12 — £285,000 • 5 bed • 1 bath • 1100 ft²
4 bedroom semi-detached house for sale in Glencoe, Killingworth, Newcastle upon Tyne, Tyne and Wear, NE12 6QB, NE12 — £260,000 • 4 bed • 1 bath
3 bedroom detached house for sale in Ullswater Drive, Killingworth NE12 — £300,000 • 3 bed • 1 bath • 1260 ft²
3 bedroom semi-detached house for sale in Ryder Court, Killingworth, NE12 — £210,000 • 3 bed • 2 bath • 829 ft²
3 bedroom detached house for sale in Crumstone Court, Killingworth, NE12 — £310,000 • 3 bed • 2 bath • 1270 ft²














































































































