**Standout Features:**
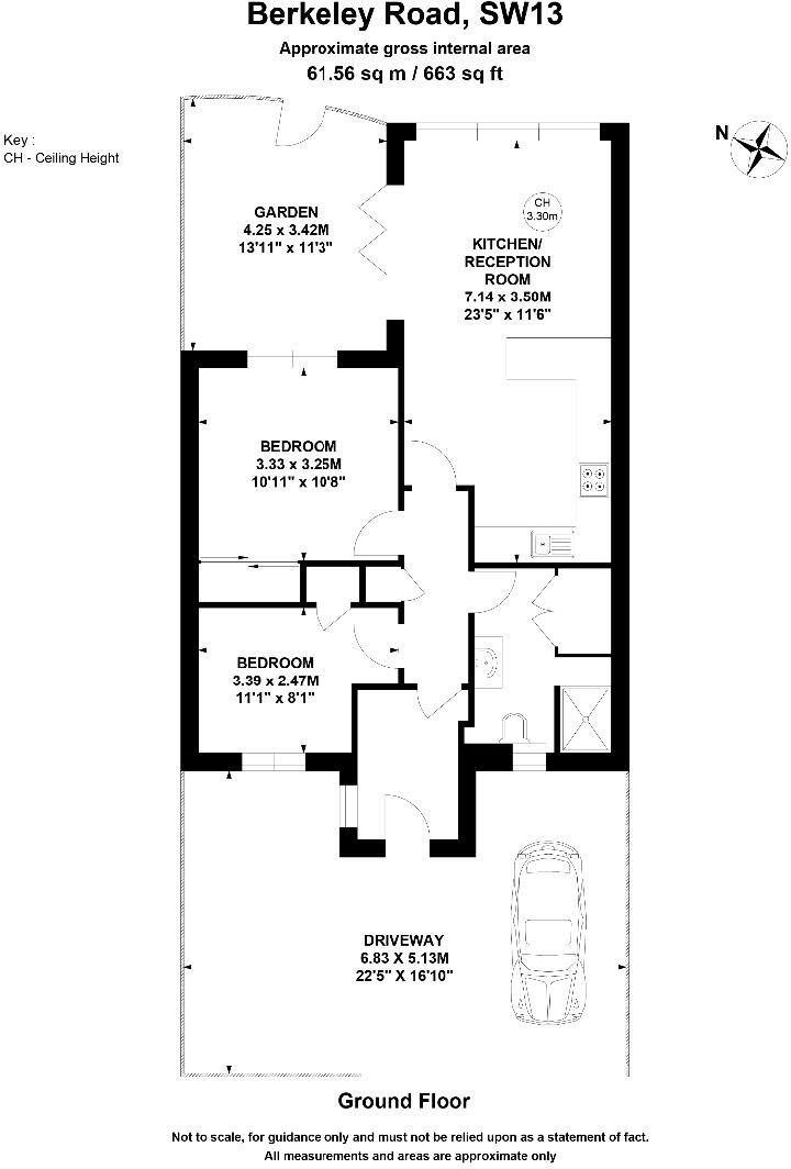
- Contemporary two-bedroom retirement bungalow in desirable Barnes Village.
- Open-plan living area with high ceilings and large sliding glass doors for abundant natural light.
- Modern kitchen with built-in appliances, tailored design, and easy access features.
- Private low-maintenance garden with patio, plus access to communal gardens and residents' lounge.
- Off-street parking available in a quiet cul-de-sac.
- Long lease with 976 years remaining and affordable service charge of £3,800/year.
- Located near excellent local amenities, scenic parks, and transport links.
**Summary:**
Experience tranquil retirement living in this beautifully presented two-bedroom bungalow in the heart of Barnes Village. With a stylish Scandinavian design and an inviting open-plan layout, the spacious interior boasts high ceilings and large glass doors that seamlessly connect your living area to a cozy private patio garden—perfect for relaxation or small gatherings. This leasehold property, restricted to buyers aged 60 and above, offers convenient off-street parking and access to well-maintained communal spaces including gardens and lounges for socializing.
Situated on a sought-after cul-de-sac, you're just a leisurely stroll from charming boutiques, delightful restaurants, and the scenic River Thames. Local green spaces like Barnes Common and Barnes Wetlands enhance the living experience, while excellent transport options ensure easy connectivity to London. Embrace this unique opportunity for low-maintenance living in a vibrant, affluent community—ideal for those seeking comfort and convenience in their retirement years. Don't miss out on this exceptional offering!
2 bedroom terraced house for sale in Sheridan Place, SW13 — £535,000 • 2 bed • 1 bath • 758 ft²
2 bedroom bungalow for sale in White Hart Lane, Barnes, London, SW13 — £895,000 • 2 bed • 2 bath • 948 ft²
2 bedroom bungalow for sale in Patrons Way West, Denham Garden Village, Denham, Buckinghamshire, UB9 — £500,000 • 2 bed • 2 bath • 818 ft²
1 bedroom retirement property for sale in Village Gardens. Ewell, KT17 — £250,000 • 1 bed • 1 bath • 469 ft²
2 bedroom terraced bungalow for sale in Regency Walk, Grosvenor Road, TW10 — £450,000 • 2 bed • 1 bath • 517 ft²
2 bedroom retirement property for sale in Oakmead Green, Epsom, KT18 — £380,000 • 2 bed • 2 bath • 750 ft²






























































