AB53 5QP - 4 bedroom detached bungalow for sale in Bungalow, Turriff,…

View on Property Piper

4 bedroom detached bungalow for sale in Bungalow, Turriff, AB53

Summary - BUNGALOW, OVERBRAE, TURRIFF, FISHERIE AB53 5QP

4 bed 2 bath Detached Bungalow

**Standout Features:**
- Newly renovated, four-bedroom detached bungalow
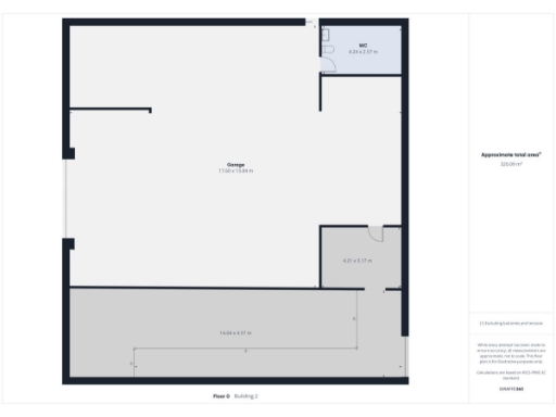
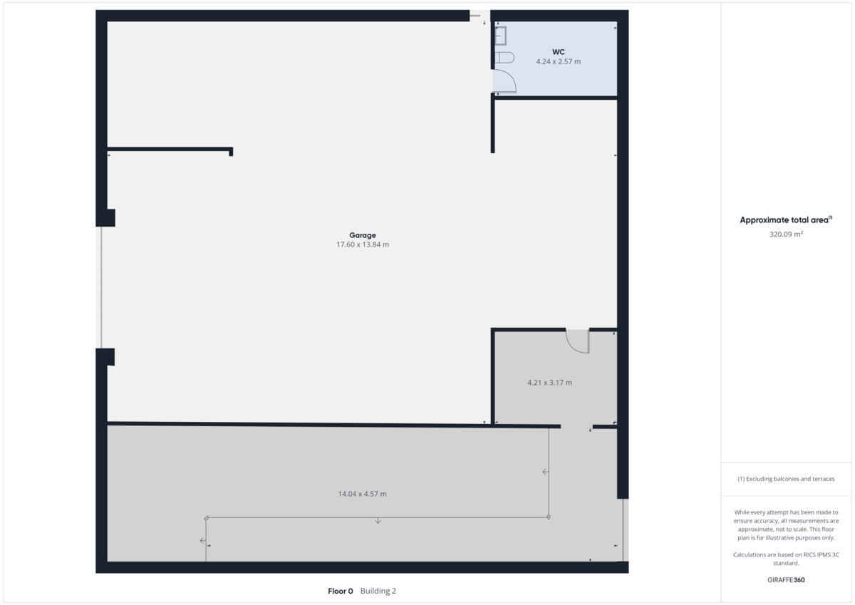
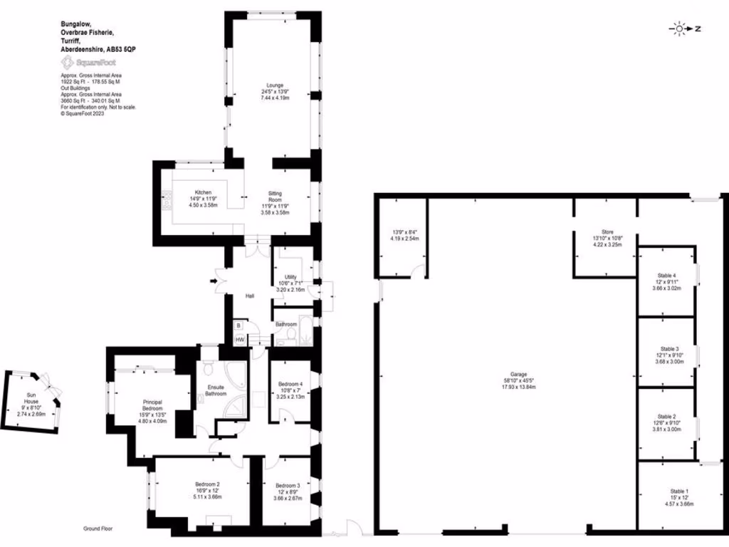
- Approximately 9 acres of land with fenced paddocks and stables
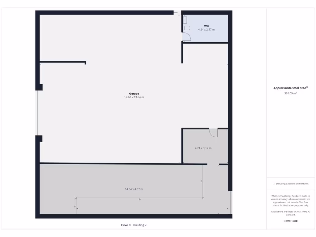
- Large agricultural barn/workshop (44ft x 88ft) with multiple functional areas
- Contemporary design with quality finishes and spacious living
- Ideal for families, equestrian enthusiasts, or investors seeking smallholding potential

**Potential Concerns:**
- Located in an area classified as "very deprived"
- Broadband speeds are very slow
- Council tax is affordable, but overall area amenities may be limited

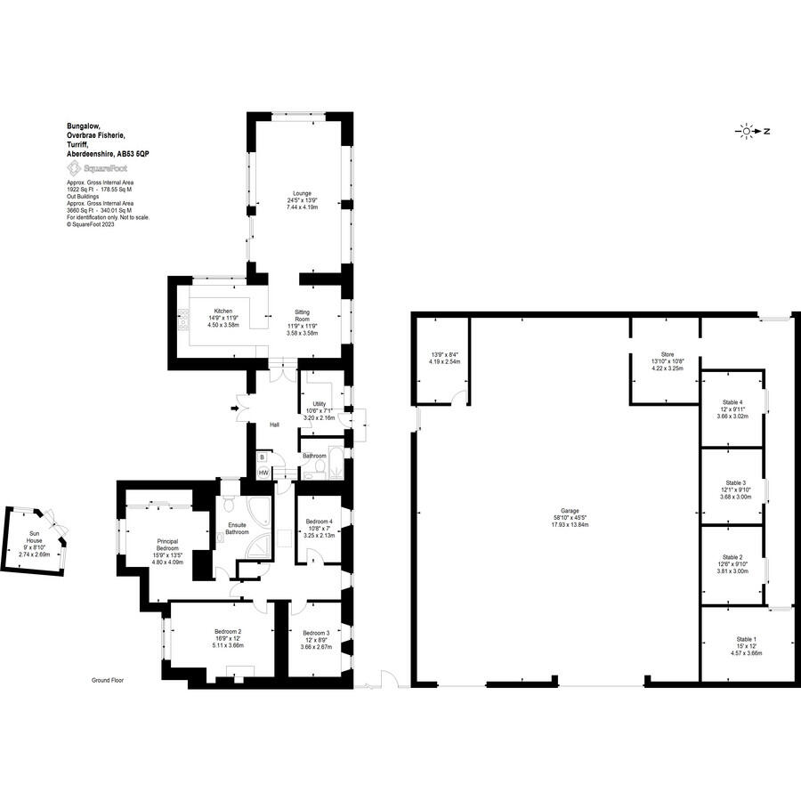
Discover a rare opportunity with this beautifully renovated four-bedroom detached bungalow, nestled in the serene countryside of Turriff. Situated on an expansive 9 acres, this property features stunning views and a wealth of equestrian amenities, including fenced paddocks, four internal stables, and a massive agricultural barn that promises versatility for many uses, perhaps even income generation.

Step inside to find a bright and spacious interior, boasting a modern kitchen with a multi-fuel range cooker, generous living areas with triple-aspect views, and a sun-drenched lounge with direct access to the garden. The well-appointed master suite includes an ensuite with an indulgent corner jacuzzi, while three additional bedrooms offer peaceful retreats. Enhancements throughout, such as oak finishes, multi-fuel stoves, and triple/double glazing ensure that you’ll enjoy comfort and elegance in every room.

This property’s outdoor space is equally impressive, featuring a beautifully maintained garden area, perfect for families or those with pets. With the financial advantage of an agricultural holding registration and ample parking options, this home is an ideal canvas for buyers looking to step into a rural lifestyle, while also presenting the opportunity for potential extensions or further renovations. Don’t miss your chance to embrace a unique lifestyle in a gorgeous setting—this bungalow will not last long.

Property Details

Image Descriptions

Floorplan Description

Rooms

Textual Property Features

Detected Visual Features

Nearest Bars And Restaurants

,,,,}

Nearest General Shops

,,}

Nearest Grocery shops

,,}

Nearest Supermarkets

,,}

Nearest Religious buildings

,,}

Nearest Medical buildings

,,,}

Nearest Leisure Facilities

,,,,}

Nearest Tourist attractions

,,}

Nearest Train stations

,,,}

Nearest Bus stations and stops

,,,,}

Nearest Hotels

,,}

Tags

Local Market Stats

Similar Properties

Meta

High Res Images

Compatible Images

Low res Images

Thumbnails

Raw Images

High Res Floorplan Images

Compatible Floorplan Images

Low res Floorplan Images

FloorplanImages Thumbnail

Raw Floorplan Images