Ideal seaside starter home or rental near shops and beaches.
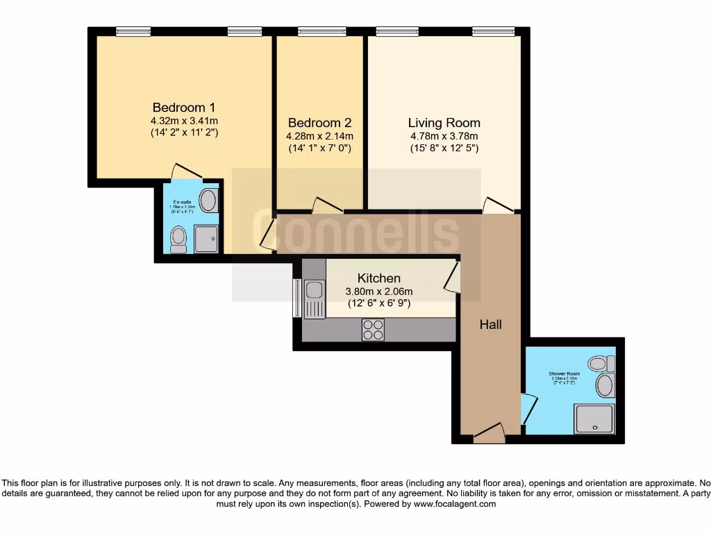
Second-floor two-bedroom apartment with two bathrooms
A newly converted two-bedroom apartment on the second floor, finished with modern kitchens and bathrooms and fitted flooring throughout. The building retains period character with sash windows and high ceilings, while offering practical accessibility via lift and stairs and an intercom-secured entrance.
This property suits first-time buyers seeking a coastal base or investors targeting reliable rental demand; the layout includes a separate living room, two double bedrooms and two bathrooms across a compact 605 sq ft footprint. The 125-year lease from 2025 and a below-average service charge make the holding costs straightforward, though leasehold fees and building insurance apply.
Be upfront about the location: the apartment sits in a very deprived area of Weymouth with average recorded crime. While the town-centre spot places shops, restaurants and award-winning beaches within easy walking distance, buyers should weigh local social challenges alongside the strong local amenities and tourist appeal.
Buyers should confirm all lease details, service charges and any additional fees before committing. Appliances and services have not been independently tested; a survey and solicitor checks are recommended to verify condition and rights prior to purchase.
2 bedroom apartment for sale in St. Mary Street, Weymouth, DT4 — £160,000 • 2 bed • 1 bath
1 bedroom apartment for sale in Coburg Place, Weymouth, DT4 — £150,000 • 1 bed • 1 bath
1 bedroom apartment for sale in Coburg Place, Weymouth, DT4 — £130,000 • 1 bed • 1 bath
1 bedroom apartment for sale in Coburg Place, Weymouth, DT4 — £145,000 • 1 bed • 1 bath
2 bedroom apartment for sale in Beaufort Garden Mews, Lower St. Alban Street, Weymouth, DT4 — £180,000 • 2 bed • 2 bath • 665 ft²
1 bedroom flat for sale in St. Mary Street, Weymouth, Dorset, DT4 — £130,000 • 1 bed • 1 bath • 492 ft²


















































































