Well-lit first-floor apartment with communal gardens and handy bike store.
Two double bedrooms plus a small dedicated home office/study
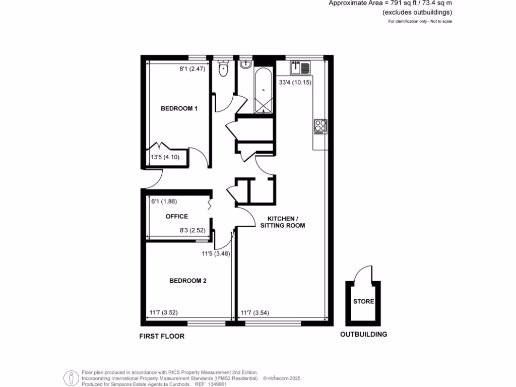
A bright, well-proportioned two-bedroom first-floor flat arranged around a long open-plan sitting room and kitchen that runs the depth of the apartment. The layout includes two double bedrooms plus a small dedicated home office — useful for remote working — and a single modern bathroom. At about 791 sq ft this is a comfortable starter home or buy-to-let unit in an established residential pocket between Hampton Wick and Teddington.
The building sits in well-maintained communal grounds and benefits from a nearby bike store, fast broadband and excellent mobile signal. Interiors are neatly presented with simple, maintained finishes and wooden flooring in the reception; the apartment receives good natural light to one elevation. Local schools rated Outstanding/Good and plentiful local amenities make this a practical choice for first-time buyers wanting convenience and green space.
Practical points to note: the flat is leasehold with approximately 81 years remaining, an annual service charge (circa £1,332) and a small ground rent (£10). There is a single bathroom and no private garden — communal grounds only. The building dates from the late 1960s/early 1970s, so cosmetic updating or targeted refurbishment could add value and better personalise the space.
Overall this is a sensible, well-located property that suits buyers seeking move-in practicality with scope to improve. It represents clear potential for first-time buyers or investors who value space, transport connections and strong local schools, while being mindful of the leasehold costs and remaining term.
2 bedroom flat for sale in Conifers Close, Teddington, TW11 — £395,000 • 2 bed • 1 bath • 492 ft²
2 bedroom flat for sale in Crieff Court, Teddington, TW11 — £389,950 • 2 bed • 1 bath • 718 ft²
2 bedroom flat for sale in Conifers Close, Teddington, TW11 — £399,950 • 2 bed • 1 bath • 511 ft²
2 bedroom flat for sale in Kingston Road, Teddington, TW11 — £425,000 • 2 bed • 1 bath • 900 ft²
2 bedroom flat for sale in Kingston Road, Teddington, TW11 — £450,000 • 2 bed • 1 bath • 741 ft²
2 bedroom flat for sale in Vicarage Road, Hampton Wick, KT1 — £435,000 • 2 bed • 1 bath • 706 ft²










































