**Standout Features:**
- Chain-free semi-detached residence with immediate vacant possession
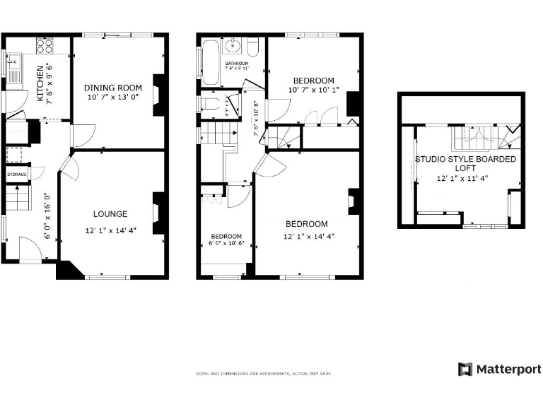
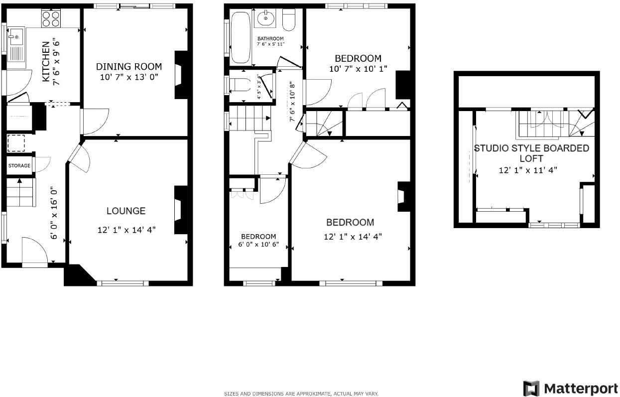
- Three well-proportioned bedrooms and tiled bathroom with separate low suite WC
- Two separate reception rooms and a breakfast-snack kitchen
- Useful boarded loft area with dormer window, ideal for a home office or hobbies den
- Private long rear garden, detached brick garage, and greenhouse
- Located in an affluent community close to highly-rated schools and recreational areas
**Concise Summary:**
This charming semi-detached home presents an exciting opportunity for families looking to settle in a prime location. With three spacious bedrooms, a tiled bathroom, and two reception rooms, this property offers ample living space and potential for renovation. The separate breakfast-snack kitchen provides a cozy area for family meals, while the boarded loft with a dormer window could serve as a versatile office or hobbies area.
Situated in the sought-after postcode of LS17 5HL, this home is conveniently located near highly-rated primary and secondary schools, ideal for families. The generous private garden is perfect for outdoor activities, although it currently requires some attention to reach its full potential. With a detached brick garage and convenient access to woodland walking paths, this property is a perfect blend of comfort, opportunity, and community. Don't miss out on making this your new family haven; properties in this area are moving fast!
3 bedroom semi-detached house for sale in Primley Park Way, Leeds, West Yorkshire, LS17 — £370,000 • 3 bed • 1 bath • 1280 ft²
3 bedroom semi-detached house for sale in Kirkwood Crescent, Cookridge, Leeds, West Yorkshire, LS16 — £329,950 • 3 bed • 1 bath • 850 ft²
3 bedroom detached house for sale in Birkdale Drive, Leeds, West Yorkshire, LS17 — £399,950 • 3 bed • 1 bath • 1018 ft²
3 bedroom semi-detached house for sale in Birkdale Drive, Leeds, LS17 — £375,000 • 3 bed • 1 bath • 804 ft²
3 bedroom semi-detached house for sale in Winding Way, Leeds, West Yorkshire, LS17 — £375,000 • 3 bed • 1 bath • 893 ft²
3 bedroom semi-detached house for sale in Deanswood Green, Leeds, West Yorkshire, LS17 — £330,000 • 3 bed • 1 bath • 1081 ft²


















































































































