Bright, chain‑free one-bed with patio near Kings Road and excellent transport links.
Chain free one-bedroom apartment with private south-facing patio
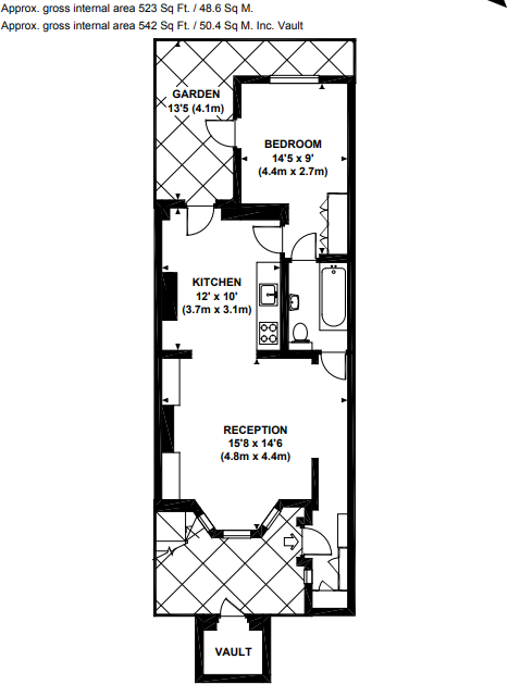
A bright, cleverly reconfigured one-bedroom apartment in Chelsea, offered chain free and ready to move into. The open-plan kitchen/reception maximises light and space, while the double bedroom includes built-in storage. A private south-facing patio garden and a front storage vault add rare outdoor and storage benefits for a property of this size.
This flat will suit first-time buyers or investors drawn to central Chelsea living. It sits within walking distance of the Kings Road boutiques, restaurants and riverfront, with Fulham Broadway and Imperial Wharf nearby for fast links across London. Local schools include several rated Good or Outstanding, enhancing family appeal despite the one-bedroom layout.
Practical points are straightforward: the lease has about 94 years remaining, service charges average c.£1,200 pa and ground rent is c.£10. The building is a Victorian mid‑terrace with solid brick walls and traditional construction; some buyers may wish to consider thermal upgrades. Crime in the area is reported as above average and the immediate locality has pockets of deprivation, although transport, broadband and mobile signals are strong.
Overall this is a smartly presented, low-maintenance Chelsea home with outside space and secure storage — an appealing purchase for someone seeking central location and character, aware of the leasehold and service-cost considerations.
1 bedroom apartment for sale in Ashburnham Mansions, Chelsea, SW10 — £525,000 • 1 bed • 1 bath • 518 ft²
1 bedroom flat for sale in Fulham Road, London, SW10 — £460,000 • 1 bed • 1 bath • 436 ft²
2 bedroom apartment for sale in Burnaby Street, Chelsea, SW10 — £750,000 • 2 bed • 2 bath • 836 ft²
1 bedroom apartment for sale in Burnaby Street, Chelsea, SW10 — £600,000 • 1 bed • 1 bath • 676 ft²
1 bedroom flat for sale in Cheyne Walk, Chelsea, SW10 — £500,000 • 1 bed • 1 bath • 576 ft²
1 bedroom apartment for sale in Pooles Lane, London, SW10 — £450,000 • 1 bed • 1 bath • 498 ft²










































































