Victorian semi-detached cottage with period features and modern updates
Newly fitted kitchen and recently redecorated interior throughout
Over 100 ft private rear garden with extension potential (subject to consents)
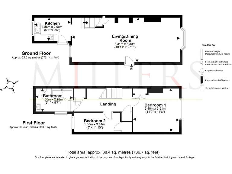
Approximately 729 sq ft; average-sized two-bedroom layout
Double glazed windows and mains-gas central heating for everyday comfort
Second bedroom is compact — limited space for a double bed
Solid brick construction; no known cavity insulation (may need upgrading)
Freehold tenure; close to Epping High Street and station (250m)
Set back on St Johns Road, this two-bedroom semi-detached Victorian cottage combines period character with recent modern upgrades. The living/dining room feels welcoming with a fireplace, sash-style windows and hardwood floors, while a newly fitted kitchen and recently redecorated interior make the house move-in ready for a small family or professionals.
The property’s standout asset is the long rear garden — over 100 feet — rare for the area and ideal for children, gardening or a future rear extension (subject to planning). Double glazing and a mains-gas boiler provide everyday comfort, and the house sits just 250 metres from Epping High Street with easy access to Epping Station for commuter convenience.
Practical points to note: the home is an average-sized two-bedroom (approx. 729 sq ft) with a notably compact second bedroom. The building is solid-brick as originally constructed and there is no known cavity insulation; buyers seeking improved thermal performance may want to budget for insulation or retrofit work. There is good scope to personalise or extend the property, but any plans will require usual consents.
Overall, this freehold cottage will suit buyers wanting a characterful, well-presented home close to local schools, shops and transport links. It offers immediate comfort with clear potential to increase living space and value with sympathetic improvement works.















































































































