BS30 6NG - Barn conversion for sale in North Stoke Lane, Upton Cheyney…

View on Property Piper

Barn conversion for sale in North Stoke Lane, Upton Cheyney, Bristol, Gloucestershire, BS30

Summary - North Stoke Lane, Upton Cheyney, Bristol, Gloucestershire, BS30 BS30 6NG

1 bed 1 bath Barn Conversion

**Standout Features:**
- Detached 2-bedroom barn conversion
- Spacious accommodation of 172m2 (1,853ft2)
- Agricultural land approximately 2.85 acres
- Private countryside location, ideal for rural living
- Ample parking and mature gardens
- Nearby outstanding primary school (Saltford CofE Primary)

**Potential Downsides:**
- Subject to Rural Enterprise Condition
- Broadband speeds may be slow
- Mobile signal rated as average

Nestled in an accessible yet private rural setting, this impressive detached barn conversion offers the perfect blend of spacious living and potential for a serene lifestyle. Spanning over 1,853 square feet, the property features a contemporary open-plan living area with a double-height ceiling that invites abundant natural light, leading to a well-designed kitchen and two generously sized bedrooms. With around 2.85 acres of land, this property is well-suited for those seeking a lifestyle with agricultural opportunities.

Families will appreciate being within reach of top-rated schools, including the outstanding Saltford CofE Primary School, fostering a nurturing environment for children. The expansive outdoor space provides ample room for gardening, recreation, or future extensions, enhancing the property's appeal for growth potential. While the property is subject to a Rural Enterprise Condition and offers slow broadband speeds, these elements create a unique opportunity for those looking to establish a tranquil haven.

Seize this rare opportunity to own a spacious and versatile country retreat that combines comfort, exclusivity, and the chance to embrace a rural lifestyle. Don't miss out on this exceptional listing!

Property Details

Image Descriptions

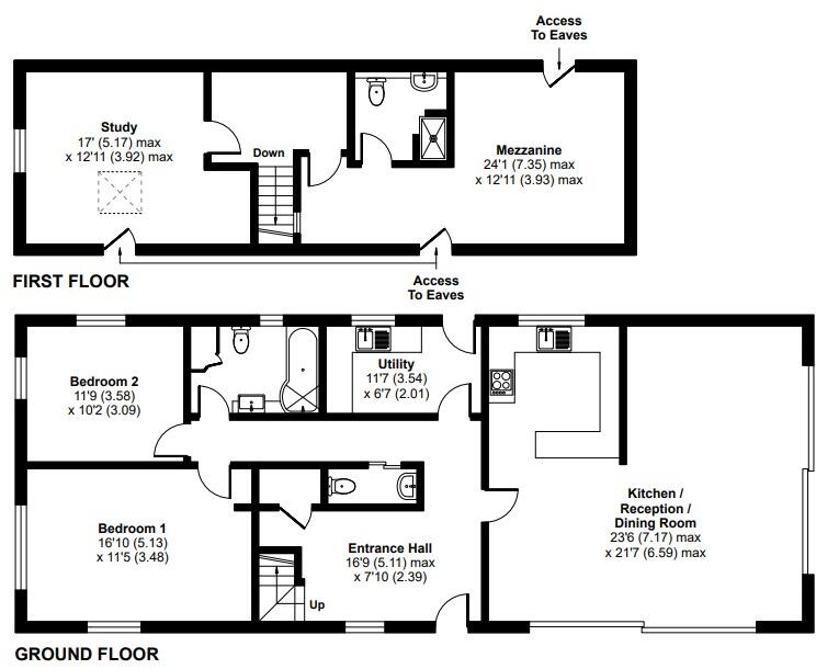
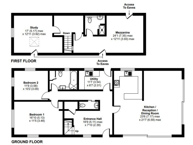
Floorplan Description

Rooms

Textual Property Features

Detected Visual Features

Nearby Schools

Nearest Bars And Restaurants

,,,,}

Nearest General Shops

,,}

Nearest Grocery shops

,,}

Nearest Supermarkets

,,}

Nearest Religious buildings

,,}

Nearest Medical buildings

,,,}

Nearest Airports

}

Nearest Leisure Facilities

,,,,}

Nearest Tourist attractions

,,}

Nearest Train stations

,,,,}

Nearest Bus stations and stops

,,,,}

Nearest Hotels

,,}

Tags

Local Market Stats

AirBnB Data

Similar Properties

Meta

High Res Images

Compatible Images

Low res Images

Thumbnails

Raw Images

High Res Floorplan Images

Compatible Floorplan Images

Low res Floorplan Images

FloorplanImages Thumbnail

Raw Floorplan Images