Large family home with deep south-westerly garden and flexible basement space.
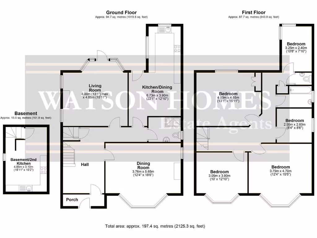
Approximately 2,125 sq ft of living space across three levels
This substantial Edwardian detached house on leafy Mayfield Road offers 2,125 sq ft of family living across three levels. Original period features — bay windows, cast-iron fireplaces, ornate staircase and sash/lead glazing — give character throughout, while generous reception rooms and a large open-plan kitchen form the heart of daily life.
Externally the plot is a strong asset: about 110ft south-westerly garden, paved entertaining terrace, mature planting, automatic watering system and off-street parking for several cars behind a low brick boundary. A basement second kitchen/utility creates flexible possibilities for an annexe, home office or entertaining support space.
Practical points to note: the solid-brick walls are likely uninsulated and the current EPC shows an E rating (42) with scope to reach B if upgraded. There are only two bathrooms for five bedrooms, and council tax is described as quite expensive. Given the age (circa 1900) some services and finishes may need updating to modern efficiency and comfort standards.
Overall this is a rare, spacious family home in an affluent, low-crime area with excellent local schools and community amenities, including tennis courts. It will suit a growing family seeking period character and sizable outdoor space, or buyers wanting a property with scope for sympathetic improvement to add value.
5 bedroom semi-detached house for sale in Mayfield Road, South Sutton, SM2 — £1,100,000 • 5 bed • 3 bath • 2261 ft²
6 bedroom detached house for sale in Grove Road, Sutton, Surrey, SM1 — £1,500,000 • 6 bed • 3 bath • 2700 ft²
5 bedroom detached house for sale in Banstead Road South, South Sutton, SM2 — £1,300,000 • 5 bed • 2 bath • 2187 ft²
4 bedroom semi-detached house for sale in Banstead Road South, South Sutton, SM2 — £900,000 • 4 bed • 4 bath • 2575 ft²
5 bedroom detached house for sale in Chalgrove Road, South Sutton, SM2 — £1,200,000 • 5 bed • 2 bath • 2524 ft²
5 bedroom house for sale in Sherwood Park Road, Sutton, SM1 — £800,000 • 5 bed • 2 bath • 2260 ft²






































































































