Character-rich two-bed with parking, close to stations and top local schools..
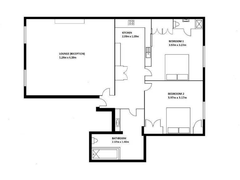
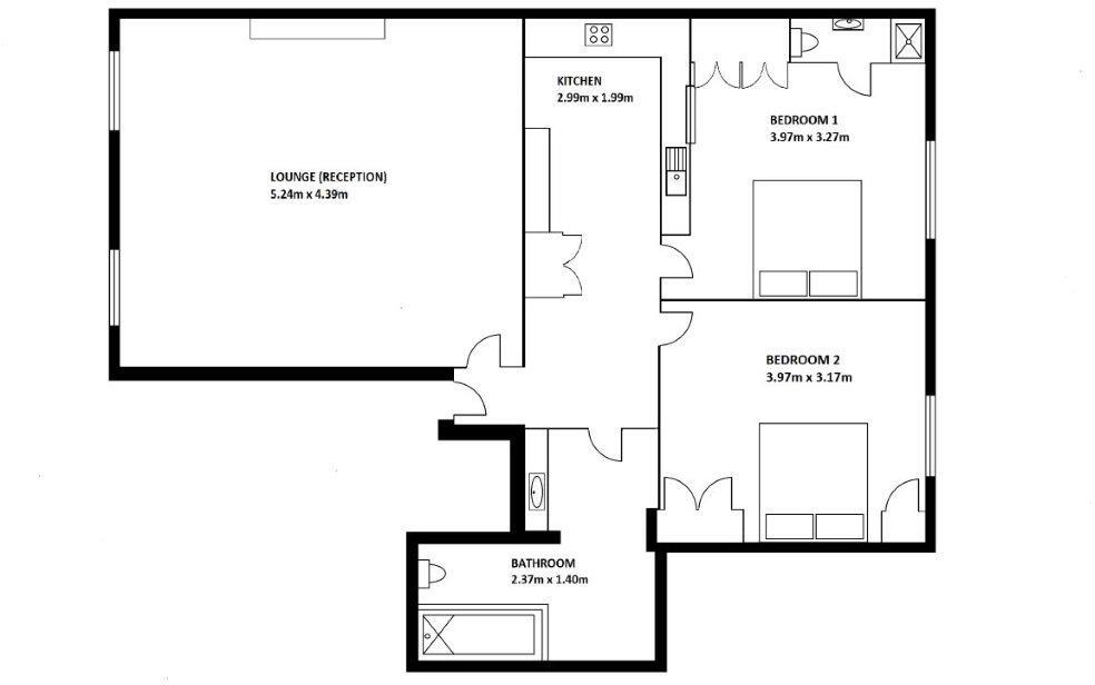
Victorian raised-ground conversion with high ceilings and sash windows|Two double bedrooms with en-suite plus separate bathroom|Modern high-spec kitchen, wooden flooring and fireplace|Allocated off-street parking for two cars on gravel driveway|Communal rear gardens and large reception room|EPC rating D; likely needs energy-efficiency upgrades|Share of freehold with ~90 years remaining on lease|Solid brick walls assumed uninsulated — insulation work possible
This raised-ground, two-double-bedroom period conversion occupies an impressive Victorian house and blends original character with contemporary fittings. High ceilings, sash windows and an original fireplace give the large reception room genuine period charm, while a modern high-spec kitchen and en-suite shower deliver everyday convenience. The flat includes two bathrooms and allocated off-street parking for two cars via the gravel driveway.
Located within easy reach of Beckenham Junction and New Beckenham stations, the property offers straightforward commuter access to central London and benefits from communal rear gardens. The area is very affluent with excellent local amenities and several highly rated primary and secondary schools close by, making it well suited to small families or professionals.
Practical considerations are clear and factual: the lease is a 90-year share of freehold, which will likely require attention and potential cost when extending in future. The EPC rating is D and the building’s original solid-brick walls are assumed uninsulated, so buyers should budget for potential energy-efficiency improvements. Overall size is average at around 622 sq ft — comfortable but not generous for a two-bedroom flat.
2 bedroom property for sale in Manor Road, Beckenham, BR3 — £375,000 • 2 bed • 2 bath • 657 ft²
2 bedroom flat for sale in Manor Road, Beckenham, London, BR3 — £450,000 • 2 bed • 2 bath • 742 ft²
2 bedroom flat for sale in Manor Road, Beckenham, Kent, BR3 — £450,000 • 2 bed • 1 bath • 711 ft²
2 bedroom flat for sale in Copers Cope Road, Beckenham, BR3 — £425,000 • 2 bed • 2 bath • 868 ft²
2 bedroom flat for sale in Copers Cope Road, Beckenham, Kent, BR3 — £400,000 • 2 bed • 1 bath • 932 ft²
1 bedroom flat for sale in Manor Road, Beckenham, BR3 — £285,000 • 1 bed • 1 bath • 814 ft²






























