Chain-free three-bedroom semi needing renovation with large garden and garage, ideal for first-time buyers..
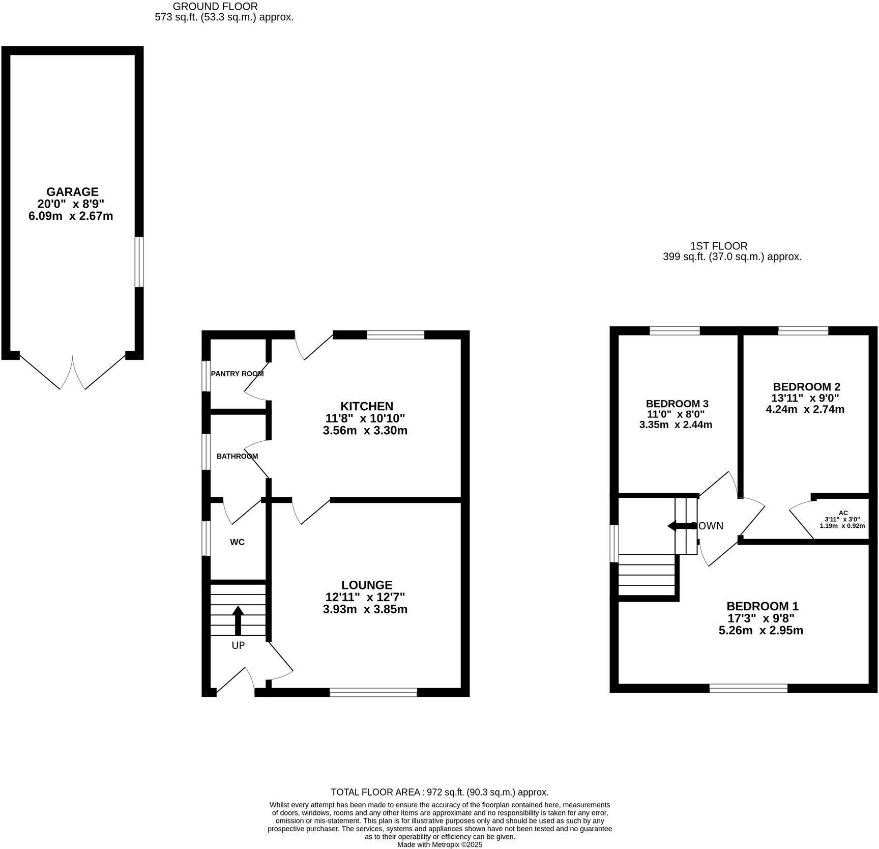
- Three bedrooms, one with its own WC and basin
- Cosy lounge with real open fire and back boiler heating
- Spacious kitchen with walk-in pantry and breakfast bar
- Double glazed throughout but requires general renovation
- Large overgrown garden with transformation potential
- 20-foot garage plus driveway parking for several cars
- No gas supply; solid-fuel heating and separate hot water boiler
- Medium flood risk; buyers should check insurance implications
A three-bedroom semi-detached 1930s home set in semi-rural Newhall, offered chain-free and with strong potential for first-time buyers or renovators. The cosy lounge has a real open fire and a solid-fuel back boiler that supplies heating throughout the house; a separate boiler provides hot water. The property is double glazed and laid out over two storeys with a ground-floor bathroom and one bedroom upstairs benefitting from its own WC and wash hand basin.
The kitchen is spacious, with wall and base units, a breakfast bar, plumbing for a washing machine and a useful walk-in pantry. Outside there's a large, currently overgrown garden that could be transformed, two useful outbuildings, a 20-foot garage and driveway parking for several cars. Broadband and mobile signals are strong and the home sits in an affluent, low-deprivation area close to countryside walks and local amenities.
Important considerations: the house needs renovation and updating throughout, there is no gas supply (solid-fuel back boiler provides heating), and the location carries a medium flood risk. The property is freehold, chain-free and offers an attractive plot size and garage space for someone prepared to take on a project in a quiet hamlet near Nantwich.
3 bedroom semi-detached house for sale in Whitchurch Road, Newhall, CW5 — £300,000 • 3 bed • 2 bath • 1152 ft²
3 bedroom semi-detached house for sale in Dig Lane, Nantwich, CW5 — £170,000 • 3 bed • 1 bath • 829 ft²
3 bedroom semi-detached house for sale in Heathside, Nantwich, CW5 — £125,000 • 3 bed • 1 bath • 1042 ft²
3 bedroom semi-detached house for sale in Millfields, Nantwich, CW5 — £350,000 • 3 bed • 2 bath • 1444 ft²
3 bedroom semi-detached house for sale in Sandy Lane, Red Bull, TF9 — £225,000 • 3 bed • 1 bath • 806 ft²
3 bedroom semi-detached house for sale in St Lawrence Court, Nantwich, CW5 — £310,000 • 3 bed • 1 bath • 877 ft²






































































