**Standout Features:**
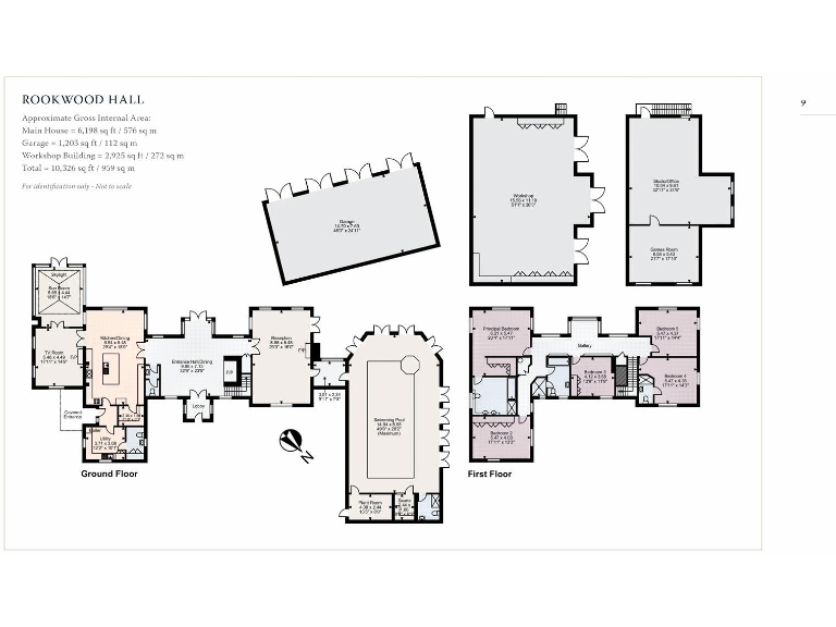
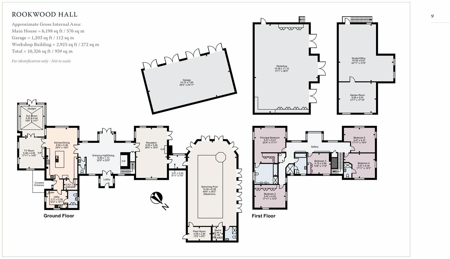
- **Spacious 5-bedroom Hall** with modern and historic charm.
- Substantial **annex** suitable for diverse uses (workshop, studio).
- Extensive **farm buildings** for machinery and grain storage.
- High-quality heated **classic car storage facility**.
- Over **264 acres** of productive farmland and scenic woodland.
- Recently added **mahogany Orangery** and an indoor/outdoor pool complex.
**Notable Concerns:**
- Requires attention to **EPC Rating (E)** for energy efficiency.
- **Planning occupancy restriction** applies, which may affect future uses.
- Broadband speeds are **very slow** and mobile signal is **average**.
Nestled among rolling farmland in Suffolk, Rookwood Hall presents a unique opportunity for buyers seeking an expansive retreat or a potential investment with commercial farming opportunities. This impressive estate combines the classic elegance of a Tudor Revival manor with modern amenities, offering spacious living areas flooded with natural light. The property features five bedrooms, two en-suites, a family bathroom, and potential for additional accommodation with attic conversion plans in place (pending necessary approvals).
The surrounding grounds are meticulously landscaped, while the adjacent woodland provides a splendid natural backdrop for leisure activities. A robust infrastructure supports a variety of uses, from farming to luxury storage, making it ideal for both families and investors with an eye on diversification. Seize the chance to own a piece of this exclusive, versatile estate, where privacy meets potential, and picture yourself living among the comfort and expansive beauty it provides. However, act swiftly—opportunities like this are rare in today’s market!
5 bedroom detached house for sale in Rowney Farm, Whepstead, Bury St. Edmunds, IP29 — £5,900,000 • 5 bed • 3 bath • 3370 ft²
5 bedroom detached house for sale in Daisy Green, Great Ashfield, Bury St. Edmunds, Suffolk, IP31 — £1,050,000 • 5 bed • 3 bath • 3135 ft²
7 bedroom detached house for sale in Bucklesham Hall, Bucklesham, IP10 — £3,500,000 • 7 bed • 3 bath • 5541 ft²
8 bedroom detached house for sale in The Green, Depden, Bury St. Edmunds, Suffolk, IP29 — £2,850,000 • 8 bed • 4 bath • 14929 ft²
5 bedroom detached house for sale in Lot 1 | Rowney Farm, Whepstead, Bury St. Edmunds, IP29 — £3,700,000 • 5 bed • 3 bath
5 bedroom detached house for sale in Cockfield, Bury St. Edmunds, Suffolk, IP30 — £1,450,000 • 5 bed • 5 bath • 5664 ft²






























































































































































