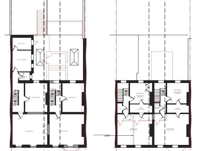
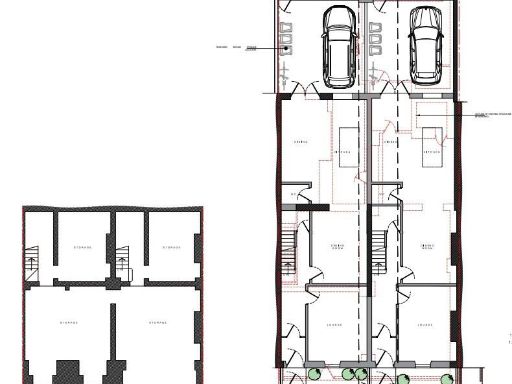
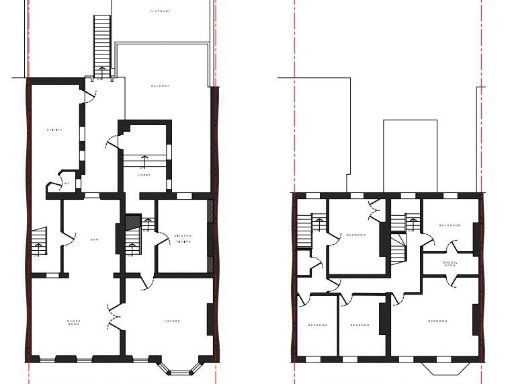
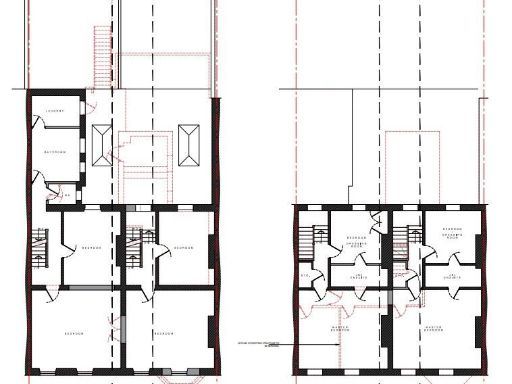
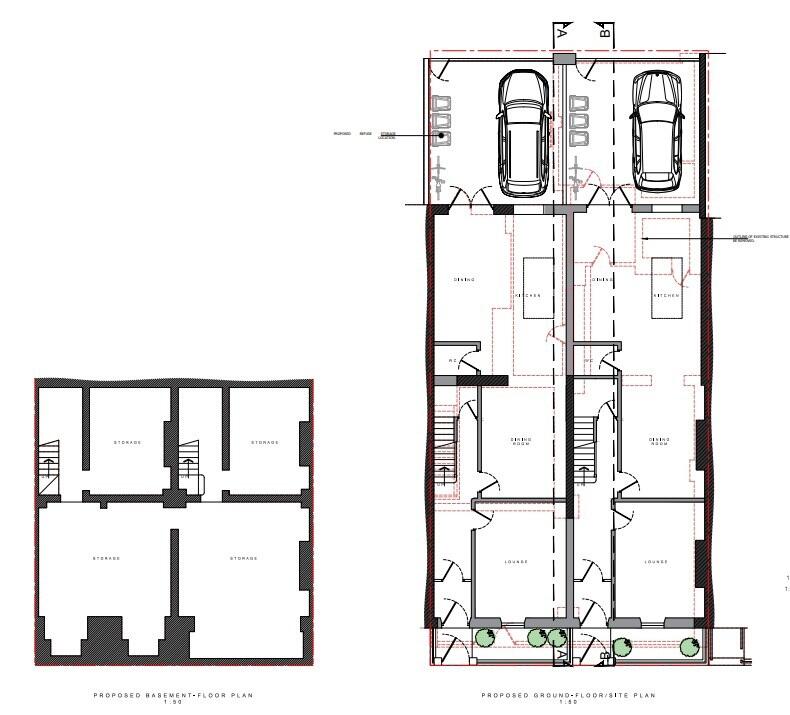
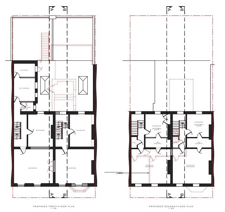
Shell-condition redevelopment with planning consent for two 4-bed homes and rear parking.
Approximately 5,360 sq ft (498 sq m) across basement, ground and two upper floors
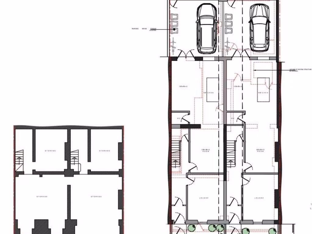
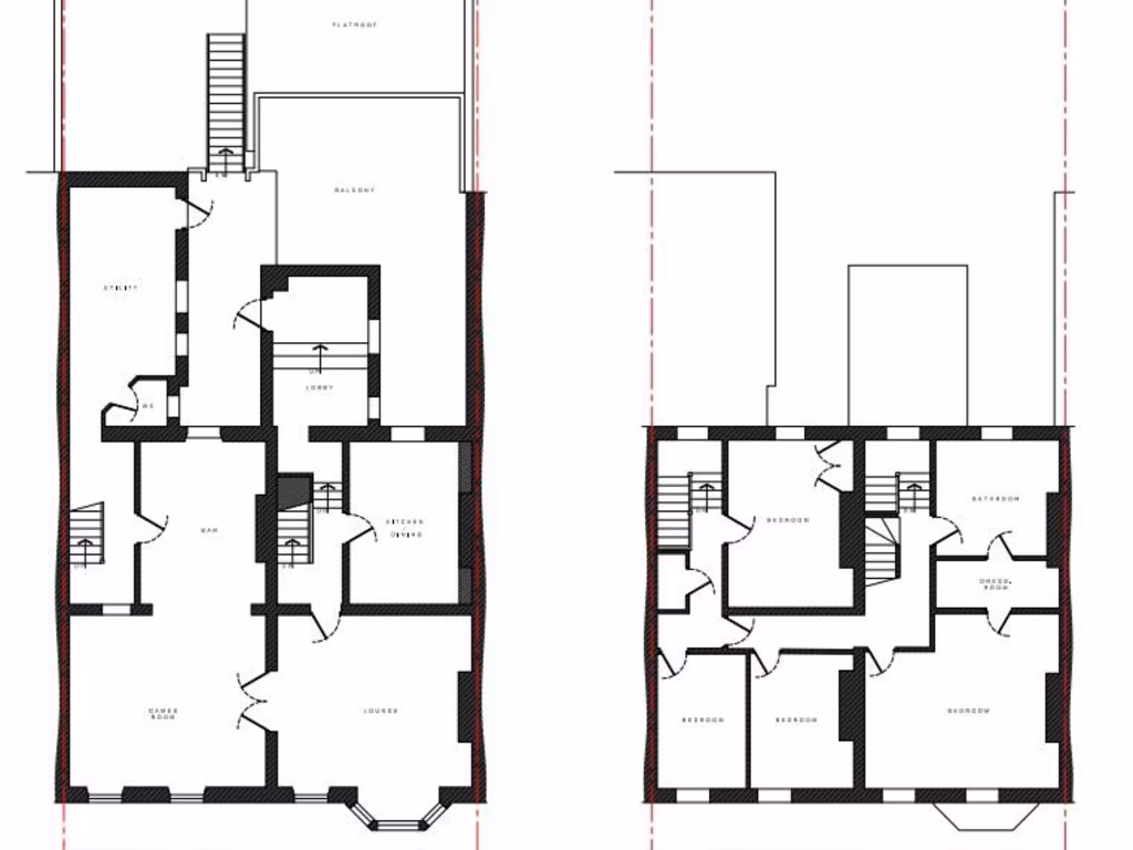
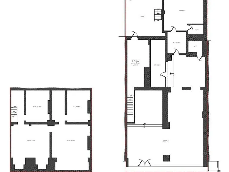
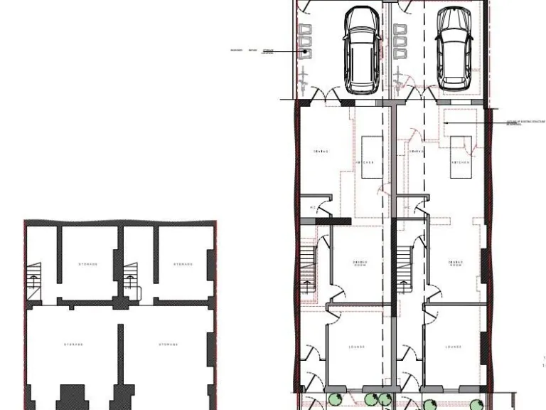
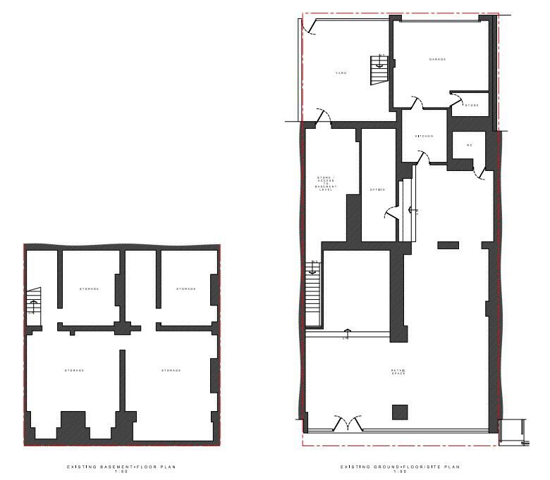
A substantial mid-terrace commercial building in central Fleetwood, offered in shell condition and ready for conversion. Extending to approximately 5,360 sq ft (498 sq m) GIA across basement, ground and two upper floors, the property benefits from planning consent (24/00288/FUL) to convert into two 4-bedroom townhouses, with secure rear parking and an estimated GDV of £600,000.
This is a clear redevelopment opportunity for an investor or developer able to manage a full refurbishment. The building retains high ceilings, large windows and period frontage that support attractive residential layouts. Practical positives include double glazing installed post-2002, mains gas heating with a boiler and radiators, EPC rating C, and a modest council tax band A.
Buyers should note material considerations: the property has been stripped to a shell and requires substantial renovation works; full surveys and checks are essential. The surrounding area is classified as very deprived with a high local crime rate—factors that will affect rental demand and resale values. Tenure details are mixed in title records (freehold and long leasehold identified) so bidders must review the legal pack carefully.
The lot will be sold at public online auction; interested parties should allow for additional buyer fees as set out in the legal documents. Confirm planning, access, services and costs before bidding. For a purchaser prepared to carry out the conversion, the site offers size, planning consent and secure parking in a town-centre location close to local amenities and transport links.
High street retail property for sale in Poulton Road, Fleetwood, FY7 — £57,500 • 1 bed • 1 bath • 1048 ft²
Property for sale in North Albert Street, Fleetwood, Lancashire, FY7 6AJ, FY7 — £250,000 • 1 bed • 1 bath • 1911 ft²
5 bedroom terraced house for sale in North Albert Street, Fleetwood, FY7 — £250,000 • 5 bed • 2 bath • 3817 ft²
2 bedroom terraced house for sale in 67 Blakiston Street, Fleetwood FY7 6LF, FY7 — £20,000 • 2 bed • 1 bath • 828 ft²
2 bedroom terraced house for sale in 15 Cross Street, Fleetwood FY7 6AU, FY7 — £20,000 • 2 bed • 1 bath • 638 ft²
High street retail property for sale in Lord Street, Fleetwood, Lancashire, FY7 — £130,000 • 1 bed • 1 bath • 1490 ft²






































































































































































