Renovated three-bed terrace moments from Stockton Heath village amenities.
Three double bedrooms including loft conversion
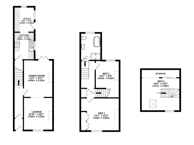
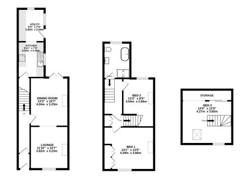
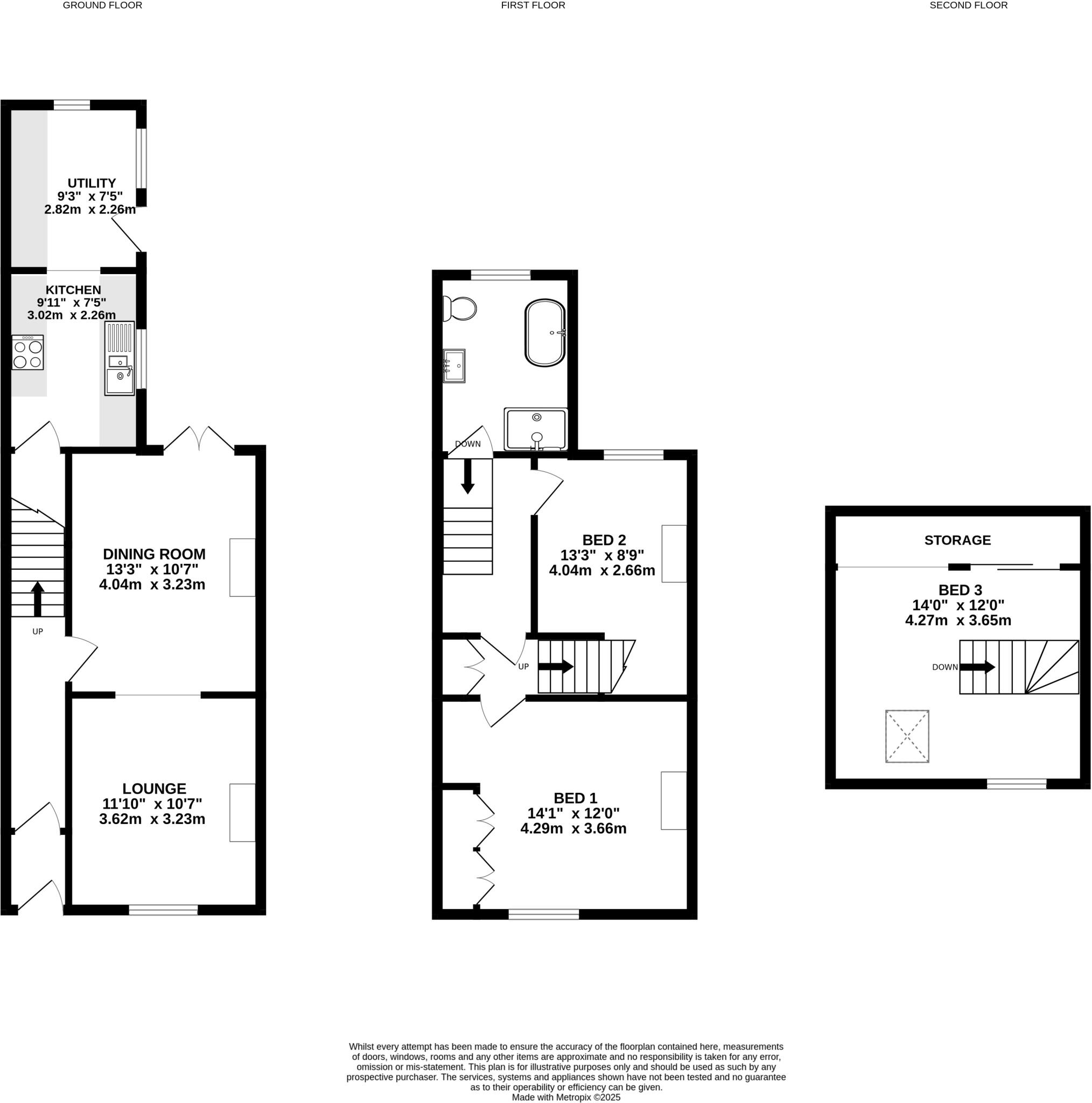
This renovated Victorian mid-terrace combines period charm with practical space in the heart of Stockton Heath village. The house has been extended into the loft to provide three genuine double bedrooms — a rare find in this style and location — and benefits from double glazing and gas central heating.
The ground floor offers a traditional layout with a lounge, dining area with French windows opening to an enclosed courtyard, and a Shaker-style kitchen with adjoining utility. A fixed staircase leads to a well-proportioned third bedroom in the loft, while two double bedrooms and a recently refurbished bathroom sit on the first floor.
Outside, the small enclosed courtyard provides low-maintenance outdoor space and a wide gateway allowing off-street parking for a small vehicle. The property sits close to Stockton Heath’s shops, cafés and amenities, with good local schools and regular buses to Warrington and nearby motorway connections.
Notable considerations: the plot is small, there’s only one bathroom for three bedrooms, and the original solid brick walls are assumed to lack cavity insulation. Parking is suitable for a small car only. Overall, this is a well-presented, energy-improved period home suited to first-time buyers, couples, or small families wanting village convenience.
2 bedroom terraced house for sale in Egerton Street, Stockton Heath, WA4 — £295,000 • 2 bed • 1 bath • 1038 ft²
3 bedroom terraced house for sale in Victoria Road, Stockton Heath, Warrington, WA4 — £425,000 • 3 bed • 1 bath • 1275 ft²
3 bedroom terraced house for sale in Roman Road, Stockton Heath, Warrington, WA4 6DX, WA4 — £279,950 • 3 bed • 1 bath • 1133 ft²
2 bedroom terraced house for sale in Orchard Street, Stockton Heath, Warrington, WA4 — £275,000 • 2 bed • 1 bath • 1259 ft²
2 bedroom terraced house for sale in Kimberley Drive, Stockton Heath, WA4 — £250,000 • 2 bed • 1 bath • 790 ft²
3 bedroom terraced house for sale in Fairfield Road, Stockton Heath, WA4 — £425,000 • 3 bed • 1 bath • 1231 ft²










































































