Lift-accessible modern two-bedroom flat with allocated parking, close to Summertown and Jericho.
No onward chain — ready to complete
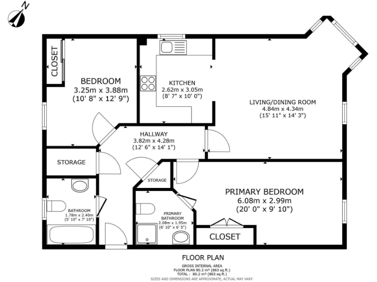
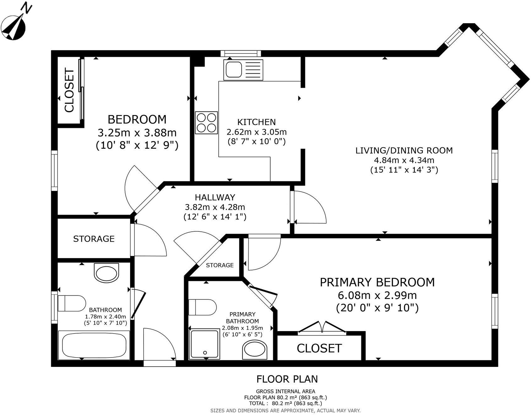
Located on the second floor of a modern lift-served development in Coxs Ground, this bright two-bedroom apartment makes a practical and well-located first home or buy-to-let. The light-filled reception room with a sunny bay window and adjoining fitted kitchen creates an open, sociable living space. The principal bedroom benefits from built-in storage and an en-suite shower room; a second double and family bathroom complete the accommodation.
Practical features include an allocated off-street parking space, gas central heating with boiler and radiators, double glazing and an EPC rating of B. The block was built around 1996–2002 and presents as a well-maintained, contemporary development within easy walking distance of Summertown, Jericho and the city centre, plus good transport links including regular buses and nearby rail connections.
For families, the property falls within the catchment for St Philip & James and Cherwell School; several highly regarded independent schools are also nearby. Green spaces such as Port Meadow and the Oxford Canal are on the doorstep, offering easy outdoor access.
Notable costs and constraints are material: the flat is leasehold with 99 years remaining, an annual service charge of about £2,861 and ground rent of approximately £500 per year. Council tax is above average and mobile and broadband speeds in the area are only average. The apartment is presented in modern condition but buyers should factor ongoing communal service costs into affordability calculations.
2 bedroom apartment for sale in Coxs Ground, Oxford, OX2 — £510,000 • 2 bed • 2 bath • 878 ft²
2 bedroom apartment for sale in Coxs Ground, Oxford, OX2 — £500,000 • 2 bed • 1 bath • 867 ft²
2 bedroom apartment for sale in Elizabeth Jennings Way, Oxford, OX2 — £450,000 • 2 bed • 2 bath • 851 ft²
2 bedroom apartment for sale in Lark Hill, Oxford, OX2 — £510,000 • 2 bed • 2 bath • 693 ft²
2 bedroom apartment for sale in Clear Water Place, Oxford, Oxfordshire, OX2 — £465,000 • 2 bed • 1 bath • 661 ft²
2 bedroom apartment for sale in Frenchay Road, Oxford, OX2 — £600,000 • 2 bed • 2 bath • 824 ft²














































