Bright, eco-conscious flat with large private terrace near Wimbledon transport links.
Open-plan kitchen with high-spec German and Italian appliances
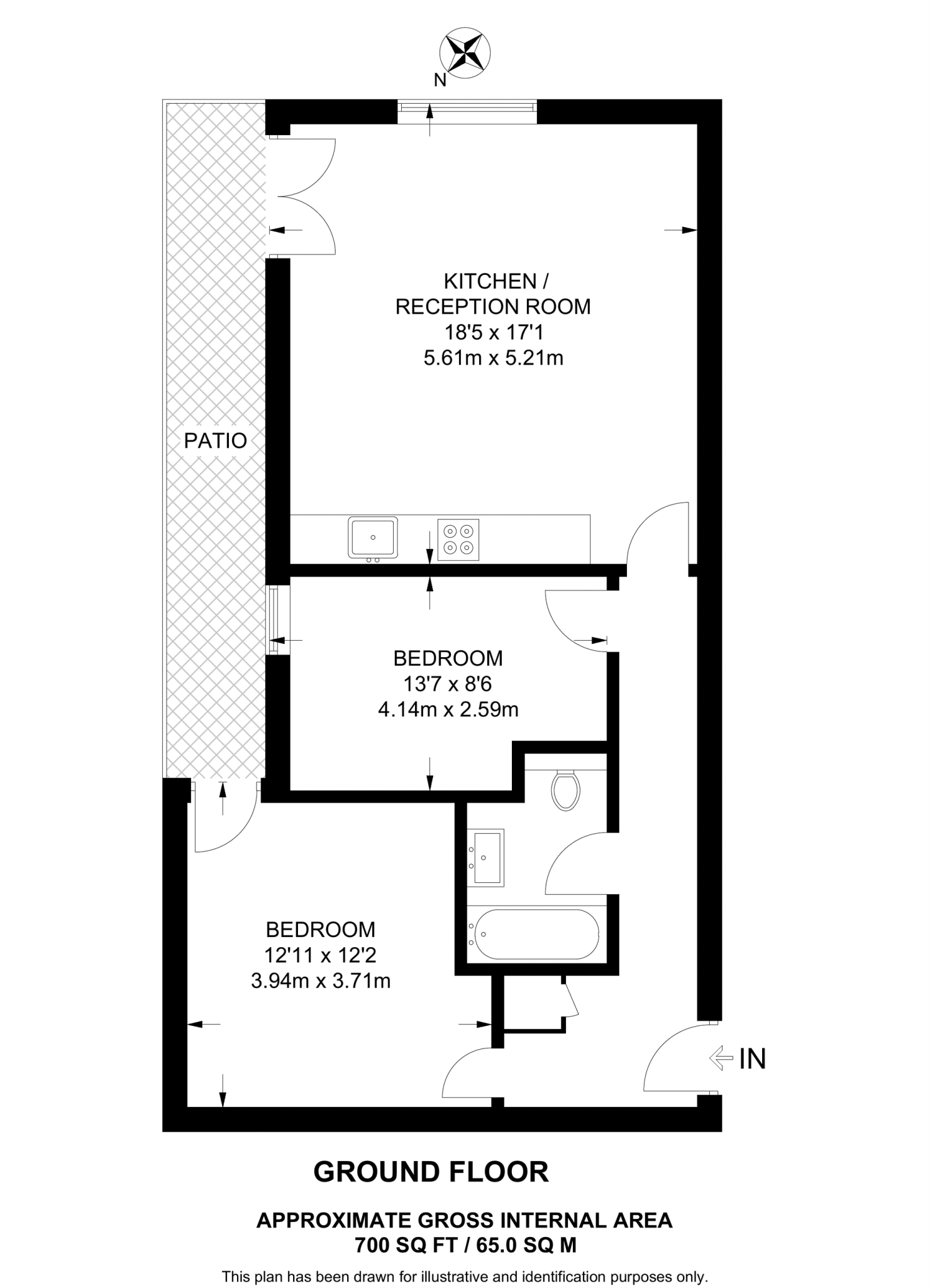
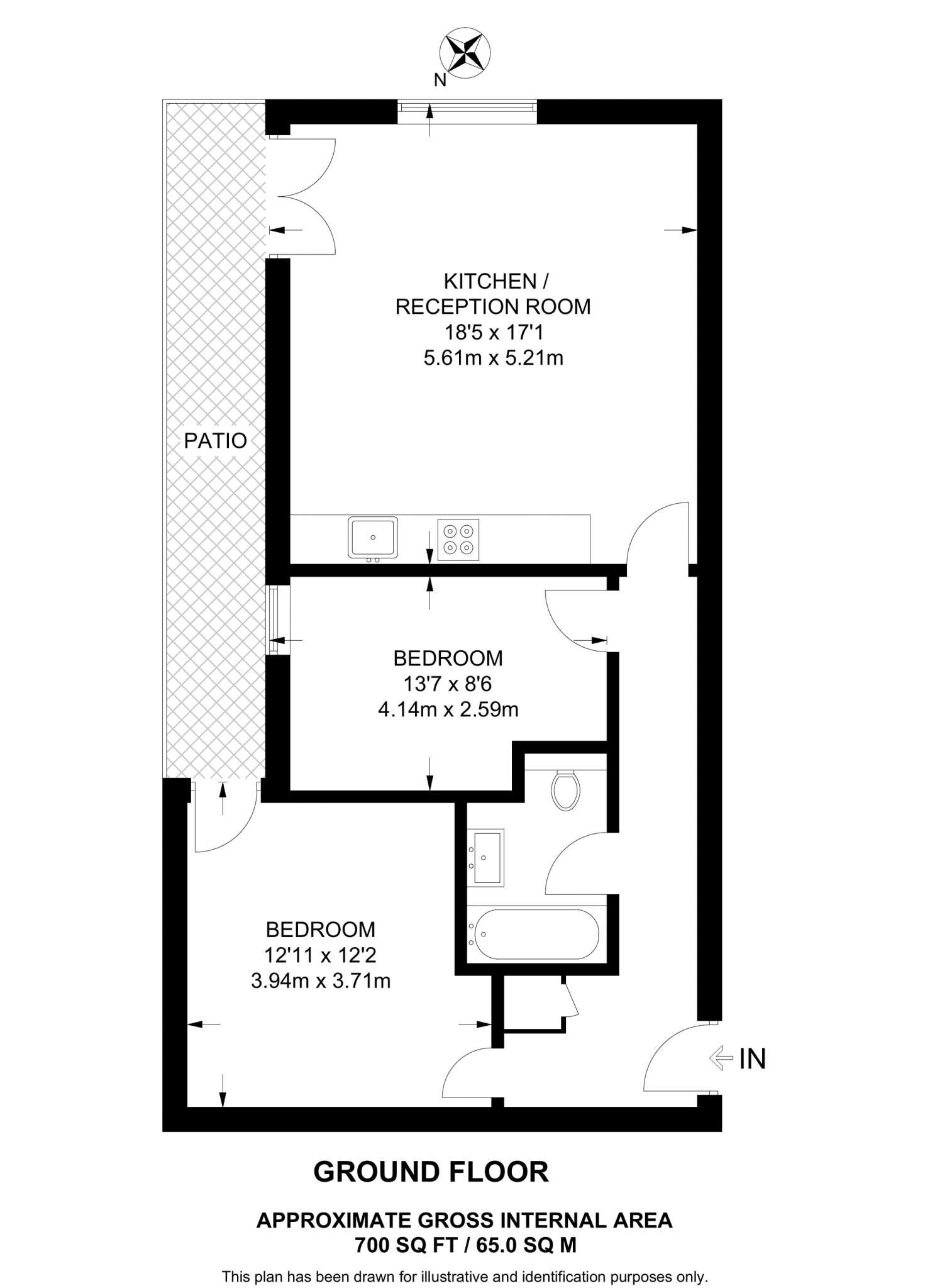
This bright, newly renovated two-bedroom apartment on the ground floor combines modern living with practical commuter convenience. At about 700 sq ft, the open-plan reception and kitchen benefit from high-spec German and Italian appliances and large windows that flood the space with light. The private terrace is unusually generous for a flat of this size and offers a quiet outdoor extension with pleasant views.
Built with eco-conscious principles, the property includes ample bike and parcel storage—ideal for sustainable, car-light commuting. Wimbledon’s shops, cafés and green spaces are within easy walking distance, and Wimbledon Station (National Rail plus District and Northern lines) is roughly a 10-minute walk, making daily travel straightforward.
The apartment is share-of-freehold and set in a contemporary block in a very low-crime, affluent neighbourhood. Practical points: the layout provides two comfortable bedrooms and one bathroom, and overall space is described as average-sized, so buyers wanting larger family accommodation may find it limiting. Ground-floor placement gives easy access but should be considered for privacy and security preferences.
Ideal for first-time buyers or city professionals seeking a low-maintenance, eco-conscious home with strong transport links and outdoor space. The property is newly renovated and ready to move into, with straightforward potential to personalise finishes over time.
2 bedroom flat for sale in Foundry House, Wimbledon, London, SW19 — £550,000 • 2 bed • 1 bath • 667 ft²
2 bedroom flat for sale in Foundry House, Wimbledon, London, SW19 — £575,000 • 2 bed • 1 bath • 702 ft²
2 bedroom flat for sale in Foundry House, Wimbledon, London, SW19 — £575,000 • 2 bed • 2 bath • 694 ft²
1 bedroom flat for sale in Foundry House, Wimbledon, London, SW19 — £450,000 • 1 bed • 1 bath • 529 ft²
2 bedroom flat for sale in Elm Grove, Wimbledon, SW19 — £575,000 • 2 bed • 2 bath • 657 ft²
2 bedroom apartment for sale in Palmerston Road, Wimbledon Road, SW19 — £600,000 • 2 bed • 1 bath • 634 ft²






































































