Five-bed Victorian terrace with income potential in central Dorchester.
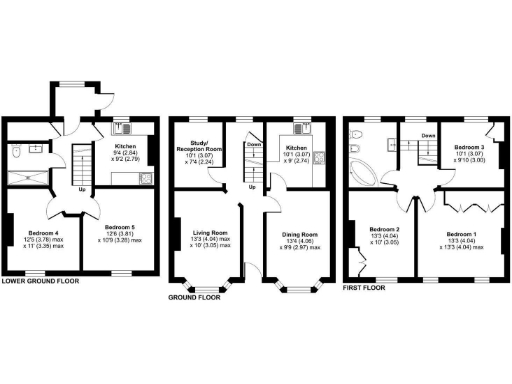
Five bedrooms across three floors, good multi-generational layout
A double-fronted Victorian end-of-terrace arranged over three floors, this property offers genuinely flexible living in the heart of Dorchester. With five bedrooms, two bathrooms and a lower-ground floor kitchenette/bedroom area, the house can support a large family, multi-generational households or provide rental/income potential from a self-contained lower level.
Characterful period features include bay windows, high ceilings and original fireplaces, paired with practical modern benefits such as superfast Openreach broadband and off-street parking for one vehicle. The easy-to-maintain rear garden is paved and shingled for low upkeep and the location is a short walk from Dorchester town centre, schools and both rail stations.
The seller is motivated, so there is room for an interested buyer to move quickly. The property is freehold, in a small overall plot and lies in a mixed urban neighbourhood with average local services and crime levels. Some cosmetic updating or reconfiguration could unlock further value — particularly if converting the lower-ground floor into a separate let — so buyers should plan for light refurbishment if they want to modernise layouts or finishes.
Practical details: Council Tax Band D, mains services connected and a Very Low flood risk. The home suits families seeking space close to town, investors after a rental opportunity, or buyers wanting period character with adaptable accommodation.
3 bedroom semi-detached house for sale in Alexandra Villas, Dorchester, DT1 — £450,000 • 3 bed • 2 bath • 1503 ft²
4 bedroom terraced house for sale in Great Western Road, Dorchester, DT1 , DT1 — £525,000 • 4 bed • 1 bath • 2425 ft²
3 bedroom terraced house for sale in Olga Road, Dorchester, DT1 2LX, DT1 — £330,000 • 3 bed • 1 bath • 1042 ft²
7 bedroom terraced house for sale in Dorchester, Dorset, DT1 — £950,000 • 7 bed • 6 bath • 4759 ft²
3 bedroom terraced house for sale in Alexandra Road, Dorchester, DT1 — £385,000 • 3 bed • 1 bath • 1458 ft²
3 bedroom terraced house for sale in Dukes Avenue, Dorchester, DT1 , DT1 — £260,000 • 3 bed • 1 bath • 963 ft²


































































































































