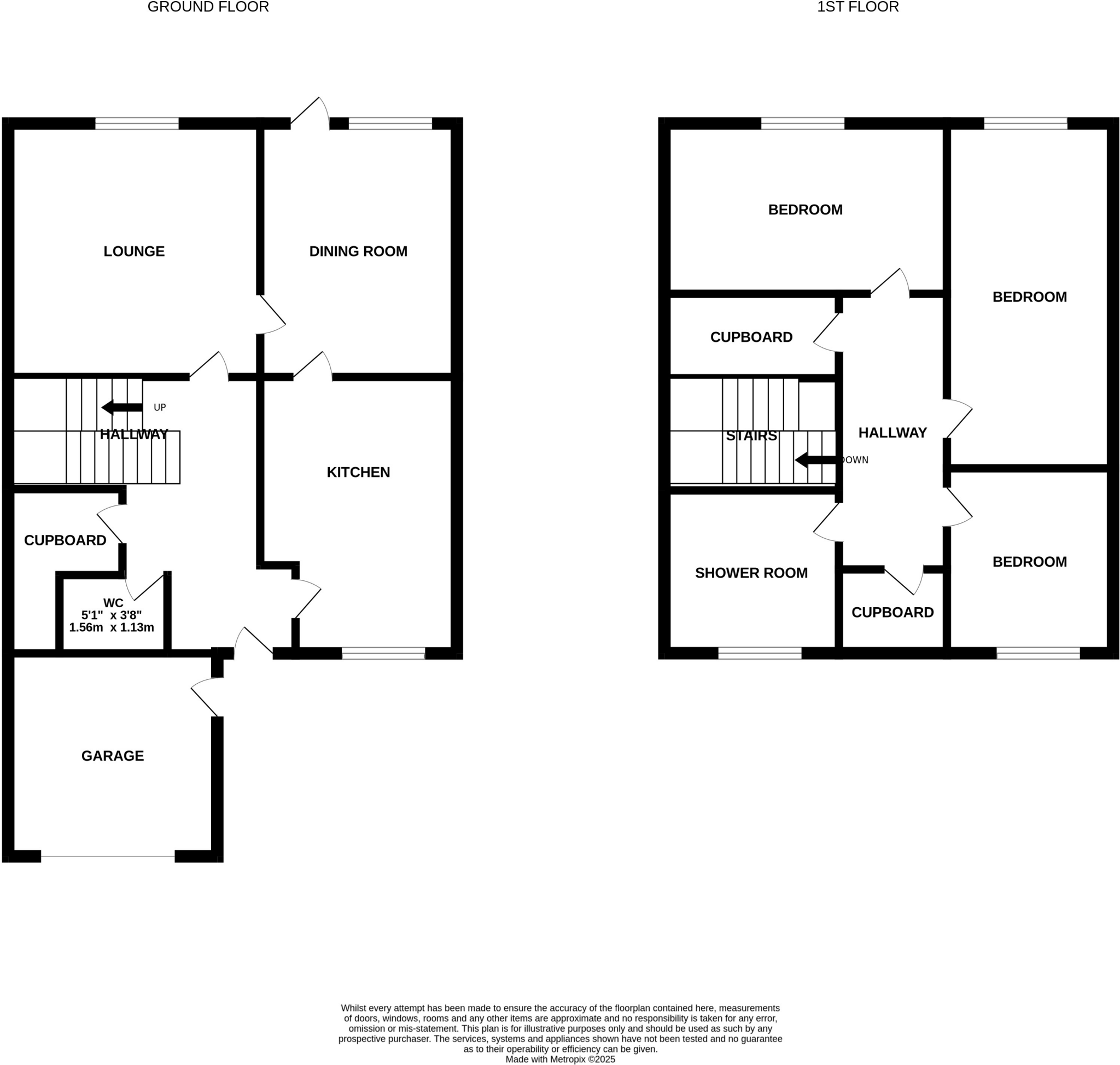
**Standout Features:**
- 3 spacious double bedrooms
- End of terrace house with freehold title
- Garage and long driveway
- Well-maintained, enclosed rear garden with mature plants
- Gas central heating and double glazing throughout
- Located in a quiet cul-de-sac, close to schools
**Concise Property Summary:**
Discover this inviting 3-bedroom end of terrace house located at 1 Windlestraw Court in the sought-after Bourtreehill area of Irvine. Priced affordably at £90,000, this family home offers a welcoming hallway leading to a large lounge, separate dining room, and a functional kitchen on the ground floor. Upstairs, the three generously-sized double bedrooms ensure ample space for family living, complemented by a bathroom featuring a convenient three-piece suite.
You'll appreciate the practicality of a long driveway and garage, offering secure parking and additional storage. The enclosed back garden provides a private oasis, ideal for outdoor relaxation or entertaining. Though the property exhibits signs of wear, particularly in the living room with its dated carpet, it presents an excellent opportunity for renovation and personalization according to your tastes.
Situated in a quiet cul-de-sac and framed by local amenities—such as pharmacies, sports facilities, and schools—this home promises both convenience and comfort. With its competitive price and desirable features, viewings are highly recommended, especially given the current market demand. Don’t miss out on the potential this home holds for you and your family!
3 bedroom terraced house for sale in Moorfoot Way, Irvine, Ayrshire, KA11 — £94,500 • 3 bed • 1 bath
3 bedroom end of terrace house for sale in 1 Millfore Court, Bourtreehill, North Irvine, KA11 1LT, KA11 — £110,000 • 3 bed • 1 bath • 947 ft²
2 bedroom terraced house for sale in Millfore Court, Bourtreehill North, Irvine, KA11 — £105,000 • 2 bed • 1 bath • 505 ft²
2 bedroom semi-detached house for sale in 30 Birkscairn Way, Bourtreehill South, Irvine, KA11 1EB, KA11 — £95,000 • 2 bed • 1 bath • 634 ft²
2 bedroom terraced house for sale in Cairnsmore Way, Bourtreehill South, KA11 — £90,000 • 2 bed • 1 bath • 592 ft²
3 bedroom semi-detached house for sale in Thornhouse Avenue, Irvine, KA12 — £145,000 • 3 bed • 1 bath • 868 ft²






































































































