Large adaptable residence with gardens and garage, ideal for growing families.
Six double bedrooms and four reception rooms, highly versatile layout
Approximately 3,600 sq ft on an approx. 0.21 acre plot with terraces
Double garage plus extensive driveway parking for multiple cars
Principal dining kitchen plus second kitchen and utility room
Master bedroom with dressing room and bath/shower; two further en-suites
Built c.1976–82; double glazing installed before 2002 (may need replacing)
Heating: portable electric heaters in most rooms; wood-logs listed as main fuel
Partial cavity wall insulation assumed; likely need for energy-efficiency upgrades
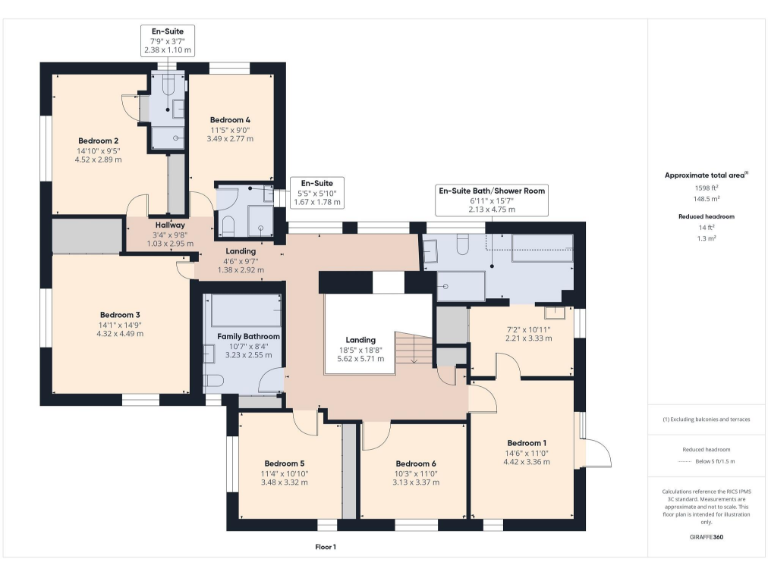
This substantial six double-bedroom detached home in Lisvane offers generous, flexible family accommodation across approximately 3,600 sq ft. Ground floor living is versatile with a large principal reception room, formal dining room, family room and an additional formal sitting room, plus a principal dining kitchen and separate second kitchen — ideal for multi-generational households or regular entertaining. Outside, the property sits on about a 0.21 acre plot with terraces, landscaped gardens, extensive driveway parking and a double garage.
The principal suite includes a dressing room and bath/shower room, while bedrooms 2 and 4 each have en-suite shower rooms; three further double bedrooms provide plenty of space for children, guests or home offices. Practical ground-floor facilities include a utility room and a shower/WC, supporting busy family life. The setting in Lisvane places the house in a comfortable suburban, low-crime area with good connectivity and local amenities.
Buyers should note several material issues: the property was constructed in the late 1970s/early 1980s, double glazing was installed before 2002, cavity walls are only partially insulated (assumed) and main heating appears to rely on portable electric heaters in many rooms with wood logs listed as the main fuel — all indicating potential immediate and ongoing energy-efficiency and heating upgrades. Council tax is described as very expensive. These factors mean some investment in modern heating, insulation and glazing may be required to improve comfort and running costs.
In short, this is a large, well-laid-out family home with strong entertaining and parking credentials and clear potential for modernisation. It will suit buyers seeking space and configurational flexibility who are prepared to update heating and insulation to contemporary standards.
4 bedroom detached house for sale in The Paddock, Lisvane, Cardiff, CF14 — £900,000 • 4 bed • 2 bath • 2376 ft²
4 bedroom detached house for sale in Lisvane Road, Lisvane, Cardiff(City), CF14 — £875,000 • 4 bed • 2 bath • 2722 ft²
4 bedroom detached house for sale in Blacksmiths, Lisvane Road, Cardiff, CF140SG, CF14 — £799,995 • 4 bed • 1 bath • 3399 ft²
5 bedroom detached house for sale in The Maples, Lisvane Road, Lisvane, Cardiff, CF14 — £2,200,000 • 5 bed • 4 bath • 4481 ft²
4 bedroom detached house for sale in Mill Road, Lisvane, Cardiff, CF14 — £925,000 • 4 bed • 2 bath • 2679 ft²
5 bedroom detached house for sale in Llwyn Y Pia Road, Lisvane, Cardiff. CF14 — £775,000 • 5 bed • 3 bath • 2100 ft²










































































































































































