Private entrance, generous outdoor space and rapid Central London access.
Private ground-floor entrance and large patioed garden
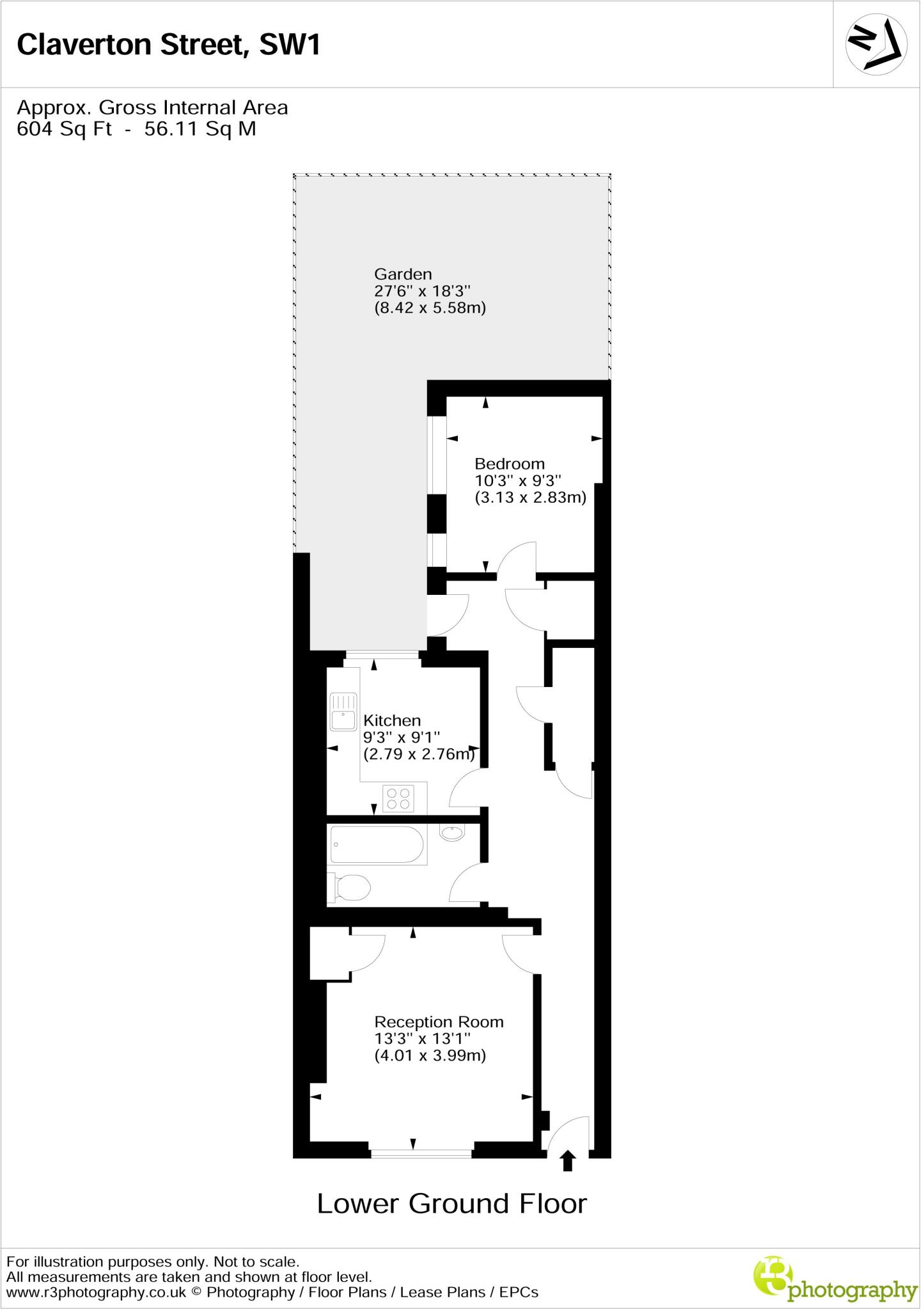
A newly renovated one-bedroom apartment offering a rare private entrance and a large, easy-to-maintain garden in SW1V. At about 604 sq ft the layout is traditional with a bright hallway that doubles as dining space, a well-proportioned living room with built-in storage, and a modern kitchen overlooking the patio garden.
Practical advantages include a very long lease (997 years) with a share of freehold, mains gas boiler and rads, excellent mobile signal and fast broadband — useful for home working. The property is a short walk from Pimlico station and local amenities, placing Central London on your doorstep.
Notable issues are factual: the immediate area records above-average crime and is flagged as relatively deprived; the building is solid-brick and likely lacks wall insulation. Council Tax sits in Band D. These factors should be weighed against the generous outside space and long lease when considering resale or let potential.
This apartment will suit a first-time buyer seeking private outdoor space in a central postcode and a move-in-ready interior, or an investor after a long-lease garden flat with strong transport links. Its mix of period structure and recent renovations gives immediate comfort with further scope to improve thermal efficiency if desired.
 2 bedroom flat for sale in Belgrave Road, LONDON, SW1V — £1,150,000 • 2 bed • 2 bath • 1115 ft²
 2 bedroom flat for sale in Belgrave Road, LONDON, SW1V — £1,150,000 • 2 bed • 2 bath • 1115 ft² 1 bedroom flat for sale in Winchester Street, Pimlico, SW1V — £645,000 • 1 bed • 1 bath • 650 ft²
 1 bedroom flat for sale in Winchester Street, Pimlico, SW1V — £645,000 • 1 bed • 1 bath • 650 ft² 1 bedroom flat for sale in St Georges Drive, Pimlico, SW1V — £600,000 • 1 bed • 1 bath • 670 ft²
 1 bedroom flat for sale in St Georges Drive, Pimlico, SW1V — £600,000 • 1 bed • 1 bath • 670 ft² 1 bedroom flat for sale in Alderney Street, 
Pimlico, SW1V — £500,000 • 1 bed • 1 bath • 471 ft²
 1 bedroom flat for sale in Alderney Street, 
Pimlico, SW1V — £500,000 • 1 bed • 1 bath • 471 ft² 1 bedroom flat for sale in Alderney Street, LONDON, SW1V — £500,000 • 1 bed • 1 bath • 524 ft²
 1 bedroom flat for sale in Alderney Street, LONDON, SW1V — £500,000 • 1 bed • 1 bath • 524 ft² 2 bedroom flat for sale in St. Georges Drive, Pimlico, SW1V — £850,000 • 2 bed • 2 bath • 902 ft²
 2 bedroom flat for sale in St. Georges Drive, Pimlico, SW1V — £850,000 • 2 bed • 2 bath • 902 ft²


































