Flexible coastal home with income potential and large private plot close to the Heritage Coast.
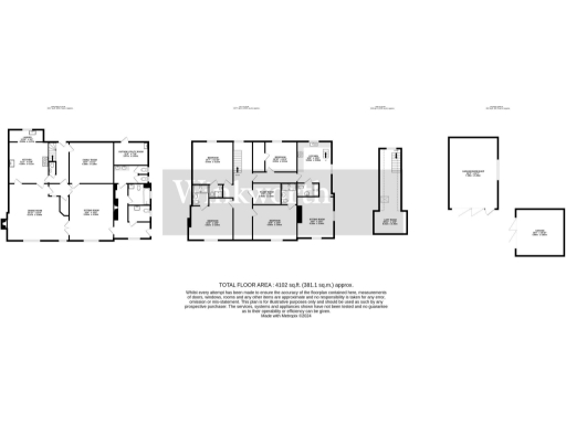
- Approximately 3,500 sq ft of flexible living space
- Former pub/guest house with professional-style kitchen
- Owner’s apartment plus multiple en-suite guest rooms
- Large private garden with mature trees and hedging
- Two sizable garages/workshops and ample parking
- Timber-frame property (pre-1900); likely no wall insulation
- Double glazing fitted since 2002; mains gas central heating
- Slow broadband and average mobile signal; modernisation needed
A substantial detached character home offering about 3,500 sq ft across a former village inn and guest house. The flexible layout includes three generous reception rooms, four/five bedrooms plus a long loft room, and an owner’s apartment — well suited to a large family or someone seeking a coastal guest-house income.
Set in the quiet hamlet of Holton close to Halesworth and the Heritage Coast, the plot is generous with mature hedging, specimen trees, lawns and two large garage/workshops. The ground floor flow and a professional-style stainless steel kitchen suit catering or hosting, while first-floor guest rooms each have en suites and exposed timbers that add period character.
Important considerations: the building dates from before 1900 with timber-frame construction and is assumed to have no wall insulation, so energy performance and retrofit work are likely. Double glazing has been fitted post-2002 and heating is mains-gas boiler with radiators, but other services and systems have not been tested. Broadband speeds are slow and local mobile signal is average.
For buyers seeking coastal lifestyle and scale, this property offers immediate family living plus clear potential for running guest accommodation or converting spaces further. Budget for modernisation, insulation and connectivity improvements to make the most of the home’s size and location.
6 bedroom cottage for sale in Holton, Halesworth, IP19 — £850,000 • 6 bed • 3 bath • 3522 ft²
3 bedroom detached house for sale in Mettingham, Bungay, NR35 — £495,000 • 3 bed • 1 bath • 2954 ft²
3 bedroom detached bungalow for sale in The Street, Holton, IP19 — £400,000 • 3 bed • 2 bath • 992 ft²
3 bedroom semi-detached house for sale in Hog Lane, Blackheath, Wenhaston, Halesworth, IP19 — £300,000 • 3 bed • 2 bath • 1198 ft²
4 bedroom semi-detached house for sale in Rendham, IP17 — £540,000 • 4 bed • 2 bath • 3261 ft²
6 bedroom detached house for sale in Halesworth, Suffolk, IP19 — £1,250,000 • 6 bed • 4 bath • 2583 ft²














































































































