NG1 5FW - 2 bedroom flat for sale in Wollaton Street, Nottingham, Not…

View on Property Piper

2 bedroom flat for sale in Wollaton Street, Nottingham, Nottinghamshire, NG1

Summary - Flat 6, The Axis, Wollaton Street NG1 5FW

2 bed 2 bath Flat

**Standout Features:**
- Modern duplex apartment on the fifth and sixth floors
- Two spacious double bedrooms, including a master with en-suite
- Open-plan living/kitchen area with integrated appliances
- Private balcony with fantastic city views
- Gated parking space available
- Cash purchase only

**Concise Summary:**
Discover urban living at its finest with this stunning two-bedroom, two-bathroom duplex apartment in the heart of the city center. Spanning the fifth and sixth floors, this bright and spacious residence boasts a modern open-plan kitchen and living area, seamlessly connected to a private balcony that offers breathtaking views of the city skyline. The master bedroom features an en-suite, while both bedrooms provide ample storage for your convenience. With a service charge of £3233 and a ground rent of £200, the property could serve as an ideal investment for cash buyers looking for a well-maintained home in a vibrant, multicultural neighborhood. Just minutes away from local amenities and top-rated independent schools, this property blends comfort, style, and potential—perfect for first-time buyers or investors alike. However, please note that the property is cash-only, and its current broadband speeds may be slower than average. Don’t miss out on this exclusive opportunity!

Property Details

Brochure Descriptions

Image Descriptions

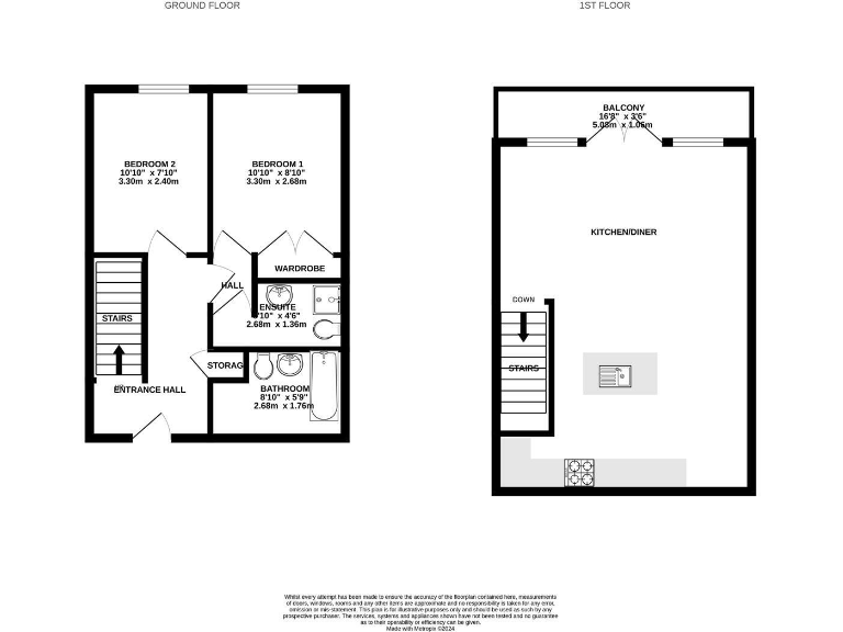
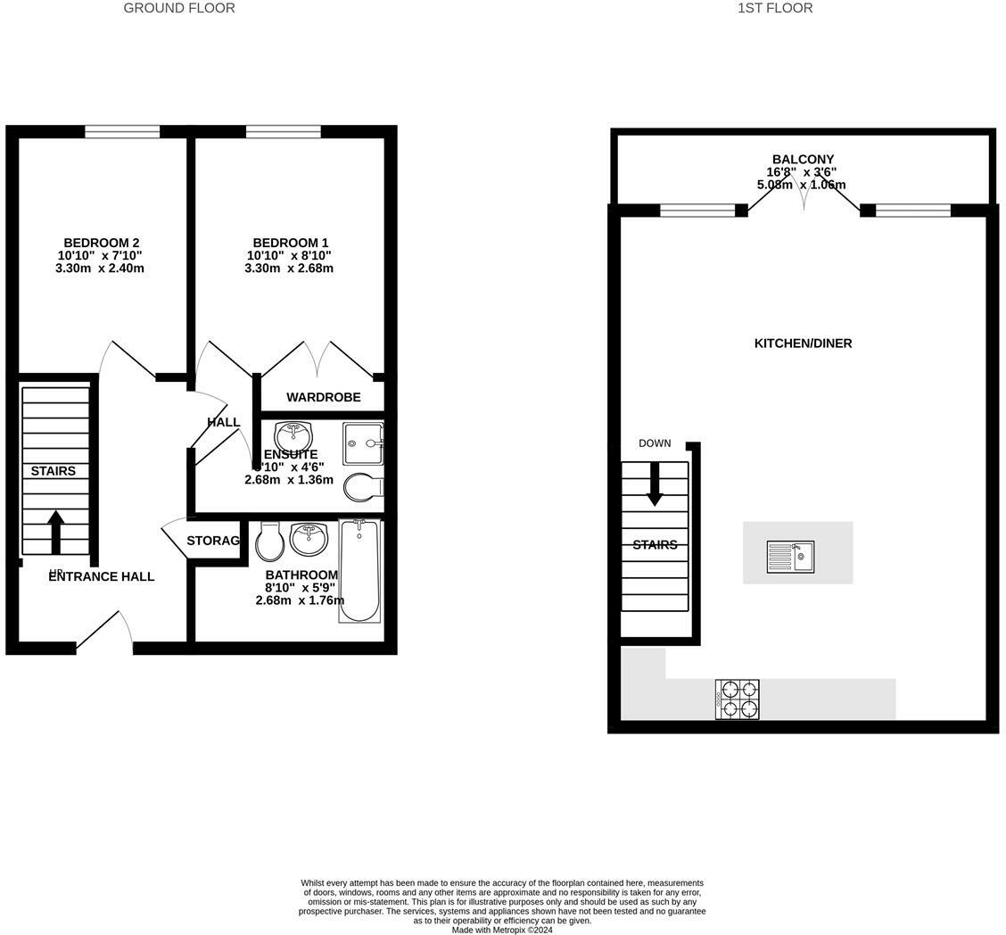
Floorplan Description

Rooms

Textual Property Features

Detected Visual Features

EPC Details

Nearby Schools

Nearest Bars And Restaurants

,,,,}

Nearest General Shops

,,}

Nearest Grocery shops

,,}

Nearest Supermarkets

,,}

Nearest Religious buildings

,,}

Nearest Medical buildings

,,,}

Nearest Airports

}

Nearest Leisure Facilities

,,,,}

Nearest Tourist attractions

,,}

Nearest Train stations

,,,,}

Nearest Bus stations and stops

,,,,}

Nearest Hotels

,,}

Tags

Local Market Stats

AirBnB Data

Similar Properties

Meta

High Res Images

Compatible Images

Low res Images

Thumbnails

Raw Images

High Res Floorplan Images

Compatible Floorplan Images

Low res Floorplan Images

FloorplanImages Thumbnail

Raw Floorplan Images