Spacious family property with garage and garden, ideal for modernisation.
Detached Victorian home over 2,100 sqft on large plot
Four double bedrooms but only one family bathroom
Detached double garage/workshop with first-floor mezzanine potential
Fitted solar panels reduce energy costs
Traditional kitchen dated and in need of updating
Solid brick walls with no known insulation (assumed)
Double glazing present; install dates unspecified
Council Tax Band F noted as relatively expensive
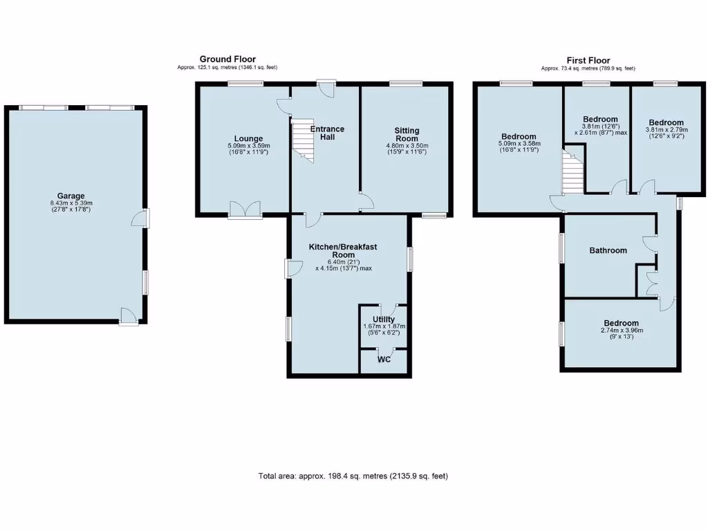
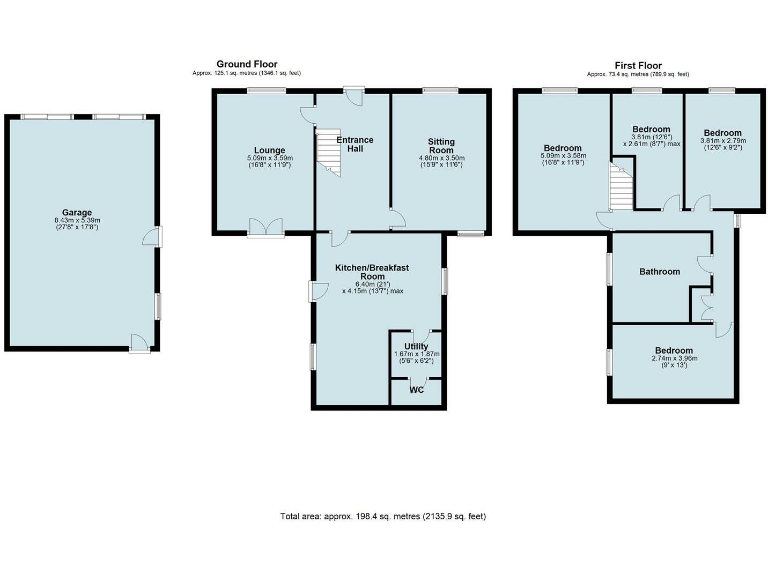
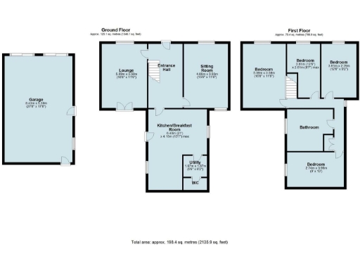
This substantial Victorian detached house occupies a large plot in a sought-after village setting, offering more than 2,100 sqft of flexible family accommodation. Period features such as tall sash-style windows, high ceilings and original fireplaces give character throughout, while fitted solar panels help reduce running costs.
The ground floor layout includes two reception rooms, a generous entrance hall and a kitchen/breakfast room opening to the rear garden. Upstairs are four good-sized bedrooms and a single family bathroom — practical for families but with limited bathroom provision for four bedrooms. A detached double garage and workshop with a first-floor mezzanine provide significant storage, hobby or home-office potential.
Practical drawbacks are clear and factual: the kitchen has a traditional, dated finish and would benefit from updating; the property is of solid brick construction with no known wall insulation (assumed); and double-glazing install dates are unspecified. Council Tax Band F makes the property relatively expensive to tax. Services and appliances have not been tested and buyers should verify utilities and permissions independently.
Key selling points include the generous plot and lawned rear garden, driveway parking and excellent village location with good road links to the A42 and local schools. Being chain free, the property is suited to buyers wanting immediate progression and to those prepared to modernise to their own taste.
4 bedroom detached house for sale in Loughborough Road, Coleorton, LE67 — £499,500 • 4 bed • 1 bath • 1539 ft²
3 bedroom semi-detached house for sale in London Road, Coalville, Leicestershire, LE67 — £367,500 • 3 bed • 2 bath • 1744 ft²
4 bedroom detached house for sale in Beaumont Green, Coleorton, Coalville, LE67 — £600,000 • 4 bed • 2 bath • 1669 ft²
5 bedroom semi-detached house for sale in The Moorlands, Coleorton, Coalville, LE67 — £325,000 • 5 bed • 2 bath • 1614 ft²
2 bedroom detached bungalow for sale in Stoney Lane, Coleorton, LE67 — £550,000 • 2 bed • 2 bath • 1451 ft²
4 bedroom detached house for sale in Romans Crescent, Coalville, Leicestershire, LE67 — £365,000 • 4 bed • 2 bath • 1256 ft²






















































































































