Quirky central home with garden and cellar, ideal for character-focused buyers.
Grade II listed with abundant period features and working fireplaces
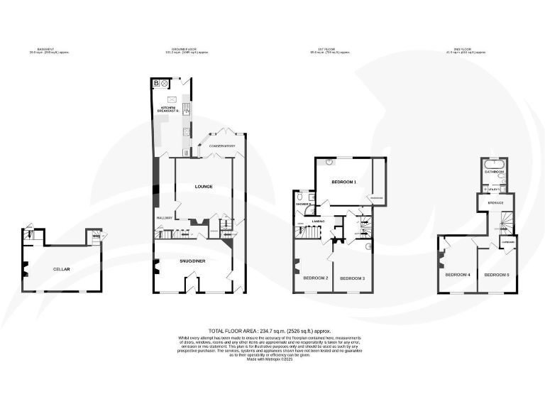
Five double bedrooms over four floors, flexible accommodation
Fully tanked, centrally heated cellar — adaptable storage or extra space
Private rear garden with lawn and patio; town-centre location
Two bathrooms (modern shower room and separate family bathroom)
Listed status restricts changes; listed-building consent likely required
High local crime rate and expensive council tax to consider
No flood risk; excellent mobile signal and fast broadband
A rare Grade II listed five-bedroom terraced house on Abbey Street, offering substantial, characterful accommodation across four floors. Original features such as sash windows, timber framing and working fireplaces give the home strong period appeal, while generous room sizes and a fully tanked, heated cellar add practical flexibility.
The layout includes two reception rooms, a conservatory, a kitchen/breakfast room with garden access, and five double bedrooms served by a modern shower room and a full bathroom. The private rear garden is a quiet lawned area with patio, a valuable outdoor space in the town centre. Excellent mobile signal and fast broadband support home working or media use.
Buyers should note the property’s listed status: repairs, alterations and some modernisations will require listed-building consent and may be more costly or limited. There is no flooding risk, but local crime statistics are high and council tax is described as expensive. Overall the house is best suited to buyers who value historic character and are prepared for sensitive maintenance or renovation.
This home will appeal to families and professionals who want central Faversham living within walking distance of shops, markets, cafes and outstanding primary schooling. It also presents potential as a multi-bedroom family home or a unique renovation project for someone comfortable working within a listed-building framework.
4 bedroom terraced house for sale in Abbey Street, Faversham, ME13 — £545,000 • 4 bed • 2 bath • 1260 ft²
5 bedroom terraced house for sale in West Street, Faversham, Kent, ME13 — £600,000 • 5 bed • 2 bath • 2078 ft²
3 bedroom apartment for sale in Leslie Smith Drive, Faversham, ME13 — £750,000 • 3 bed • 3 bath • 26232 ft²
4 bedroom end of terrace house for sale in West Street, Faversham, Kent, ME13 — £395,000 • 4 bed • 3 bath • 1643 ft²
6 bedroom detached house for sale in Crown & Anchor, 41 The Mall, Faversham, ME13 — £1,100,000 • 6 bed • 3 bath • 3000 ft²
2 bedroom end of terrace house for sale in Chapel Street, Faversham, ME13 — £299,000 • 2 bed • 1 bath • 629 ft²






























































































































































