Long lease two-bedroom apartment with garage, close to Uxbridge station and shops..
NO CHAIN — ready for a quick sale
Share of freehold with a 999-year lease
Garage plus parking space directly to the rear
Walking distance to Uxbridge town centre and Tube
Service charge £600 pa; total reported charges £1,200 pa
Ground rent shown as £600 pa (comparatively high)
Property generally in good condition; some living-room updating needed
Local area: excellent broadband and transport, but higher crime rates
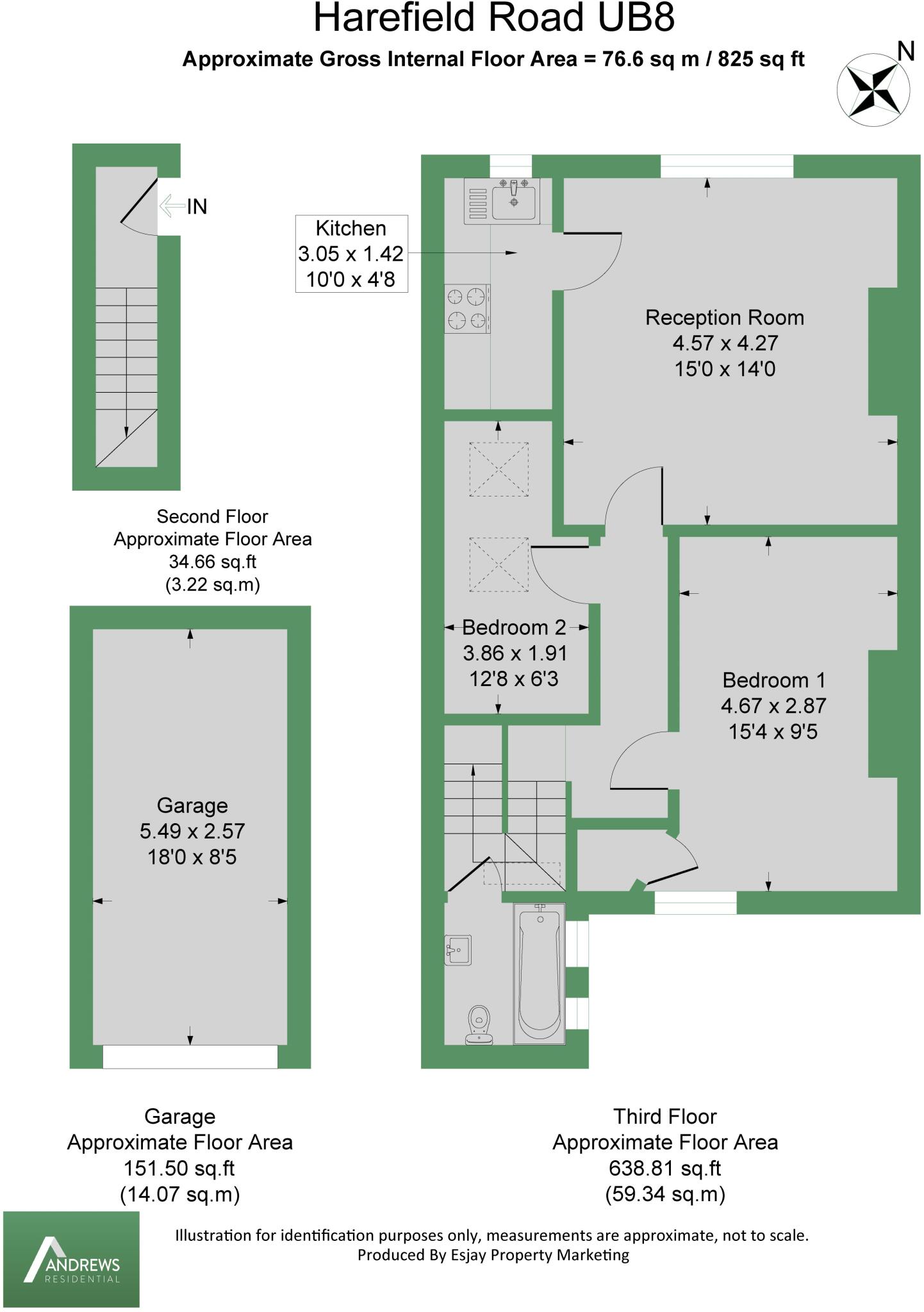
This bright two-bedroom apartment on Harefield Road offers a practical, chain-free entry into Uxbridge living. Set within a Victorian-style building and extending to around 825 sq ft, the apartment has a long 999-year lease and a share of freehold—strong tenure advantages for first-time buyers and owner-occupiers.
The layout includes an entrance hall, fitted kitchen, bathroom, lounge and two good-sized bedrooms. Benefits include double glazing, gas central heating, an allocated garage with parking in front, and access to a communal garden. The property is walking distance to Uxbridge town centre, shops and the Underground (Metropolitan/Piccadilly lines), plus local schools rated Good to Outstanding.
Costs are clear and manageable: service charges are reported at £600 pa (below average) but note the stated ground rent figure of £600 pa, which is comparatively high and adds to annual charges (total reported costs £1,200 pa). The apartment appears in generally good condition, though some living-room décor and fittings look dated and could benefit from cosmetic updating.
Location strengths are counterbalanced by local context: the area records higher crime levels than average, and the setting is an urban, culturally mixed inner-city environment. Broadband and mobile signals are reported excellent, and there is no flood risk. Buyers should verify service charge and ground rent details with their solicitor before purchase.
2 bedroom apartment for sale in Harefield Road, Uxbridge, UB8 — £340,000 • 2 bed • 1 bath • 692 ft²
2 bedroom apartment for sale in Harefield Road, Uxbridge, UB8 — £425,000 • 2 bed • 1 bath • 794 ft²
2 bedroom apartment for sale in Whitehall Close, Uxbridge, UB8 — £315,000 • 2 bed • 1 bath • 488 ft²
1 bedroom apartment for sale in Fairfield Road, North Uxbridge, UB8 — £265,000 • 1 bed • 1 bath • 611 ft²
2 bedroom apartment for sale in Fairfield Road, UB8 1AZ, UB8 — £359,950 • 2 bed • 2 bath • 721 ft²
2 bedroom flat for sale in Fairfield Road, Uxbridge, UB8 — £300,000 • 2 bed • 1 bath • 646 ft²


















































