Charming period property with mature garden and flexible living throughout.
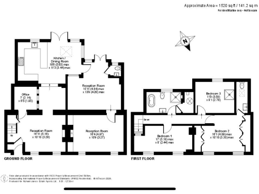
- Three double bedrooms with principal en-suite
- Three reception rooms plus separate study
- Refitted kitchen/diner opening to mature private garden
- Separate utility room and workshop with light and power
- Period stone walls; assumed no cavity wall insulation
- Low ceilings in many rooms (period character)
- On-street parking only; no private garage
- Slow local broadband speeds, average mobile signal
Eden Cottage is a tastefully presented period home quietly positioned in central Highworth, blending historic character with contemporary touches. The house offers three double bedrooms, an en-suite to the principal, and generous living with three reception rooms plus a dedicated study — ideal for someone seeking flexible, comfortable accommodation without immediate overhaul.
The refitted kitchen/diner opens onto a mature, private garden, supported by a separate utility room and a useful workshop with light and power. Practical details include a downstairs cloakroom, recently updated family bathroom with a four-piece suite, double glazing, mains gas central heating, and an EPC rating of C.
Buyers should note a few practical downsides: ceilings are generally low in keeping with the period, there is assumed lack of wall insulation in the original stone walls, broadband speeds are slow locally, and parking is on-street only. The property is offered freehold and has returned to the market due to a broken chain.
Set in a well-served market town with schools, shops, and leisure facilities nearby, the cottage suits buyers looking to downsize into a character home that is ready to move into, yet offers scope for targeted improvement to increase comfort and efficiency.
3 bedroom cottage for sale in The Green, Highworth, SN6 — £350,000 • 3 bed • 2 bath • 891 ft²
3 bedroom cottage for sale in Cricklade Road, Highworth, SN6 — £269,950 • 3 bed • 1 bath • 905 ft²
3 bedroom cottage for sale in Westrop, Highworth, SWINDON, SN6 — £495,000 • 3 bed • 2 bath • 1798 ft²
3 bedroom semi-detached house for sale in High Street, Highworth, SN6 7AG, SN6 — £320,000 • 3 bed • 1 bath • 1290 ft²
2 bedroom terraced house for sale in Knowlands, Highworth, Swindon, SN6 — £225,000 • 2 bed • 1 bath • 646 ft²
4 bedroom detached house for sale in Sevenfields,Highworth,Swindon,SN6 7NQ, SN6 — £480,000 • 4 bed • 3 bath • 1644 ft²










































































































































































































































