Ready-to-move-in family home with garage, garden and scope to extend.
Chain free three-bedroom semi-detached house
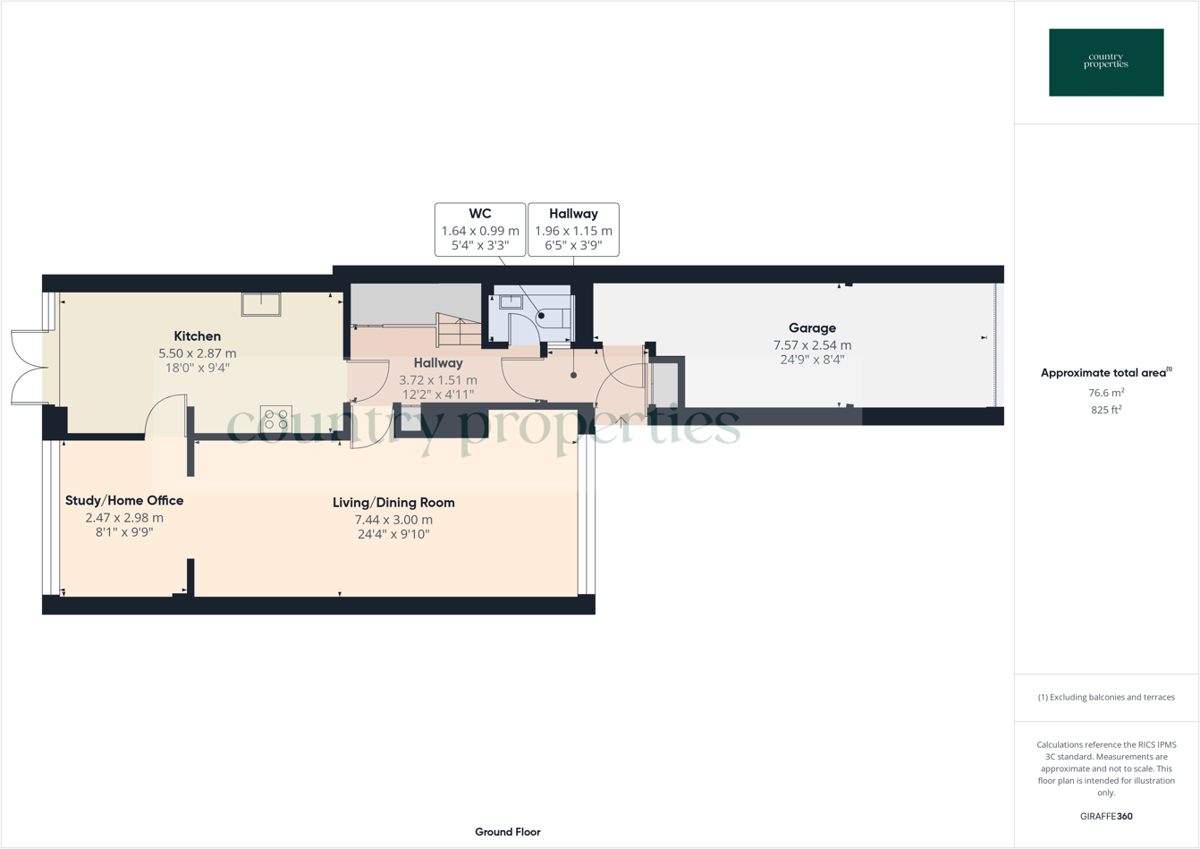
Chain-free three-bedroom semi-detached house offering ready-to-move-in presentation after recent redecoration and new carpets. The extended ground floor provides a large open lounge/diner, a fitted kitchen and a flexible study/home office — useful for remote working or a playroom. Outside there is a private rear garden with low-maintenance composite decking, patio, shed and gated side access, plus off-road parking and an attached single garage with conversion potential.
The property is set in a suburban pocket of Welwyn Garden City close to local shops, bus routes and several primary and secondary schools, making it practical for family life. Mains gas central heating, double glazing and a sound exterior suggest straightforward day-to-day running. The plot and layout also offer scope to add value through modest rear or over-garage extension (subject to planning).
Buyers should note material area factors: the neighbourhood records higher crime and relative deprivation compared with the wider town, and the house sits in a hampered neighbourhood classification. There is one family bathroom only, and the construction is mid-20th century timber-frame with partial insulation assumed — further improvement works or insulation upgrades may be desirable. Overall, this is a sensible family starter or owner-occupier opportunity for those prioritising location, parking and renovation upside.
3 bedroom terraced house for sale in Herns Lane, Welwyn Garden City, AL7 — £400,000 • 3 bed • 2 bath • 989 ft²
3 bedroom semi-detached house for sale in Rayfield, Welwyn Garden City, AL8 — £675,000 • 3 bed • 2 bath • 1569 ft²
3 bedroom semi-detached house for sale in Dawley, Welwyn Garden City, AL7 — £400,000 • 3 bed • 1 bath • 562 ft²
3 bedroom terraced house for sale in Oakdale, Welwyn Garden City, AL8 — £425,000 • 3 bed • 1 bath • 897 ft²
3 bedroom terraced house for sale in Howlands, Welwyn Garden City, AL7 — £375,000 • 3 bed • 1 bath • 725 ft²
3 bedroom semi-detached house for sale in Junction Cottages, Blakemere Road, Welwyn Garden City, AL8 — £685,000 • 3 bed • 1 bath • 1271 ft²


















































































































