Stylish, energy-efficient home ideal for family life near Chew Valley.
4 double bedrooms including master with ensuite
Open-plan living and dining across three floors
Energy-efficient systems: heat pump and air filtration
Dedicated EV charging point and two-car driveway parking
Landscaped, low-maintenance rear garden with patio
Modest internal area (≈1,102 sq ft) for a four-bed house
Built form recorded as semi‑detached despite detached listing
Village location; amenities and schools nearby, limited urban facilities
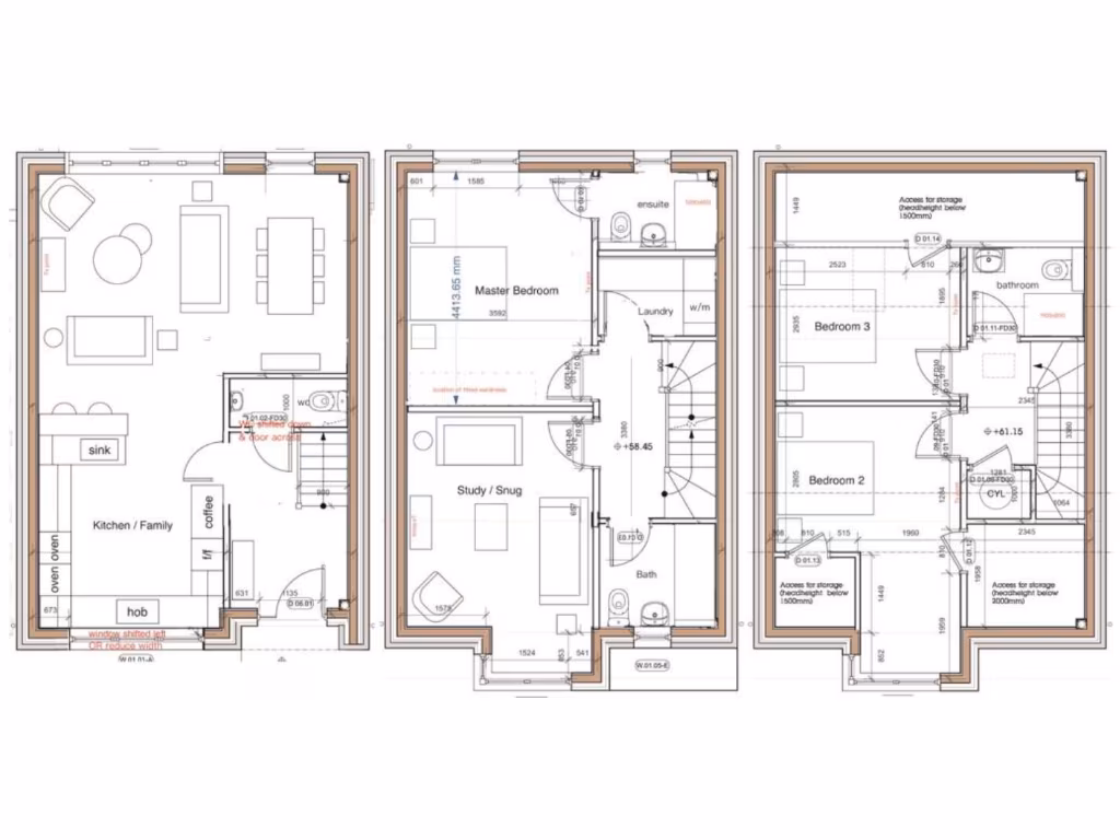
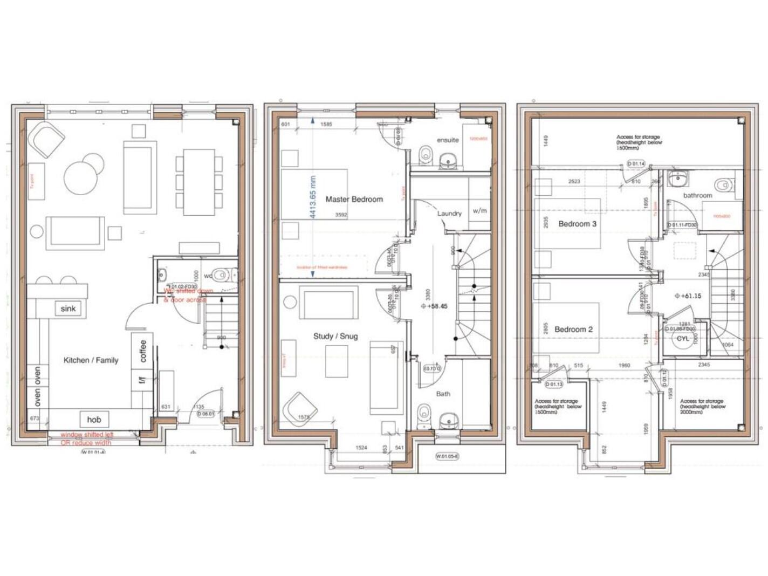
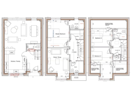
Set on a quiet lane in the popular Chew Valley, this newly built four-bedroom home combines contemporary design with energy-efficient systems. The house is arranged over three floors and offers flexible family accommodation, including a master ensuite, three further bedrooms and an open-plan living and dining area. Modern mechanicals — a heat pump, whole-house air filtration and an EV charging point — support low-impact, low-running-cost living.
Finished with high-quality fittings such as quartz worktops and tiled bathrooms, the property feels bright and well-crafted. The level, landscaped rear garden and paved patio provide an outdoor space for children and entertaining, while the paved driveway offers off-street parking for two cars. The home benefits from fast broadband and good local schools, making it well suited to family life and homeworking.
Practical points to note: the plot and overall internal area (approximately 1,102 sq ft) are modest for a four-bedroom house, and the property’s built form is recorded as semi‑detached despite its detached listing. Council tax is moderate and the village location means amenities are village-scale rather than urban. Overall, this is a stylish, efficient family home in a very affluent, well-connected rural setting.
4 bedroom detached house for sale in Elegant four bedroom detatched townhouse in Chew Stoke, BS40 — £575,000 • 4 bed • 2 bath • 1433 ft²
4 bedroom semi-detached house for sale in Wedmore Road, Cheddar, bs27, BS27 — £360,000 • 4 bed • 2 bath
4 bedroom detached house for sale in Four-bedroom detached family home, Bishop Sutton, BS39 — £579,950 • 4 bed • 2 bath • 1884 ft²
4 bedroom detached house for sale in Saxon Way, Cheddar, BS27 — £459,999 • 4 bed • 2 bath • 1267 ft²
4 bedroom detached house for sale in Apple Grove, Emersons Green, Bristol, BS16 — £500,000 • 4 bed • 3 bath • 786 ft²
5 bedroom detached house for sale in Mansbury Gardens, Congresbury, BS49 — £745,000 • 5 bed • 4 bath • 2190 ft²






















































































