SP5 4HZ - 3 bedroom semidetached bungalow for sale in Nunton Drove, N…

View on Property Piper

3 bedroom semi-detached bungalow for sale in Nunton Drove, Nunton, SP5

Summary - Nunton Drove, Nunton, SP5 SP5 4HZ

3 bed 2 bath Semi-Detached Bungalow

**Standout Features:**
- No onward chain for immediate occupancy.
- Three spacious bedrooms and two modern bathrooms.
- Generous wrap-around garden with patio area.
- Ample off-street parking.
- Tastefully modernized within a peaceful village setting.

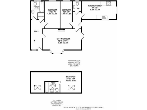
Discover your rural retreat in this newly renovated three-bedroom semi-detached bungalow located in the tranquil village of Nunton, just three miles from Salisbury. The property features a deceptively spacious layout, with a welcoming living room highlighted by a wood burner and a contemporary kitchen equipped with stylish Shaker-style units. Enjoy the convenience of a ground floor shower room and a cloakroom alongside two well-proportioned bedrooms, while the upstairs master suite benefits from Velux windows and an ensuite bathroom.

Set on a large plot, the wrap-around garden is predominantly lawned, offering plenty of space for outdoor relaxation and gardening potential. With plenty of off-street parking, this home is perfect for families or as an investment opportunity in a charming rural community. Amenities like schools, shops, and eateries are within easy reach, making daily life a breeze. While the local area provides a peaceful lifestyle, the property is essential for those seeking comfort and space. This property won't last long on the market— seize this chance to create your ideal home!

Property Details

Image Descriptions

Floorplan Description

Rooms

Textual Property Features

Detected Visual Features

EPC Details

Nearby Schools

Nearest Bars And Restaurants

,,,,}

Nearest General Shops

,,}

Nearest Grocery shops

,,}

Nearest Supermarkets

,,}

Nearest Religious buildings

,,}

Nearest Medical buildings

,,,}

Nearest Leisure Facilities

,,,,}

Nearest Tourist attractions

,,}

Nearest Train stations

,,,,}

Nearest Bus stations and stops

,,,,}

Nearest Hotels

,,}

Tags

Local Market Stats

Meta

High Res Images

Compatible Images

Low res Images

Thumbnails

Raw Images

High Res Floorplan Images

Compatible Floorplan Images

Low res Floorplan Images

FloorplanImages Thumbnail

Raw Floorplan Images