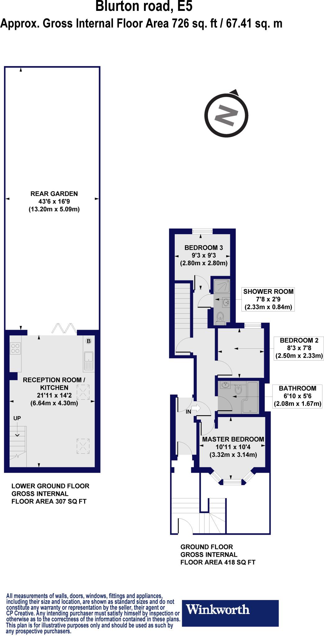
**Standout Features:**
- Split-level three-bedroom garden flat
- Modern open-plan living and dining area with abundant natural light
- Large private garden, perfect for outdoor entertainment and relaxation
- Located in a vibrant area near Chatsworth Road with diverse amenities
- Excellent transport links to central London
**Potential Concerns:**
- Flat is on the smaller side (726 sq ft) for a three-bedroom
- Solid brick walls with no insulation (assumed)
Welcome to this delightful split-level three-bedroom garden flat on Blurton Road, E5, where modern living meets classic charm. This spacious home features a contemporary open-plan layout that seamlessly connects the stylish kitchen and living area to a large private garden—an exceptional find in the city, perfect for alfresco dining, gardening, or simply enjoying some quiet time outdoors.
Situated in an established tech worker neighborhood with a cosmopolitan vibe, you'll be just a stone's throw away from the vibrant Chatsworth Road, teeming with independent shops, cafés, and restaurants. Families will appreciate the nearby highly-rated schools, while outdoor enthusiasts can explore the expansive Hackney Marshes. Commuting is a breeze with Hackney Central Station within walking distance, ensuring direct access to the heart of London.
Despite its compact 726 square feet, the flat is designed for comfort and functionality, making it an ideal sanctuary for families, sharers, or investors looking for a versatile property with rental potential. While the solid brick construction lacks insulation, the benefits of the modern amenities and superb location far outweigh this concern. Don't miss out on this unique opportunity to own a piece of urban living in one of East London’s most desirable locales!
1 bedroom apartment for sale in Blurton Road, London, E5 — £300,000 • 1 bed • 1 bath • 328 ft²
2 bedroom apartment for sale in Blurton Road, London, E5 — £575,000 • 2 bed • 2 bath • 765 ft²
2 bedroom flat for sale in Dunlace Road, London, E5 — £750,000 • 2 bed • 2 bath • 842 ft²
2 bedroom flat for sale in Chatsworth Road, London E5 — £750,000 • 2 bed • 2 bath • 984 ft²
3 bedroom flat for sale in Elderfield Road, Lower Clapton, London, E5 — £750,000 • 3 bed • 1 bath • 838 ft²
2 bedroom flat for sale in Goulton Road, Hackney, E5 — £575,000 • 2 bed • 1 bath • 619 ft²


















































