Ideal first-home with parking, garden and strong travel connections.
75% shared ownership; affordability and suitability checks required
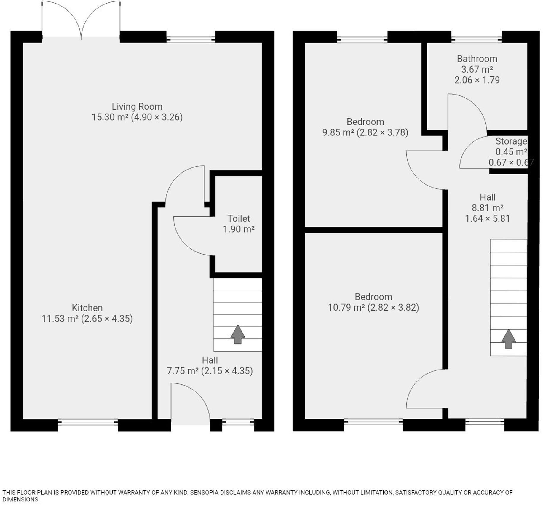
This modern two-bedroom terraced home in Tile Hill offers an accessible first-step on the property ladder via 75% shared ownership. Built in 2010, the house feels contemporary throughout with a bright kitchen, a downstairs WC and an energy-efficient EPC B rating. Allocated parking and a low-maintenance rear garden make daily life straightforward for busy buyers.
The property suits first-time buyers who need good travel links and local amenities; bus stops and schools are close by and the area is classed as an achieving neighbourhood. Practical details to note: the lease has about 116 years remaining, the property is leasehold and interested purchasers must pass the shared ownership affordability and suitability checks. Monthly outgoings include rent of £235.54 plus a combined total charge around £307.65 (management, insurance and admin included).
Upgrades are minimal: the boiler is eight years old and was serviced in July 2025, windows and loft insulation are in place, and the house is ready to move into. Downsides include very slow broadband speeds, a small north-facing garden and regular shared-ownership charges. Overall, this is a sensible, low-maintenance option for buyers seeking affordability and commuter convenience in Coventry.
2 bedroom terraced house for sale in William Lewis Walk, Coventry, CV4 — £225,000 • 2 bed • 1 bath • 528 ft²
2 bedroom terraced house for sale in Donegal Close, Canley, Coventry, CV4 — £94,000 • 2 bed • 1 bath • 846 ft²
3 bedroom end of terrace house for sale in Cromwell Lane, Burton Green, Coventry, CV4 — £121,275 • 3 bed • 1 bath • 916 ft²
2 bedroom terraced house for sale in Blacksmith Way, Exhall, Coventry, CV7 — £57,500 • 2 bed • 1 bath • 756 ft²
3 bedroom end of terrace house for sale in Cromwell Lane, Burton Green, Coventry, CV4 — £120,925 • 3 bed • 1 bath • 916 ft²
2 bedroom end of terrace house for sale in Kingfield Road, Coventry, West Midlands, CV6 — £80,000 • 2 bed • 1 bath • 686 ft²


































































