Versatile four-bedroom end-terrace with garden, garage and town-centre convenience.
Large open-plan kitchen/diner with French doors to garden
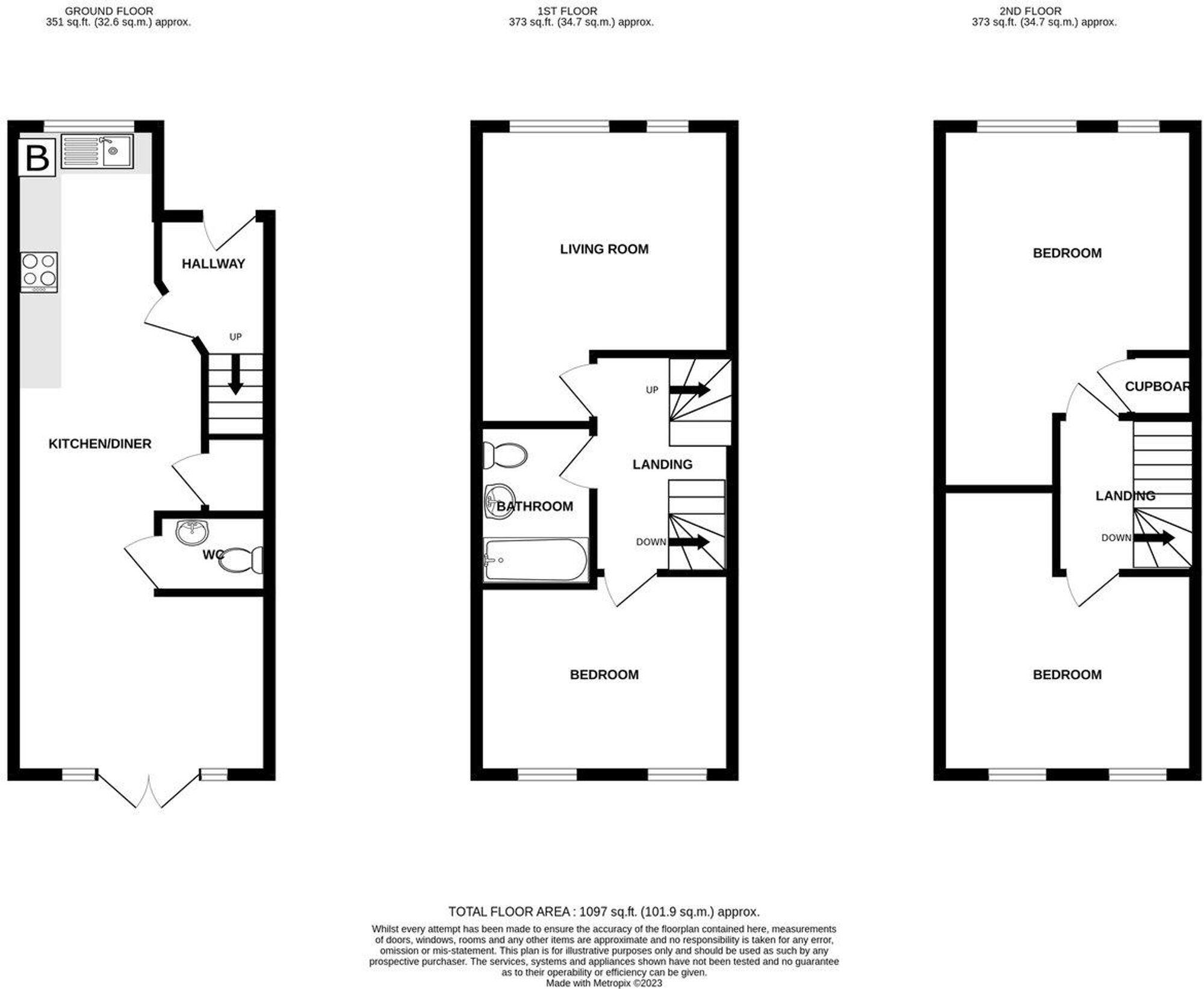
A versatile three-storey end-terrace offering flexible living across 1,097 sq ft, ideal for families or buy-to-let investors. The ground floor’s large open-plan kitchen/diner has French doors to a low-maintenance rear garden, creating a practical social hub. Two double bedrooms occupy the top floor, with a further bedroom and a first-floor lounge that can double as a fourth bedroom.
The home benefits from private parking and a garage beneath a coach house, plus additional front parking on a first-come, first-served basis. Modern fittings include UPVC double glazing, gas boiler and radiators, and an EPC rating of B. Local connections are strong — close to Camborne town centre, Tesco and the A30, with schools and the coast a short drive away.
Important practical points: there is a single family bathroom and a downstairs WC to serve up to four bedrooms, and the overall plot and property footprint are relatively small. The surrounding area is recorded as very deprived despite very low crime levels, which may affect resale timing in some markets.
For families this is a compact but well-laid-out home in a convenient town location with garden and garage. For investors the property’s size, three-storey layout and proximity to transport and local amenities present straightforward rental appeal, though tenant demand and rental values may be influenced by the wider area’s socioeconomic profile.
4 bedroom semi-detached house for sale in Nicholas Holman Road, Camborne, Cornwall, TR14 — £265,000 • 4 bed • 3 bath • 1268 ft²
3 bedroom house for sale in Dolcoath Avenue, Camborne, Well presented terraced house, TR14 — £200,000 • 3 bed • 1 bath
5 bedroom end of terrace house for sale in Trecarrack Road, Camborne, Cornwall, TR14 — £300,000 • 5 bed • 3 bath • 1010 ft²
2 bedroom end of terrace house for sale in Dolcoath Avenue, Camborne, Cornwall, TR14 — £210,000 • 2 bed • 1 bath • 805 ft²
3 bedroom house for sale in West Charles Street, Camborne - Tucked away position, TR14 — £215,000 • 3 bed • 2 bath • 362 ft²
3 bedroom end of terrace house for sale in Wheal Gerry, Camborne, TR14 — £269,950 • 3 bed • 1 bath • 1010 ft²


















































































